Vuokrataan toimistotilat - Helsinki
Kumpulantie 5, Vallila, 00520 Helsinki #10843480
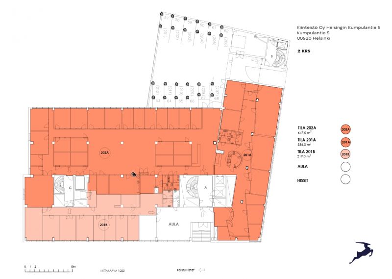
Vuokrataan siistikuntoinen toimistotila Kumpulantien ja Jämsänkadun kulmassa sijaitsevan kiinteistön 2. kerroksesta (pohjakuvassa tila no 202A). Talossa vastaanotto, lounasruokala, neuvottelukeskus ja auditorio sekä viihtyisä saunaosasto katolla. Ota yhteyttä ja sovi esittely, vuokrauspalvelumme on tilanhakijoille maksuton.
Osoite
Kumpulantie 5, 00520 Helsinki
Tilatyyppi
Toimistotilaa
219 m2
Pohjapiirros
Kiinteistö
Vallilan PIKSELI - Kumpulantie 5 sijaitsee Helsingin Vallilassa hyvien kulkuyhteyksien varrella. Kiinteistö on rakennettu vuonna 1985 ja on kokonaispinta-alaltaan 8,516m2. Kiinteistössä on toimistotilaa yhteensä kahdeksassa kerroksessa. Kellarissa-autohallitasolla on myös vuokrattavissa varastotilaa. Parkkipaikkoja löytyy seka ulkoa että parkkihallista. Kiinteistössä sijaitsee lounasravintola.
Sijainti
Vallila
Muuta
Kiinteistössä lounasravintola, aulapalvelu, saunaosasto sekä
neuvotteluhuoneita.
neuvotteluhuoneita.
Vapautuu
Heti
Kerros
2 / 7
Energiatehokkuusluokka
Ei lain edellyttämää energiatodistusta
Näkyvällä paikalla
Hissi
Ota yhteyttä
Senaatin Notariaatti Oy LKV
Lämmittäjänkatu 4 A
FIN-00880 Helsinki
Tel:
Näytä puhelinnumero
+358 9 7745 100
Pyydä lisätietoa
