Vuokrataan toimistotilat - Espoo
Mänkimiehentie 4, Kauklahti, 02780 Espoo #10843472
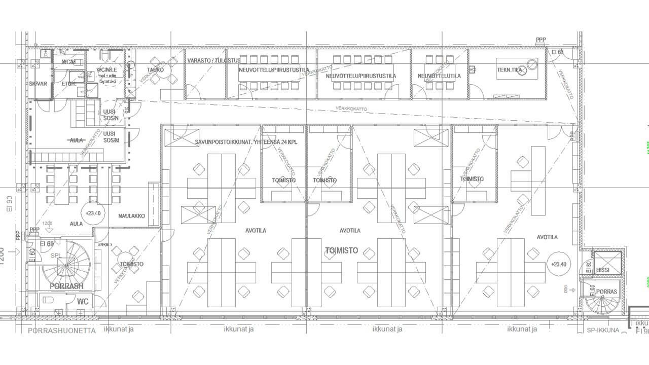
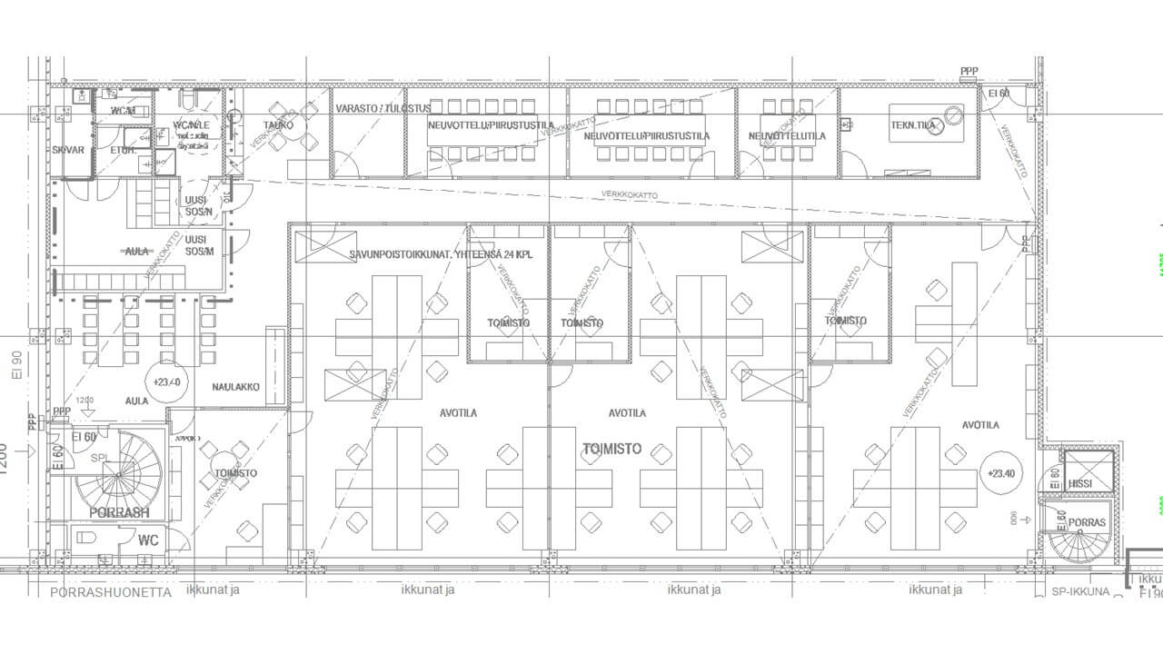
Siisti ja nykyaikainen 432 m² toimistotila Espoon Kauklahdessa.
Osoite
Mänkimiehentie 4, 02780 Espoo
Tilatyyppi
Toimistotilaa
432 m2
Pohjapiirros
Kiinteistö
Huippusiistiä ja nykyaikaista toimistoa Kauklahdessa logistiikka-/varastorakennuksen toisessa kerroksessa. Toimitilat on tehty noin kaksi vuotta sitten.
Vapautuu
Heti
Kerros
1
Energiatehokkuusluokka
Ei lain edellyttämää energiatodistusta
Näkyvällä paikalla
Lastauslaituri
Ota yhteyttä
ScanReal Oy LKV
Opus Business Park
Hitsaajankatu 24
00810 Helsinki
info@scanreal.fi
Puh:
Näytä puhelinnumero
020 730 8830
Sopivat toimitilat yhdellä otolla!
Kartoitamme toimitilatarpeesi ja etsimme yrityksellesi parhaiten sopivat vapaat toimitilat. Koska vuokranantajat maksavat palvelumme, on tämä yrityksellesi veloituksetonta.
OTA YHTEYTTÄ - SOVI NÄYTTÖ!
Kaikki kohteemme eivät ole netissä, kerro tilatarpeesi niin kartoitamme vaihtoehdot.
Palvelumme on tilanhakijalle ilmainen
Pyydä lisätietoa
