Vuokrataan liiketilat - Tampere

Itsenäisyydenkatu 8, 33500 Tampere #10843466

Kompakti toimitila vapaana Tampereen sykkeessä

Itsenäisyydenkatu 8 sijaitsee aivan Tampereen ydinkeskustassa, kivenheiton päässä rautatieasemalta, ratikkareitin varrella ja kaikkien palveluiden äärellä. Erinomainen näkyvyys vilkkaalle kadulle takaa yrityksellesi huomiota ja saavutettavuutta.

Sopii erinomaisesti esimerkiksi pientoimistoksi, konsulttipalveluille, hierontaan tai hoivapalveluihin, showroom- tai esittelytilaksi, verkkokaupan noutopisteeksi.

Katso näkymät ja ympäristö yläilmoista – tämä tila on osa historiallista ja elinvoimaista Tampereen keskustaa.

Ota yhteyttä, niin sovitaan esittely!

Osoite
Itsenäisyydenkatu 8, 33500 Tampere
Tilatyyppi
Liiketilaa
31,5 m2
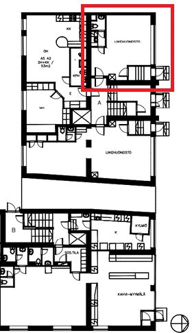
Pohjapiirros
Vuokra
890,00
 
Vuokraan sisältyy lämpö
Vapautuu
Heti
Rakennusvuosi
1956
Ota yhteyttä

Lumo Kodit Oy

Pyydä lisätietoa

Kohteesta Itsenäisyydenkatu 8, Tampere

 

B2B palvelut

LASTAUSRATKAISUT

Mainos
Lastauksien ratkaisut tehokkaammin ja turvallisemmin

HALLIT