Vuokrataan liiketilat - Kuopio

Puijonkatu 12, 70100 Kuopio #10843462

Erinomaisella paikalla Kuopion keskustassa vapautumassa liiketila!

Suuret näyteikkunat, oma sisäänkäynti, näkyvä sijainti vilkkaalla kadulla – täydellinen tila esim. myymälälle, toimistolle tai palveluyritykselle.
Keskeinen sijainti, näkyvyyttä kadulle, hyvä jalankulkuliikenne ja pysäköinti lähellä!

Vuokraan lisätään arvonlisävero (tällä hetkellä 25,5 %)
Tila ei sovellu ravintolaksi.

Ota yhteyttä, niin sovitaan esittely!

Osoite
Puijonkatu 12, 70100 Kuopio
Tilatyyppi
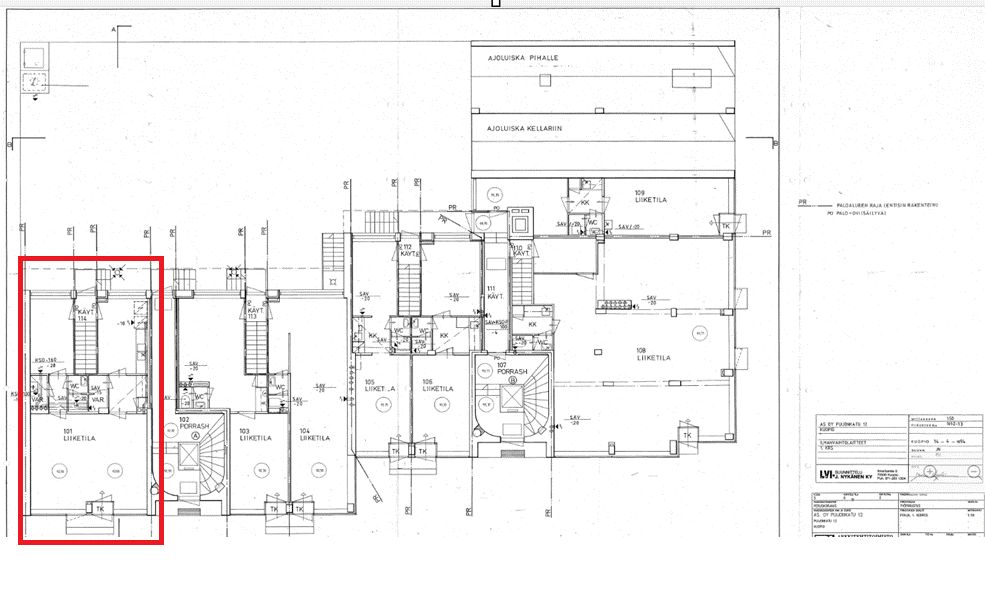
Liiketilaa
69 m2
Pohjapiirros
Vuokra
Kysy hintaa!
 
Vuokraan sisältyy lämpö
Vapautuu
01.12.2025
Rakennusvuosi
1956
Ota yhteyttä

Lumo Kodit Oy

Pyydä lisätietoa

Kohteesta Puijonkatu 12, Kuopio

 

B2B palvelut

LASTAUSRATKAISUT

Mainos
Lastauksien ratkaisut tehokkaammin ja turvallisemmin

MARKKINOINTI

Tavoita oikea kohderyhmä!