Vuokrataan toimistotilat - Tampere
Hatanpäänkatu 1, Hatanpää, 33100 Tampere #10843432
Toimistotilaa Tampereella, keskustan kupeessa.
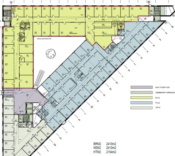
Tämä 915 m² toimistotila sijaitsee kiinteistön 2. kerroksessa. Vapautuminen 1.1.2026. Kuvat ovat kiinteistön yleisistä tiloista.
Kulma-Sarvis sijaitsee hyvien liikenneyhteyksien päässä. Kiinteistössä on lounasravintola, aulapalvelu sekä erikseen vuokrattavia kokous- ja neuvottelutiloja.
Kysy lisää numerosta 044 723 4700 tai info@bref.fi. Palvelumme on tilanhakijoille ilmainen.
Osoite
Hatanpäänkatu 1, 33100 Tampere
Tilatyyppi
Toimistotilaa
915 m2
Palvelut
Kiinteistössä mm. catering, aulapalvelu ja vuokrattavia neuvottelu- ja edustustiloja. Ensimmäisessä kerroksessa toimii lounasravintola.
Vapautuu
Kysy
Rakennusvuosi
1996
Kerros
2
Energiatehokkuusluokka
Ei lain edellyttämää energiatodistusta
Ota yhteyttä
Bureau Real Estate Finland Oy
Lars Sonckin kaari 16, 02600 Espoo
Näytä puhelinnumero
0447234700
Bureau Real Estate Finland Oy
https://www.bref.fiPyydä lisätietoa
