Vuokrataan toimistotilat - Helsinki
Sörnäisten Rantatie 31, Sörnäinen, 00530 Helsinki #10843426
Vuokrattavana monitoimitilaa Helsingin Sörnäisissä.
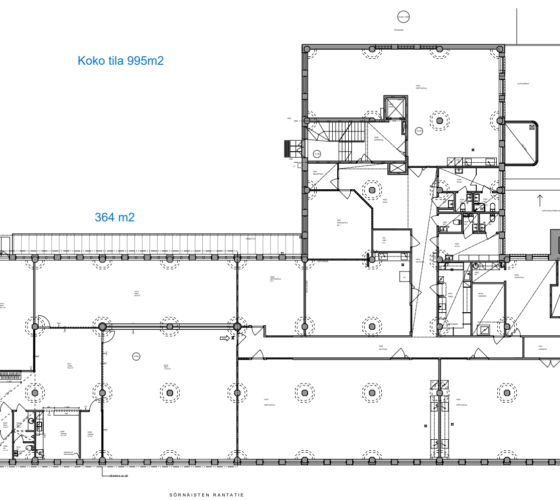
Tämä 995 m² toimisto sijaitsee kiinteistön 2. kerroksessa.
Sörnäisten Rantatie 31 on toimistokiinteistö Helsingin Sörnäisissä. Se on tunnettu myös nuorisotalo- toiminnastaan. Rakennus sijaitsee erinomaisten palvelujen lähellä, Kauppakeskus REDI lyhyen matkan päässä. Myös julkisen liikenteen yhteydet kohteeseen ovat loistavat. Omalla autolla kulkijoille on kiinteistössä oma pysäköintihalli.
Kiinteistössä on tehty sisäilmaremontti vuosina 2016-2017. Kiinteistön julkisivu on suojeltu, ja se on peruskorjattu täysin vuoden 2017 aikana. Kiinteistön tilat soveltuvat niin isoille kuin pienemmillekin toimijoille. Tiloja voidaan myös hyödyntää varasto- sekä tuotantokäyttöön.
Kysy lisää numerosta 044 723 4700 tai info@bref.fi. Palvelumme on tilanhakijoille ilmainen.
Bureau Real Estate Finland Oy
Lars Sonckin kaari 16, 02600 Espoo
Näytä puhelinnumero
0447234700
Bureau Real Estate Finland Oy
https://www.bref.fi