Vuokrataan toimistotilat - Oulu
Rautatienkatu 40, Keskusta, 90100 Oulu #10843411
Osoite
Rautatienkatu 40, 90100 Oulu
Tilatyyppi
Toimistotilaa
88 m2
Muuta
Vuokrattavana Rautatienkatu 40, Oulu
Vuokrattava huoneisto sijaitsee katutasolla Rautatienkadun varrella.
Kadun varrella on hyvin kiekkopaikkoja.
Rakennuksen sisäpihan puolelta kulkee Citybussin reitti.
Pyöräpysäköinti sisäpihalla tai pyörävarastossa.
Huoneistoon on esteetön kulku talon päädystä.
Huoneistossa on sisäänkäyntiaula/asiakavastaanottotila, 3 toimistohuonetta, neuvottelutila, wc, siivouskomero ja varasto.
Huoneiston ikkunat ovat sisäpihan puolelle, joten työympäristö on rauhallinen, mutta kuitenkin hyvin helposti saavutettavissa.
Kävelymatkan päässä on Oulun Rautatieasema ja ydinkeskusta.
Huoneistokohtainen koneellinen tulo- ja poistoilmanvaihto.
Rautatienkadun varrella on hyvin kiekollisia pysäköintipaikkoja.
Tila on heti vapaa.
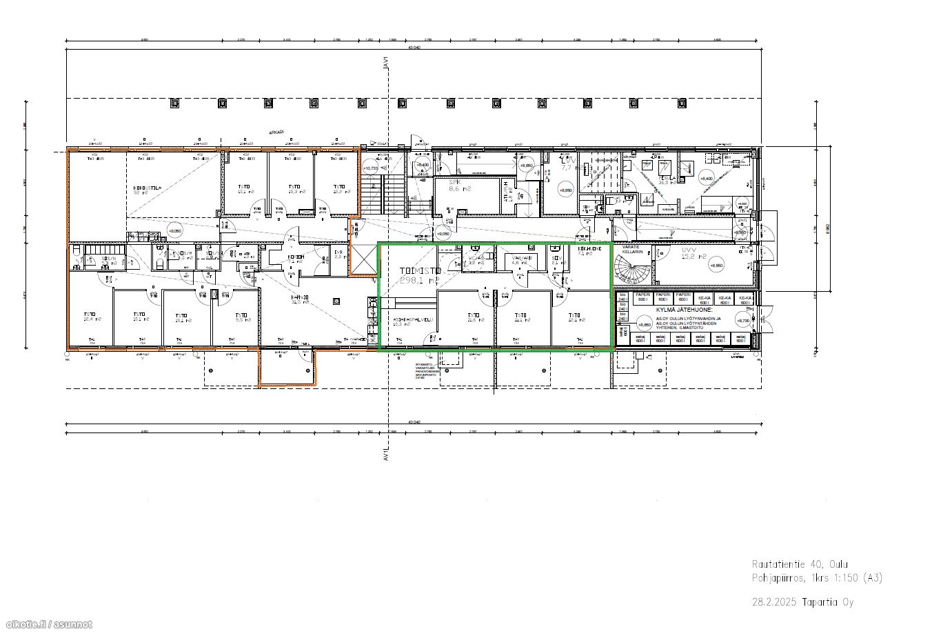
Pinta-ala 88 m2. Pohjakuvassa vihreällä rajattu alue.
Vuokrattava huoneisto on alviton.
Mahdollisuus vuokrata autopaikkoja lämpimästä autokellarista 2 kpl, a" 80e/kk.
Pyydä lisätietoja!
Vuokrattava huoneisto sijaitsee katutasolla Rautatienkadun varrella.
Kadun varrella on hyvin kiekkopaikkoja.
Rakennuksen sisäpihan puolelta kulkee Citybussin reitti.
Pyöräpysäköinti sisäpihalla tai pyörävarastossa.
Huoneistoon on esteetön kulku talon päädystä.
Huoneistossa on sisäänkäyntiaula/asiakavastaanottotila, 3 toimistohuonetta, neuvottelutila, wc, siivouskomero ja varasto.
Huoneiston ikkunat ovat sisäpihan puolelle, joten työympäristö on rauhallinen, mutta kuitenkin hyvin helposti saavutettavissa.
Kävelymatkan päässä on Oulun Rautatieasema ja ydinkeskusta.
Huoneistokohtainen koneellinen tulo- ja poistoilmanvaihto.
Rautatienkadun varrella on hyvin kiekollisia pysäköintipaikkoja.
Tila on heti vapaa.
Pinta-ala 88 m2. Pohjakuvassa vihreällä rajattu alue.
Vuokrattava huoneisto on alviton.
Mahdollisuus vuokrata autopaikkoja lämpimästä autokellarista 2 kpl, a" 80e/kk.
Pyydä lisätietoja!
Vapautuu
Kysy
Kerros
1
Ota yhteyttä
Catella Property Oy
Kirkkokatu 6, 5. krs, 90100 OULU
Näytä puhelinnumero
010 5220 100
Pekka Laurila-Harju
Näytä puhelinnumero
010 5220 603
Pyydä lisätietoa
