Vuokrataan toimistotilat - Helsinki
Merikortteli, Pursimiehenkatu 29-31, Punavuori, 00150 Helsinki #10843346
Korkea 117 m² toimitila Merikorttelissa
Osoite
Pursimiehenkatu 29-31, 00150 Helsinki
Tilatyyppi
Toimistotilaa
117 m2
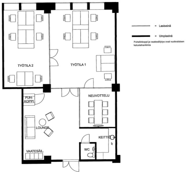
Pohjapiirros
Kiinteistö
Tyylikäs ja persoonallinen toimitila sijaitsee Punavuoren historiallisessa Merikorttelissa, jossa vanhan tehdasmiljöön tunnelma yhdistyy moderniin toiminnallisuuteen. Kolmannen kerroksen 117 m² tila tarjoaa avarat ja valoisat puitteet monenlaiseen käyttöön – se soveltuu yhtä hyvin luovaksi työtilaksi, toimistoksi tai showroom-käyttöön. Korkea huonetila ja suuret ikkunat tuovat tilaan ilmavuutta ja inspiroivaa valoisuutta.
Merikortteli tarjoaa vuokralaisilleen monipuoliset palvelut, kuten lounasravintolan ja kahvilan, neuvottelutiloja, POOL-joustotiloja sekä wellness-palveluita. Lisäksi kiinteistössä on parkkihalli, pyöräparkki, päivittäistavarakauppa ja sähköauton latauspisteet, jotka tekevät arjesta sujuvaa ja vaivatonta.
Rakennus on vastuullinen ja energiatehokas, sillä on BREEAM Very Good -sertifikaatti, ja se hyödyntää kotimaista tuulisähköä, omaa aurinkovoimalaa sekä uusiutuvaa kiertolämpöä.
Sijainti Punavuoren sydämessä tarjoaa erinomaiset kulkuyhteydet ja eläväisen kaupunkiympäristön. Raitiovaunu pysähtyy aivan vieressä, bussipysäkki on 130 metrin päässä ja lähin metroasema sijaitsee noin 1,5 kilometrin etäisyydellä. Helsingin päärautatieasemalle on matkaa alle kaksi kilometriä ja lentokentälle noin 22 kilometriä.
Merikortteli tarjoaa vuokralaisilleen monipuoliset palvelut, kuten lounasravintolan ja kahvilan, neuvottelutiloja, POOL-joustotiloja sekä wellness-palveluita. Lisäksi kiinteistössä on parkkihalli, pyöräparkki, päivittäistavarakauppa ja sähköauton latauspisteet, jotka tekevät arjesta sujuvaa ja vaivatonta.
Rakennus on vastuullinen ja energiatehokas, sillä on BREEAM Very Good -sertifikaatti, ja se hyödyntää kotimaista tuulisähköä, omaa aurinkovoimalaa sekä uusiutuvaa kiertolämpöä.
Sijainti Punavuoren sydämessä tarjoaa erinomaiset kulkuyhteydet ja eläväisen kaupunkiympäristön. Raitiovaunu pysähtyy aivan vieressä, bussipysäkki on 130 metrin päässä ja lähin metroasema sijaitsee noin 1,5 kilometrin etäisyydellä. Helsingin päärautatieasemalle on matkaa alle kaksi kilometriä ja lentokentälle noin 22 kilometriä.
Pysäköinti
Pysäköintitilaa tarjolla korttelin omassa parkkihallissa sekä läheisissä pysäköintilaitoksissa.
Palvelut
Kiinteistössä Kaffa Roastery, Moko Market & Café ja Alepa. Toistakymmentä ravintolaa tai kahvilaa 500 metrin säteellä kiinteistöstä.
Kulkuyhteydet
Metroasema 1,5 km, Raitiovaunupysäkki 100 m, Bussipysäkki 200 m, Juna-asema 1,9 km, Lentoasema 23,1 km
Vapautuu
Heti
Kerros
5 / 6
Energiatehokkuusluokka
Ei lain edellyttämää energiatodistusta
Näkyvällä paikalla
Hissi
Ota yhteyttä
ScanReal Oy LKV
Opus Business Park
Hitsaajankatu 24
00810 Helsinki
info@scanreal.fi
Puh:
Näytä puhelinnumero
020 730 8830
Sopivat toimitilat yhdellä otolla!
Kartoitamme toimitilatarpeesi ja etsimme yrityksellesi parhaiten sopivat vapaat toimitilat. Koska vuokranantajat maksavat palvelumme, on tämä yrityksellesi veloituksetonta.
OTA YHTEYTTÄ - SOVI NÄYTTÖ!
Kaikki kohteemme eivät ole netissä, kerro tilatarpeesi niin kartoitamme vaihtoehdot.
Palvelumme on tilanhakijalle ilmainen
Pyydä lisätietoa
