Vuokrataan toimistotilat - Helsinki
Merikortteli, Pursimiehenkatu 29-31, Punavuori, 00150 Helsinki #10843342
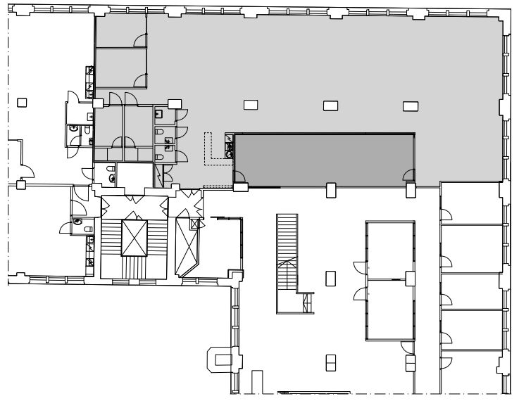
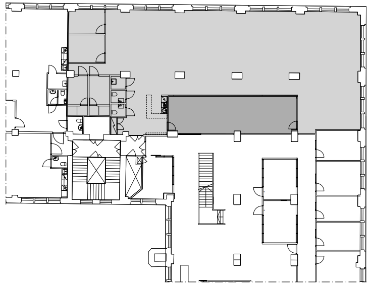
Tunnelmallinen 327,5 m² toimisto Merikorttelissa
Osoite
Pursimiehenkatu 29-31, 00150 Helsinki
Tilatyyppi
Toimistotilaa
327,5 m2
Pohjapiirros
Kiinteistö
Korkea ja luonteikas toimitila Punavuoren ikonisen Merikorttelin sydämessä tarjoaa inspiroivat puitteet modernille työympäristölle. Toisen kerroksen 327,5 m² tilassa on runsaasti avaruutta ja persoonallista tehdasmiljöön henkeä, ja se soveltuu erinomaisesti noin 40 hengen työyhteisölle. Tilassa on omat puku- ja suihkutilat, jotka lisäävät käyttömukavuutta ja tukevat aktiivista työpäivää.
Merikorttelin toimitilat yhdistävät rouhean arkkitehtuurin ja nykyaikaisen toiminnallisuuden. Vuokralaiset hyötyvät kattavista palveluista, kuten lounasravintolasta, kahvilasta, neuvottelutiloista ja POOL-joustotiloista. Lisäksi käytössä ovat parkkihalli, pyöräparkki, päivittäistavarakauppa, wellness-palveluita sekä sähköauton latauspisteet.
Kiinteistö on vastuullinen valinta: rakennuksella on BREEAM Very Good -sertifikaatti, ja se hyödyntää kotimaista tuulisähköä, omaa aurinkovoimalaa sekä uusiutuvaa kiertolämpöä. Merikortteli onkin esimerkki energiatehokkaasta ja ympäristöä kunnioittavasta kaupunkityöympäristöstä.
Sijainti Punavuoren sydämessä tarjoaa loistavat liikenneyhteydet ja urbaanin ympäristön monipuolisine palveluineen. Raitiovaunu kulkee aivan vierestä, bussipysäkki sijaitsee vain 130 metrin päässä, ja lähimmälle metroasemalle on noin 1,5 kilometriä. Helsingin päärautatieasemalle matkaa kertyy alle kaksi kilometriä ja Helsinki-Vantaan lentoasemalle noin 22 kilometriä – Merikortteli on helposti saavutettavissa kaikista suunnista.
Merikorttelin toimitilat yhdistävät rouhean arkkitehtuurin ja nykyaikaisen toiminnallisuuden. Vuokralaiset hyötyvät kattavista palveluista, kuten lounasravintolasta, kahvilasta, neuvottelutiloista ja POOL-joustotiloista. Lisäksi käytössä ovat parkkihalli, pyöräparkki, päivittäistavarakauppa, wellness-palveluita sekä sähköauton latauspisteet.
Kiinteistö on vastuullinen valinta: rakennuksella on BREEAM Very Good -sertifikaatti, ja se hyödyntää kotimaista tuulisähköä, omaa aurinkovoimalaa sekä uusiutuvaa kiertolämpöä. Merikortteli onkin esimerkki energiatehokkaasta ja ympäristöä kunnioittavasta kaupunkityöympäristöstä.
Sijainti Punavuoren sydämessä tarjoaa loistavat liikenneyhteydet ja urbaanin ympäristön monipuolisine palveluineen. Raitiovaunu kulkee aivan vierestä, bussipysäkki sijaitsee vain 130 metrin päässä, ja lähimmälle metroasemalle on noin 1,5 kilometriä. Helsingin päärautatieasemalle matkaa kertyy alle kaksi kilometriä ja Helsinki-Vantaan lentoasemalle noin 22 kilometriä – Merikortteli on helposti saavutettavissa kaikista suunnista.
Pysäköinti
Pysäköintitilaa tarjolla korttelin omassa parkkihallissa sekä läheisissä pysäköintilaitoksissa.
Palvelut
Kiinteistössä Kaffa Roastery, Moko Market & Café ja Alepa. Toistakymmentä ravintolaa tai kahvilaa 500 metrin säteellä kiinteistöstä.
Kulkuyhteydet
Metroasema 1,5 km, Raitiovaunupysäkki 100 m, Bussipysäkki 200 m, Juna-asema 1,9 km, Lentoasema 23,1 km
Vapautuu
Heti
Kerros
2 / 6
Energiatehokkuusluokka
Ei lain edellyttämää energiatodistusta
Näkyvällä paikalla
Hissi
Ota yhteyttä
ScanReal Oy LKV
Opus Business Park
Hitsaajankatu 24
00810 Helsinki
info@scanreal.fi
Puh:
Näytä puhelinnumero
020 730 8830
Sopivat toimitilat yhdellä otolla!
Kartoitamme toimitilatarpeesi ja etsimme yrityksellesi parhaiten sopivat vapaat toimitilat. Koska vuokranantajat maksavat palvelumme, on tämä yrityksellesi veloituksetonta.
OTA YHTEYTTÄ - SOVI NÄYTTÖ!
Kaikki kohteemme eivät ole netissä, kerro tilatarpeesi niin kartoitamme vaihtoehdot.
Palvelumme on tilanhakijalle ilmainen
Pyydä lisätietoa
