Vuokrataan toimistotilat - Helsinki
Mikonkatu 2, Keskusta, 00100 Helsinki #10843315
Toimistotilaa erinomaisella paikalla Pohjoisesplanadilla.
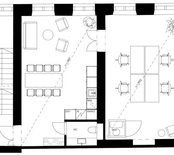
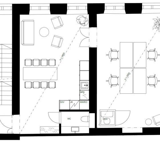
Tämä 67,5 m² toimistotila sijaitsee kiinteistön 3. kerroksessa. Toimiston ikkunat avautuvat Wreden pasaasin eli vanhan kauppakäytävän puolelle. Korkeat ja valoisat huoneet. Huoneisto peruskorjataan täydellisesti ja vanhaa kiinteistöä kunnioittaen. Tilan muutostyöt valmistuvat tämän hetkisen tiedon mukaan vuoden vaihteessa, jolloin tila on vuokrattavissa tammikuusta 2026 alkaen.
Mikonkatu 2 / Pohjoisesplanadi 35 on valmistunut vuonna 1888 ja sen on suunnitellut K.A. Wreden. Se sijaitsee erinomaisella paikalla Helsingin ydinkeskustassa. Kiinteistössä on suoritettu perusparannus kunnioittaen sen historiaa ja arkkitehtuuria. Kaikissa tiloissa on nyt koneellinen ilmanvaihto ja jäähdytys. Modernisoidut tilat valmistuivat loppuvuodesta 2016. Kiinteistö tarjoaa laadukkaita toimistotiloja monenkokoisille yrityksille ja sen tilat ovat hyödynnettävissä mm. monitilatoimistoina.
Kysy lisää numerosta 044 723 4700 tai info@bref.fi. Palvelumme on tilanhakijoille ilmainen.
Bureau Real Estate Finland Oy
Lars Sonckin kaari 16, 02600 Espoo
Näytä puhelinnumero
0447234700
Bureau Real Estate Finland Oy
https://www.bref.fi