Vuokrataan toimistotilat, työtilat - Porvoo
Piispankatu 34, 06100 Porvoo #10843297
Vuokrataan iso toimistotila Porvoon keskustassa!
Osoite
Piispankatu 34, 06100 Porvoo
Tilatyyppi
Toimistotilaa
426 m2
Työtilaa
426 m2
Yhteensä
426 m2
Virtuaaliesittely
Vuokra
11,90 €/m²/kk + alv
Vuokraan sisältyy lämpö
Muuta
Nyt on vuokrattavana hyväkuntoinen toimistotila ison liikerakennuksen toisesta kerroksesta. Tila sijaitsee keskustan kaikkien palveluiden keskellä ja toimii erinomaisesti yrityksen toimisto- tai vastaanottotilana!
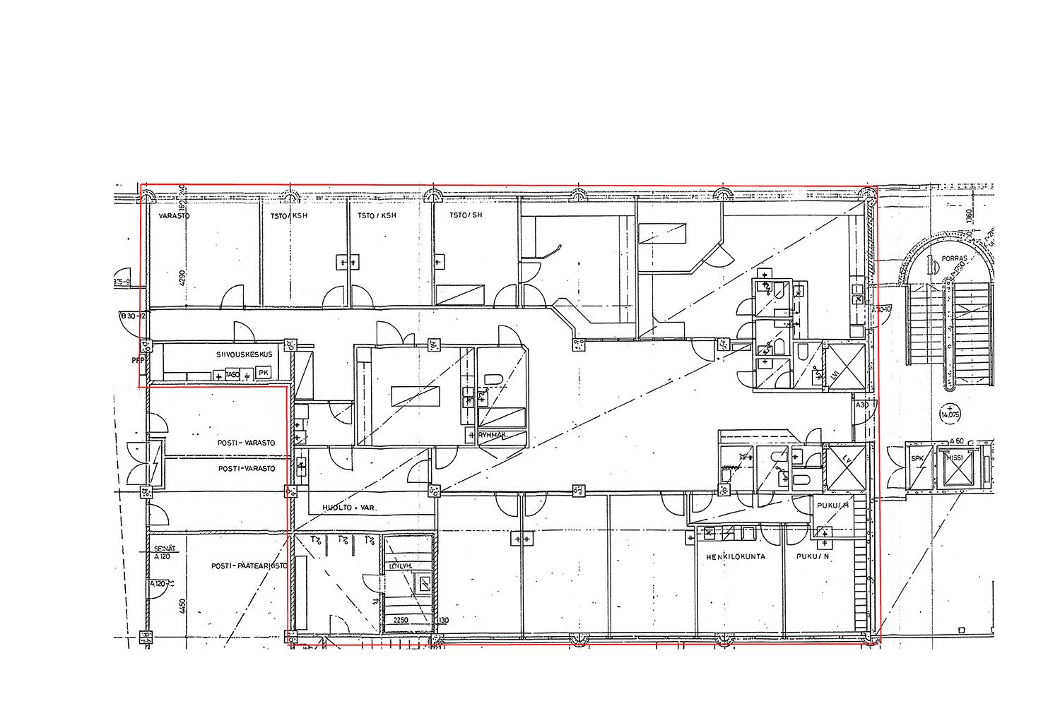
Tila on pinta-alaltaan 426 m²:n ja siellä on toimistohuoneita, avoin eteisaula, keittiö, wc, suihku sekä siivouskomero. Tila on kehystetty pohjakuvaan punaisella värillä. Huoneistossa on paljon kevyitä väliseiniä, joita mahdollisuus tarvittaessa purkaa/siirtää. Kaikista tilaan tarvittavista muutostöistä on kuitenkin sovittava erikseen. Ikkunoita on paljon ja huoneet ovat valoisat ja niistä näkymää Piispankadulle.
Esteetön sisäänkäynti Piispankadulta. Talossa on henkilöhissi ja tyylikäs katutason sisääntuloaula. Samassa rakennuksessa myös tarvittaessa vuokrattavana runsaasti lisää toimitilaa, kysy tästä tarvittaessa lisää!
Keskustan kaikki palvelut lähellä ja kadulla maksullisia parkkipaikkoja. Rakennuksen parkkihallissa myös vuokrattavana parkkihallipaikkoja erikseen sovitusti.
Erinomainen toimistotila keskeisellä sijainnilla Porvoon keskustassa!
Kohdetiedot
Sijainti
Katuosoite: Piispankatu 34, 06100 Porvoo
Kaupunginosa: Keskusta
Ympäristö: Keskusta, myymälärakennuksia
Rakennus/huoneisto
Pinta-alat: 426 m²
Kiinteistötyyppi: Liikerakennus
Rakennusvuosi: 1988
Tilatyyppi: Toimistotila
Kunto, varusteet ja palvelut: Hyvä kunto, toimistohuoneita, keittiö, useampi wc ja suihku sekä siivouskomero/varastohuone
Lämmitys: Kaukolämpö
Vapautuu: Heti vapaa
Vuokrahinta ja kulut
Kuukausivuokra: 11,90 €/m²/kk + alv
Sähkö- ja vesimaksu: Sähkö ja vesi kulutuksen mukaan
Lämmitys: Sisältyy vuokraan
Muuta: Vakuus 3kk vuokraa vastaava summa, minimisopimus 12kk ja luottotietojen on oltava kunnossa
Tila on pinta-alaltaan 426 m²:n ja siellä on toimistohuoneita, avoin eteisaula, keittiö, wc, suihku sekä siivouskomero. Tila on kehystetty pohjakuvaan punaisella värillä. Huoneistossa on paljon kevyitä väliseiniä, joita mahdollisuus tarvittaessa purkaa/siirtää. Kaikista tilaan tarvittavista muutostöistä on kuitenkin sovittava erikseen. Ikkunoita on paljon ja huoneet ovat valoisat ja niistä näkymää Piispankadulle.
Esteetön sisäänkäynti Piispankadulta. Talossa on henkilöhissi ja tyylikäs katutason sisääntuloaula. Samassa rakennuksessa myös tarvittaessa vuokrattavana runsaasti lisää toimitilaa, kysy tästä tarvittaessa lisää!
Keskustan kaikki palvelut lähellä ja kadulla maksullisia parkkipaikkoja. Rakennuksen parkkihallissa myös vuokrattavana parkkihallipaikkoja erikseen sovitusti.
Erinomainen toimistotila keskeisellä sijainnilla Porvoon keskustassa!
Kohdetiedot
Sijainti
Katuosoite: Piispankatu 34, 06100 Porvoo
Kaupunginosa: Keskusta
Ympäristö: Keskusta, myymälärakennuksia
Rakennus/huoneisto
Pinta-alat: 426 m²
Kiinteistötyyppi: Liikerakennus
Rakennusvuosi: 1988
Tilatyyppi: Toimistotila
Kunto, varusteet ja palvelut: Hyvä kunto, toimistohuoneita, keittiö, useampi wc ja suihku sekä siivouskomero/varastohuone
Lämmitys: Kaukolämpö
Vapautuu: Heti vapaa
Vuokrahinta ja kulut
Kuukausivuokra: 11,90 €/m²/kk + alv
Sähkö- ja vesimaksu: Sähkö ja vesi kulutuksen mukaan
Lämmitys: Sisältyy vuokraan
Muuta: Vakuus 3kk vuokraa vastaava summa, minimisopimus 12kk ja luottotietojen on oltava kunnossa
Vapautuu
Heti
Rakennusvuosi
1988
Kerros
2 / 3
Näkyvällä paikalla
Hissi
Ota yhteyttä
Tilat.fi
KTM, LKV Antti Soivio
Näytä puhelinnumero
0400 446 553
OTM, LKV Riikka Tuominen
Näytä puhelinnumero
0400 551 790
KTM, LKV Maria-Sofia Puhakka
Näytä puhelinnumero
0400-150330
MBA Susanne Wallenius
Näytä puhelinnumero
0400-128877
Yrityksen virallinen nimi: LKV Tilat.fi Oy.
Toimitilojen välitykseen erikoistunut yritys.
Pyydä lisätietoa
