Vuokrataan/myydään varastotilat - Kuopio
Haapaniementie 19, 70620 Kuopio #10843280
Kokonaisuus myydään yhdessä viereisen Tehdaskatu 8 -tontin kanssa, jonka kanssa tontit muodostavat yhtenäisen kokonaisuuden.
Osoite
Haapaniementie 19, 70620 Kuopio
Tilatyyppi
Varastotilaa
2445 m2
Kiinteistö
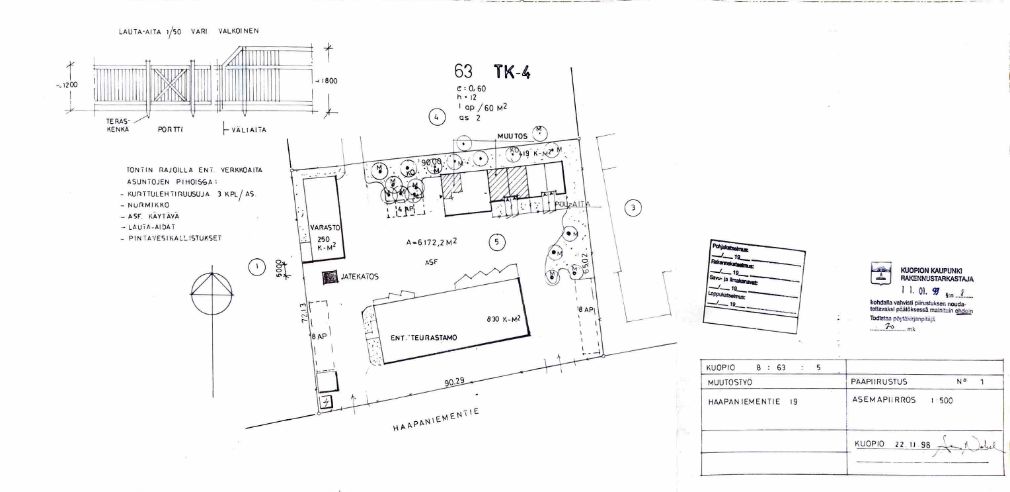
Tarjolla noin 2 426 m² kokoinen liike-/tuotanto-/varastokäyttöön soveltuva kiinteistökokonaisuus, joka sijaitsee 6 172 m²:n TK-kaavatontilla (teollisuus- ja varastorakennusten korttelialue).
Rakennukset on rakennettu vuosina 1954, 1959 ja 1961, ja ne ovat hyvin toimivassa kunnossa. Tiloista valtaosa on vuokrattu, joten kokonaisuus soveltuu erinomaisesti myös sijoittajalle.
Lisäksi tontilla on käyttämätöntä rakennusoikeutta 1 575 m², joka tarjoaa mahdollisuuden laajentaa tai kehittää aluetta edelleen.
Kokonaisuus myydään yhdessä viereisen Tehdaskatu 8 -tontin kanssa, jonka kanssa tontit muodostavat yhtenäisen kokonaisuuden.
Rakennukset on rakennettu vuosina 1954, 1959 ja 1961, ja ne ovat hyvin toimivassa kunnossa. Tiloista valtaosa on vuokrattu, joten kokonaisuus soveltuu erinomaisesti myös sijoittajalle.
Lisäksi tontilla on käyttämätöntä rakennusoikeutta 1 575 m², joka tarjoaa mahdollisuuden laajentaa tai kehittää aluetta edelleen.
Kokonaisuus myydään yhdessä viereisen Tehdaskatu 8 -tontin kanssa, jonka kanssa tontit muodostavat yhtenäisen kokonaisuuden.
Vapautuu
Heti
Energiatehokkuusluokka
Ei lain edellyttämää energiatodistusta
Katutasossa
Näkyvällä paikalla
Ota yhteyttä
Arvo Premises Oy
Joakim Kukkonen
Osakas, Toimitilavälittäjä
Näytä puhelinnumero
040 555 8106
Seppo Pakarinen
Osakas, Kiinteistönvälittäjä. LKV, YKV, AKA
Näytä puhelinnumero
040-703 8000
Pyydä lisätietoa
