Myydään toimistotilat - Kempele
Hakamaantie 18, Hakamaa, 90440 Kempele #10843274
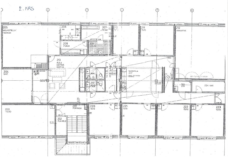
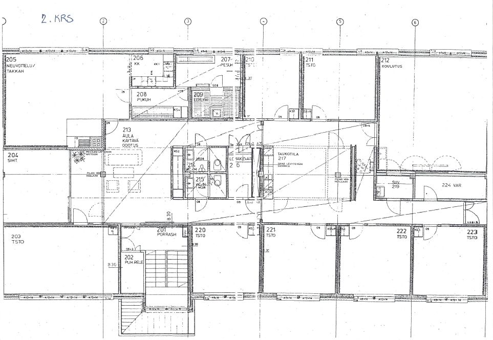
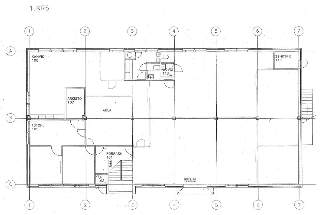
Kempeleen Hakamaalta myydään toimitilakokonaisuus. Tilat koostuvat toimisto- ja liiketiloista, joissa on eri kokoisia huoneita sekä avotilaa. Kaksitasoisessa rakennuksessa on myös pesu- ja saunatilat. Tontilla on hyvin rakennusoikeutta, mahdollisuus uudisrakennukselle tai lisärakentamiselle.
Esittelyt ja lisätiedot:
Joni Romppainen
040 5400 672
joni.romppainen@kiinteistotahkola.fi
Osoite
Hakamaantie 18, 90440 Kempele
Tilatyyppi
Toimistotilaa
825 m2
Myyntihinta
395000 €
Vapautuu
Tilat ovat pääosin vuokrattuna
Ota yhteyttä
Pyydä lisätietoa
