Vuokrataan toimistotilat - Helsinki
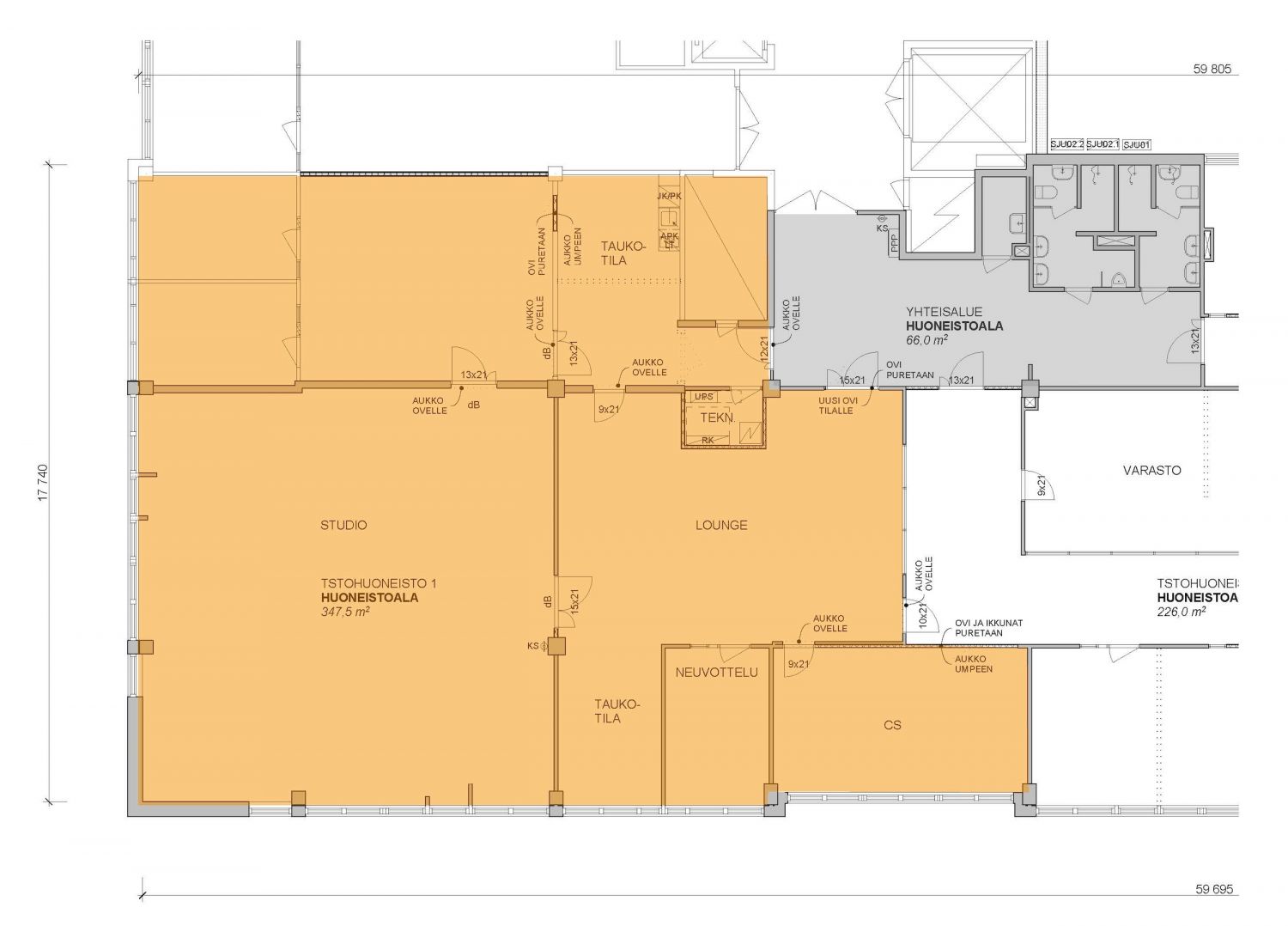
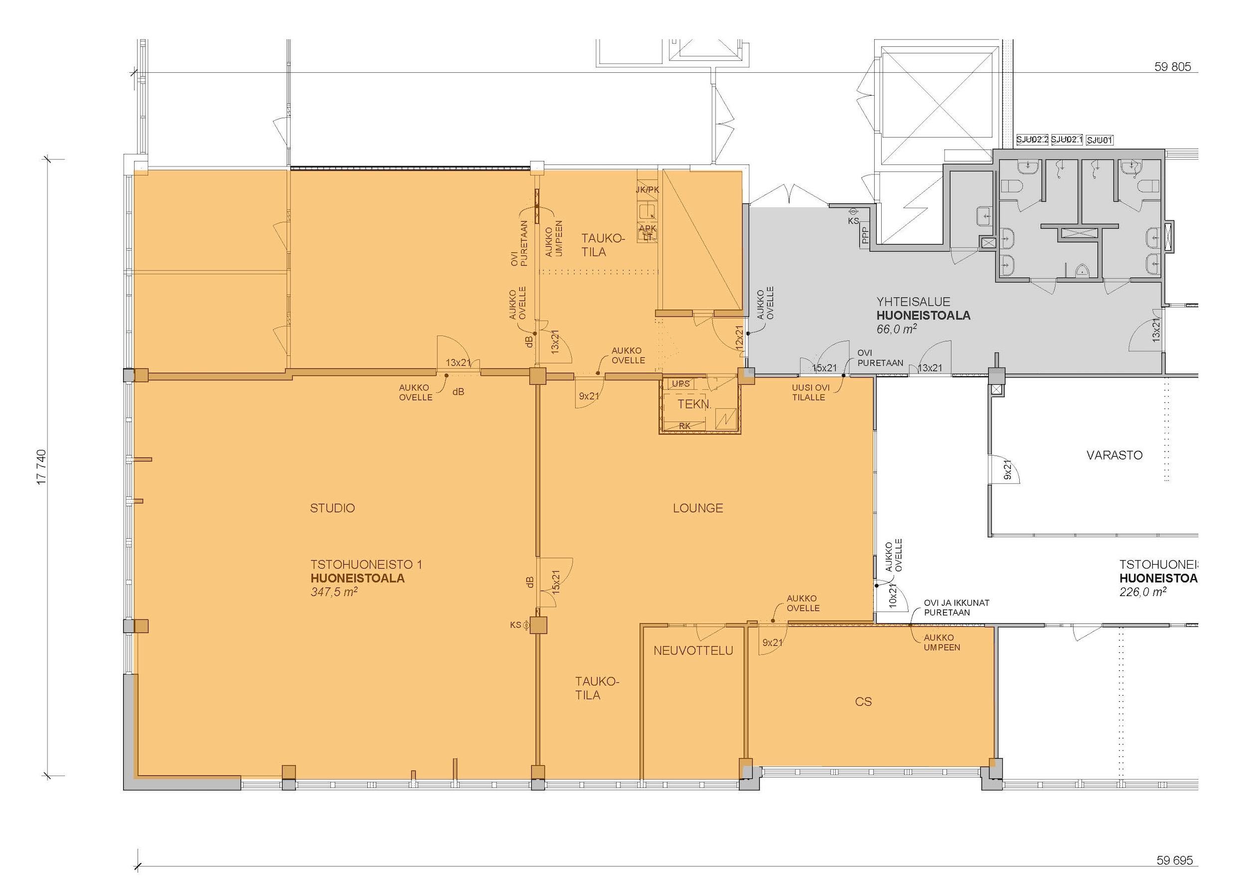
Valimotie 13b 2.krs 347.5 m² toimistotila, Valimotie 13b, Pitäjänmäki, 00380 Helsinki #10843246
Toimistokokonaisuus 347,5 m² Valimotie 13b:n toisessa kerroksessa. Tila sisältää jyvitetyn aulatilan, jossa myös wc-tilat sekä toimisto-osan, joka on pääosin avotoimistoa. Keittiö hiljattain remontoitu. Tilassa ääntä vaimentava ja mukavuutta tuova harmaa tekstiilipalamatto.
Toteutamme tilaan tarvittaessa remontit ja tilamuutokset vuokralaisen toiveiden mukaisesti. Suunnittelemme muutostyöt aina asiakaskohtaisesti vuokraneuvottelujen yhteydessä.
Rappukäytävässä henkilöhissin lisäksi myös tilava tavarahissi.
Katso videoesittely Valimo Centeristä: https://youtu.be/W4-0X0CgEa0
Tästä kohteesta voit olla yhteydessä pääkaupunkiseudun vuokrauspäällikköömme Artoon.
Puh. 044 906 2226 / Arto Haavisto
Jaettavissa
Hissi
Lastauslaituri
Nurmi-Yhtiöt Oy
Nurmi Kiinteistöt
Jousitie 7
20760 Piispanristi
puh.
Näytä puhelinnumero
044 906 2226
/ Arto Haavisto (pk-seutu)
puh.
Näytä puhelinnumero
040 624 0344
/ Ilias Niemi (Varsinais-Suomi)
