Vuokrataan toimistotilat - Helsinki
Käenkuja 3, Sörnäinen, 00500 Helsinki #10843237
Tyylikästä ja modernia toimistotilaa saneeratussa kiinteistössä Helsingin Sörnäisissä.
Osoite
Käenkuja 3, 00500 Helsinki
Tilatyyppi
Toimistotilaa
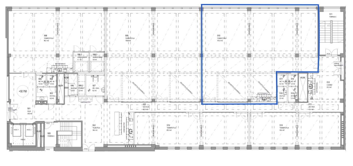
150 m2
Pohjapiirros
Kiinteistö
Kiinteistön 5. kerroksessa on POOL-pientoimistoalue, joka tarjoaa muuttovalmiita pientoimistoja. Tiloja vuokrataan joustavin sopimusehdoin. Tämä tila on kooltaan 150 m². Sisäkuvat ovat 5. kerroksen pientoimistoalueelta.
Käenkuja 3 on toimistokiinteistö, joka sijaitsee helposti saavutettavissa olevalla paikalla Hämeentien varrella. Kiinteistön tilat on modernisoitu industrial-tyylisiksi ja tekniikka on uusittu nykypäivän vaatimusten mukaiseksi. Kiinteistö on edustava ja hinnaltaan sekä sijainniltaan kilpailukykyinen. Kiinteistössä myös hyvät palvelut yrityksen liiketoiminnan tueksi.
Parkkipaikkoja on vuokrattavissa läheisestä pysäköintilaitoksesta. Talon omassa hallissa on muutamia paikkoja vapaana.
Käenkuja 3 on toimistokiinteistö, joka sijaitsee helposti saavutettavissa olevalla paikalla Hämeentien varrella. Kiinteistön tilat on modernisoitu industrial-tyylisiksi ja tekniikka on uusittu nykypäivän vaatimusten mukaiseksi. Kiinteistö on edustava ja hinnaltaan sekä sijainniltaan kilpailukykyinen. Kiinteistössä myös hyvät palvelut yrityksen liiketoiminnan tueksi.
Parkkipaikkoja on vuokrattavissa läheisestä pysäköintilaitoksesta. Talon omassa hallissa on muutamia paikkoja vapaana.
Vapautuu
Heti
Saneerausvuosi
2019
Kerros
5
Energiatehokkuusluokka
Ei lain edellyttämää energiatodistusta
Hissi
Ota yhteyttä
ScanReal Oy LKV
Opus Business Park
Hitsaajankatu 24
00810 Helsinki
info@scanreal.fi
Puh:
Näytä puhelinnumero
020 730 8830
Sopivat toimitilat yhdellä otolla!
Kartoitamme toimitilatarpeesi ja etsimme yrityksellesi parhaiten sopivat vapaat toimitilat. Koska vuokranantajat maksavat palvelumme, on tämä yrityksellesi veloituksetonta.
OTA YHTEYTTÄ - SOVI NÄYTTÖ!
Kaikki kohteemme eivät ole netissä, kerro tilatarpeesi niin kartoitamme vaihtoehdot.
Palvelumme on tilanhakijalle ilmainen
Pyydä lisätietoa
