Vuokrataan toimistotilat - Helsinki
Hiilikatu 3, Salmisaari, 00180 Helsinki #10843191
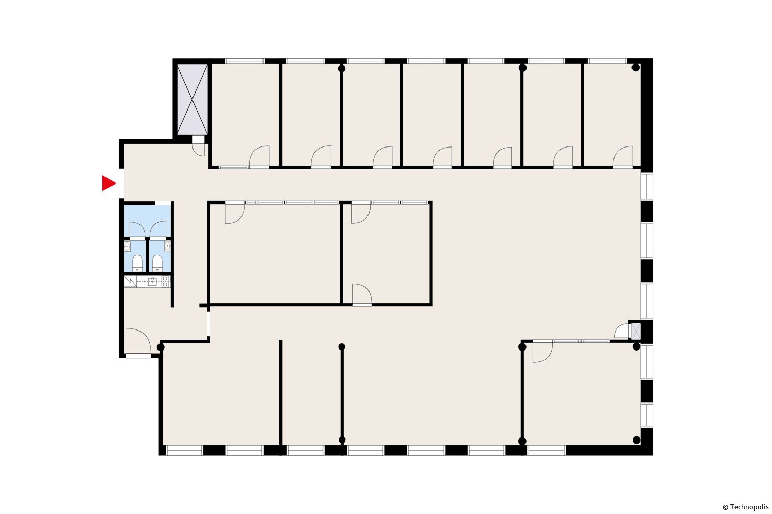
Vuokrattavana Technopolis Ruoholahdessa Helsingissä kolmannen kerroksen muuttovalmis ja toimivalla pohjalla varustettu 374 m² toimisto, josta on upea merinäköala. Tilassa on useita eri kokoisia huoneita, avotilaa, keittiö sekä wc-tilat, ja ilmastointi, joka takaa miellyttävän lämpötilan vuoden ympäri. Pohjaan on mahdollista tehdä muutoksia asiakkaan toiveiden ja tarpeiden mukaan.
Tila on vuokrattavissa myös kalustettuna, lisäksi saatavilla työtilan suunnittelu- ja muuttopalvelut helpottamaan muuttoa. Ota yhteyttä ja tule tutustumaan paikan päälle.
Technopolis Ruoholahden kampus sijaitsee Länsiväylän varrella Salmisaaren suositulla yritysalueella. Merellinen Salmisaari tunnetaan erinomaisista liikenneyhteyksistä, ja sinne on helppo tulla sekä autolla että julkisilla kulkuneuvoilla. Kampuksella on loistavat pysäköintimahdollisuudet.
Technopolis Ruoholahti tarjoaa laadukkaita ja tarpeidenne mukaan helposti muunneltavia toimitiloja. Kampukselta löydät arjen tueksi myös monipuoliset palvelut, jotka tekevät päivistäsi sujuvia. Palveluihin kuuluvat kehuttu aulapalvelu, tyylikkäät kokoustilat, kaksi suosittua ravintolaa ja moderni kuntosali.
Technopolis
Elektroniikkatie 8 FIN-90590 Oulu
Näytä puhelinnumero
046 712 0000
Hanna Peltola
Näytä puhelinnumero
050 514 3746
Nina Torkkeli
Näytä puhelinnumero
040 532 9787
Technopolis on työympäristöjen asiantuntija. Tarjoamme joustavia ja tehokkaita toimitiloja sekä niihin liittyviä palveluita. Hoidamme kaiken työtilojen suunnittelusta sekä aula- ja kokouspalveluista ravintoloihin ja siivoukseen. Asiakaskokemus ja sen kehittäminen ovat toimintamme ytimessä. Meillä on 14 kampusta, joissa toimii 1200 asiakasyritystä ja niiden 35 000 työntekijää neljässä maassa Euroopassa.
https://technopolisglobal.com/fi