Vuokrataan liiketilat - Jyväskylä
Kauppakatu 39, Keskusta, 40100 Jyväskylä #10843150
Vuokrataan Jyväskylän keskustasta katutason liiketilaa
Osoite
Kauppakatu 39, 40100 Jyväskylä
Tilatyyppi
Liiketilaa
449 m2
Muuta
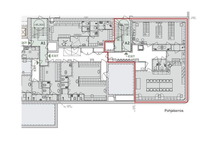
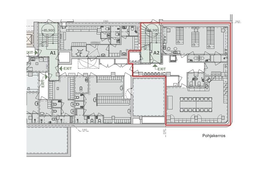
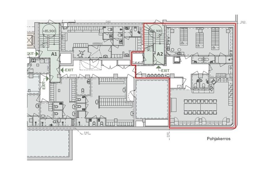
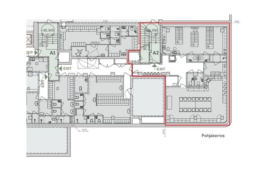
Vuokrataan Jyväskylän ydinkeskustasta Kauppakadun ja Väinönkadun kulmauksessa sijaitseva katutason 449 m2 liiketila joka vapautuu uudelle vuokralaiselle 1.12.2025 alkaen. Liiketilan lisäksi pohjakerroksessa on n. 156 m2 sosiaalitilat jossa pukuhuoneet, wc:t ja suihkut sekä n. 53 m2 taukotila keittiöineen. Mahdollista vuokrata myös liiketilan yhteydessä oleva 2. kerroksen n. 80 m2 toimistotila. Ota yhteyttä lisätietoja varten!
Vapautuu
01.12.2025
Kerros
1
Ota yhteyttä
Infonia Oy
Kauppakatu 18 A, 40100 Jyväskylä
Näytä puhelinnumero
+358 407579731
Mikko Hirvi
Näytä puhelinnumero
+358 407579731
Pyydä lisätietoa
