Vuokrataan toimistotilat - Espoo
Piispanportti 11, Piispankylä, 02200 Espoo #10843130
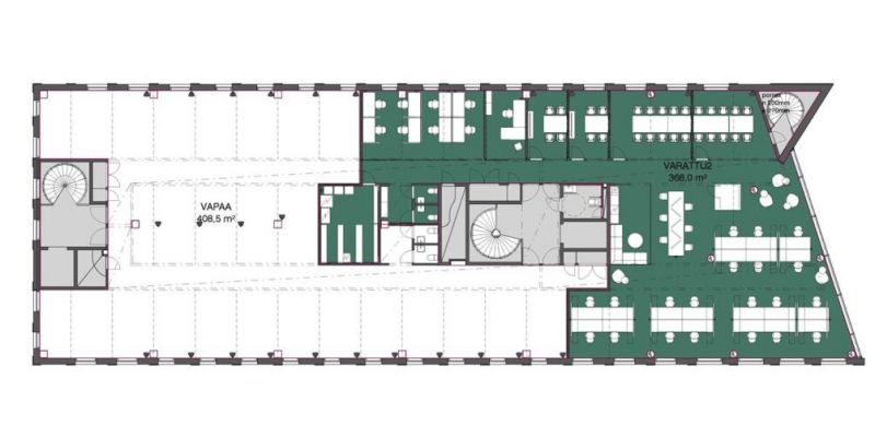
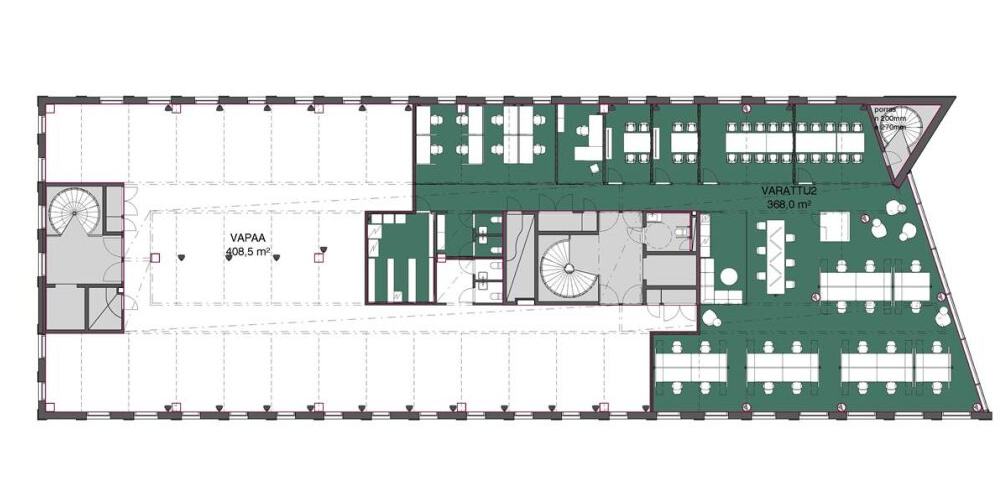
Vapaana neljännen kerroksen toimistotila Piispanportti 11 toimistotalossa.
Monipuoliset ja muunneltavat toimitilat tarjoavat viihtyisän työympäristön hyvien liikenneyhteyksien ja palvelujen äärellä. Iso Omena ja metroasema ovat vain pienen kävelymatkan päässä Länsiväylän toisella puolella. Kiinteistössä on vastaanotto ja neuvottelutiloja sekä monipuolinen kuntosali, joka on sijoitettu talon ylimpään kerrokseen. Ota yhteyttä ja sovi esittely, vuokrauspalvelumme on tilanhakijoille maksuton.
Nykyaikainen talotekniikka, mm. jäähdytys säteilijöillä.
Hyvät palvelut työn tueksi: aulapalvelu, kahvila, neuvottelutilat, kuntosali.
Kestävää kehitystä ja hyvinvointia tukeva, LEED- ja WELL-sertifiointeihin tähtäävä toteutus. Sujuva saapuminen: 135 pysäköintioikeuspaikkaa, runsaasti pyöräpaikkoja.
Piispanportin toimistotalo edustaa nykypäivän toimintaympäristöä, jossa tilat ja palvelutarjonta on suunniteltu käyttäjä edellä.
Energiatehokas, käyttöön ja tarpeeseen reagoiva valaistuksenohjaus, laadukkaat akustiikkaratkaisut, tasainen, vedoton viilennys ja optimoitu ilmanvaihto tukevat tehokasta, tuottavaa työskentelyä.
Valoisa ja avara aula toimii koko talon vapaamuotoisena kohtauspaikkana, jossa voi vaihtaa kuulumiset ja verkostoitua muiden käyttäjien kanssa. Viihtyisään ja innostavaan työympäristöön on mukava tulla aina uudelleen!
Kohteelle tavoitellaan kansainvälisesti tunnetuimman LEED (Leadership in Energy and Environmental Design) sertifioinnin Gold-tasoa. LEED-sertifiointi mittaa laajasti rakentamisen kestävyyttä huomioiden maankäytön ja sijainnin, vedenkäytön, energiatehokkuuden, materiaalitehokkuuden sekä sisäilman laadun.
Uudiskohde
Näkyvällä paikalla
Jaettavissa
Hissi
Senaatin Notariaatti Oy LKV
Lämmittäjänkatu 4 A
FIN-00880 Helsinki
Tel:
Näytä puhelinnumero
+358 9 7745 100
