Vuokrataan toimistotilat - Helsinki
Fredrikinkatu 47, Keskusta, 00100 Helsinki #10843115
Muuntokelpoista jäähdytyksellä varustettua modernia toimistotilaa kivenheiton päässä Kampin ja Forumin kauppakeskuksista Fredrikinkadun ja Kalevankadun kulmakiinteistössä. Toimistotila on helposti omien makumieltymysten ja tarpeiden mukaan kalustettavissa. Huom. Kuvat ovat kiinteistön vastaavista tiloista. Ota yhteyttä ja sovi esittely, vuokrauspalvelumme on tilanhakijoille maksuton.
Osoite
Fredrikinkatu 47, 00100 Helsinki
Tilatyyppi
Toimistotilaa
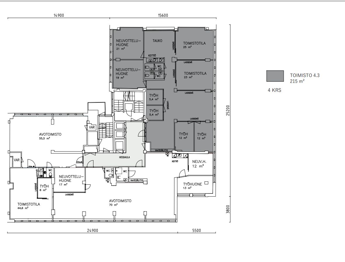
215 m2
Pohjapiirros
Kiinteistö
Kellaritilasta löytyy suihku- ja pukuhuonetilat ja vuokrattavat varastotilat. Kiinteistöllä on oma parkkihalli, josta parkkipaikkojen lisäksi löytyy lämpimiä pyöräpaikkoja. Kiinteistön sisäpihalta löytyy lisää pyöräpaikkoja ja muutama autopaikka. Kiinteistössä on tehty ympäristöystävällisiä ja energiatehokkaita valintoja, kiinteistö on mm. kaukojäähdytetty.
Pysäköinti
Omassa autohallissa, sekä pihakannella. Parkkipaikkojen lisäksi löytyy lämpimiä pyöräpaikkoja.
Palvelut
Kaikki keskustan ja Kampin palvelut kävelymatkan päässä.
Kulkuyhteydet
HSL
Vapautuu
Heti
Rakennusvuosi
1955
Kerros
4 / 7
Energiatehokkuusluokka
Ei lain edellyttämää energiatodistusta
Hissi
Liitetiedostot
Ota yhteyttä
Senaatin Notariaatti Oy LKV
Lämmittäjänkatu 4 A
FIN-00880 Helsinki
Tel:
Näytä puhelinnumero
+358 9 7745 100
Pyydä lisätietoa
