Vuokrataan toimistotilat - Tampere
Kelloportinkatu 1, 33100 Tampere #10843103
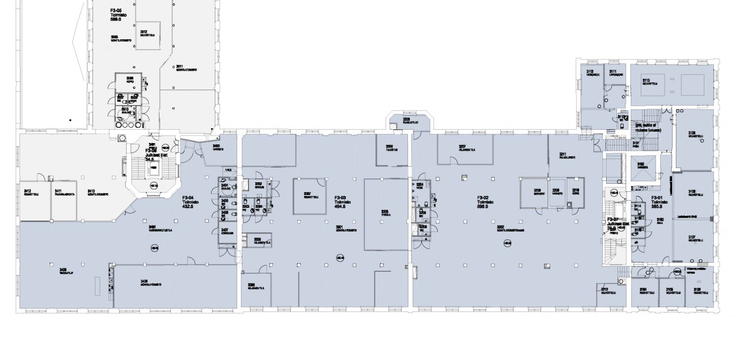
Vuokrattavana 3. kerroksen avaraa, siistiä, laadukasta toimistotilaa.
Osoite
Kelloportinkatu 1, 33100 Tampere
Tilatyyppi
Toimistotilaa
1909 m2
Tilajako
Jaettavissa
n. 500 m2
Kiinteistö
Vuokrattavana 3. kerroksen avaraa, siistiä, laadukasta toimistotilaa. Tilassa on korkea huonekorkeus ja isot ikkunat. Toimistosta löytyy sekä toimisto- ja neuvotteluhuoneita että avotilaa.
Sijainti
Tampella, Tampere
Pysäköinti
Kiinteistöllä on oma pysäköintihalli ja pihaparkkipaikkoja.
Palvelut
-Lounasravintola
Kulkuyhteydet
-Bussi
-Oma auto
-Oma auto
Vapautuu
Heti
Kerros
3
Energiatehokkuusluokka
Ei lain edellyttämää energiatodistusta
Näkyvällä paikalla
Jaettavissa
Hissi
Ota yhteyttä
REALIUM OY LKV
Tammasaarenkatu 1, 00180 Helsinki
Vaihde:
Näytä puhelinnumero
010 326 346
Tuomo Mäkelä
tuomo.makela@realium.fi
p.
Näytä puhelinnumero
044 050 1158
Joel Keto
joel.keto@realium.fi
p.
Näytä puhelinnumero
045 317 0330
KAIKKI TILAVAIHTOEHDOT KERRALLA!
SOITA - MEILAA JA TILAA NÄYTTÖ!
Ilmainen palvelu tilanhakijoille.
Kartoitamme parhaat tilavaihtoehdot.
Kaikki kohteet eivät ole netissä.
Pyydä lisätietoa
