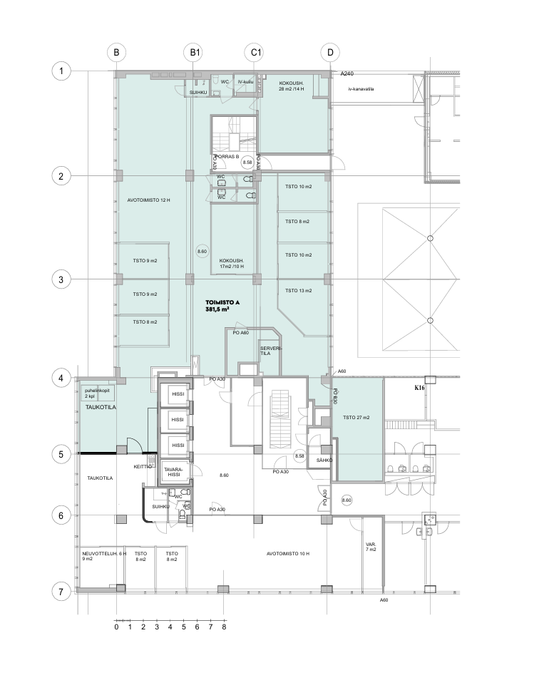
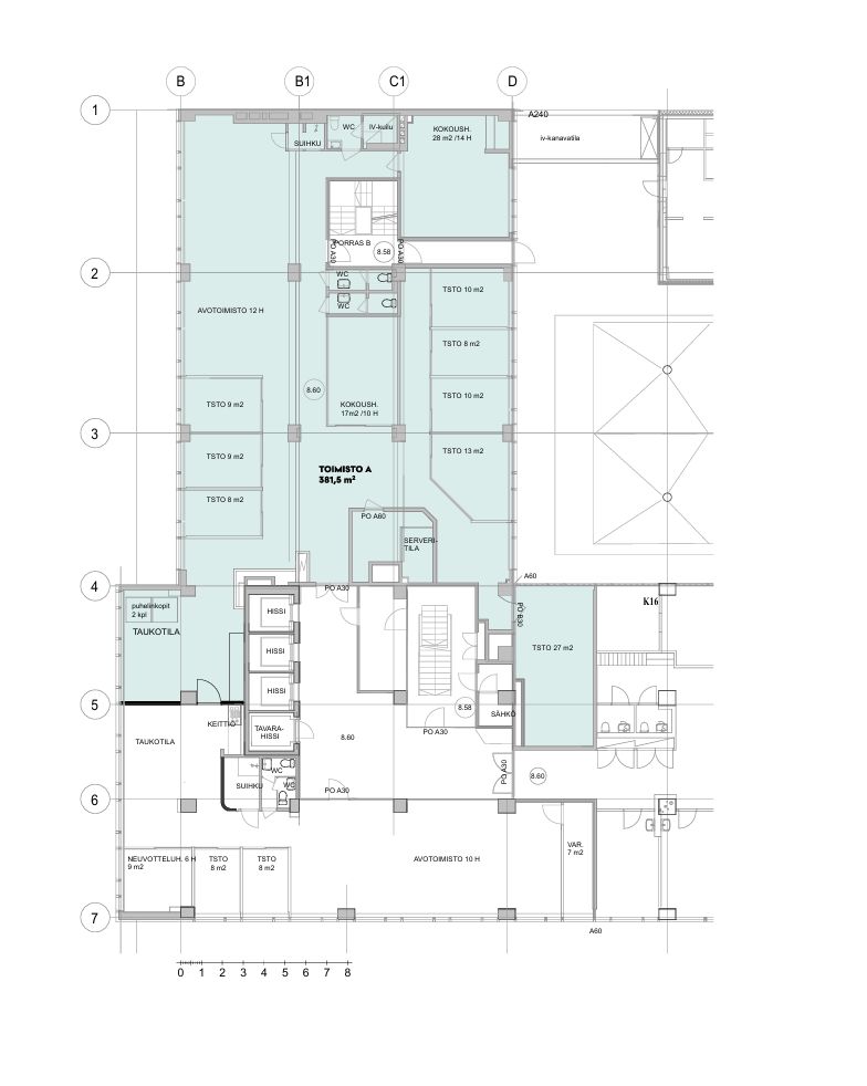
Lataa pohjapiirros [PDF]
Pohjapiirros
Vuokrataan toimistotilat - Helsinki
Mikonkatu 8, Keskusta, 00100 Helsinki #10843102
Vuokrataan Aikatalon 3:sta kerroksesta kombitoimistotilaa, joka remontoidaan käyttäjän tarpeiden ja toiveiden mukaan niin pinnoiltaan, huonejaon että materiaalien suhteen. Ota yhteyttä ja sovi esittely, vuokrauspalvelumme on tilanhakijoille maksuton.
Osoite
Mikonkatu 8, 00100 Helsinki
Tilatyyppi
Toimistotilaa
381 m2
Pohjapiirros
Kiinteistö
Aikatalo on Helsingin keskustassa Ateneumin takana, osoitteessa Mikonkatu 8 sijaitseva liiketalo. Kiinteistö valmistui vuonna 1961. Sen rakennutti Aikalan Kello ja Kulta Oy:n toimitusjohtaja Olga Aikala ja sen suunnitteli Eliel Muoniovaara. Lue lisää osoitteesta https://aikatalo.fi
Sijainti
Keskusta/Aikatalo
Pysäköinti
Keskustan parkkihallit.
Palvelut
Vastapäätä sijaitsevastasta Epicenteristä (Mikonkatu 9) vuokrattavana neuvottelu-tapahtuma- ja co-working tiloja.
Vapautuu
Heti
Rakennusvuosi
1961
Kerros
3
Energiatehokkuusluokka
Ei lain edellyttämää energiatodistusta
Hissi
Liitetiedostot
Ota yhteyttä
Senaatin Notariaatti Oy LKV
Lämmittäjänkatu 4 A
FIN-00880 Helsinki
Tel:
Näytä puhelinnumero
+358 9 7745 100
Pyydä lisätietoa
