Vuokrataan toimistotilat - Helsinki
Fredrikinkatu 47, Kamppi, 00100 Helsinki #10843086
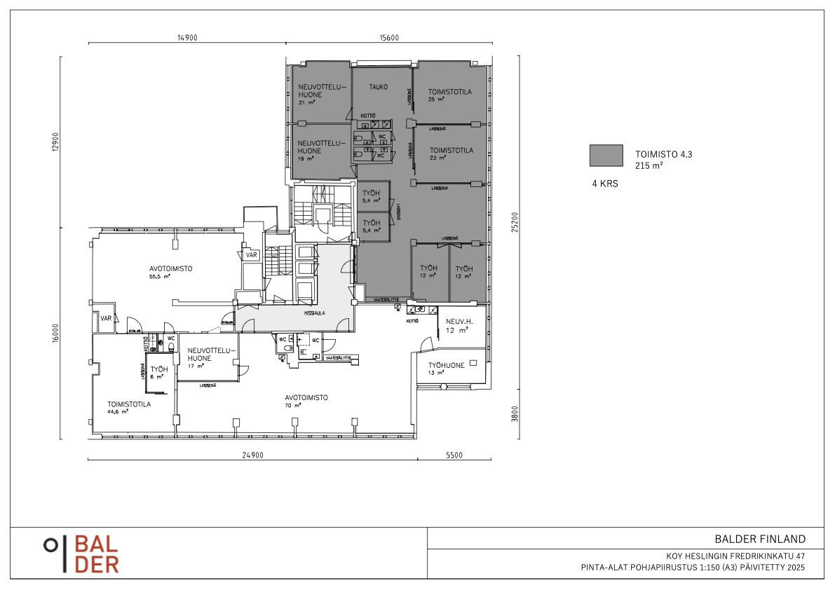
Siisti ja moderni 215 m² toimisto aivan Helsingin sydämestä, Fredrikinkadulta.
Osoite
Fredrikinkatu 47, 00100 Helsinki
Tilatyyppi
Toimistotilaa
215 m2
Pohjapiirros
Kiinteistö
Tilassa kahdeksan erillistä työskentelytilaa, wc:t ja avokeittiö.
Rakennus sijaitsee keskeisellä paikalla Kampin kupeessa, ja energiatehokkuuteen on kiinnitetty huomiota. Kiinteistössä on tavarahissiyhteys kaikkiin kerroksiin, ja aulasta löytyy Postin pakettiautomaatti, mikä helpottaa arkea. Parkkipaikkoja on saatavilla Kampin ja Forumin pysäköintihalleissa.
Sijainti on loistava: vain lyhyen kävelymatkan päässä Kampin metroasemalta ja muista julkisen liikenteen yhteyksistä. Kaikki keskustan palvelut, ravintolat ja kahvilat ovat aivan vieressä. Tule kokemaan tämä toimistotila paikan päällä!
Rakennus sijaitsee keskeisellä paikalla Kampin kupeessa, ja energiatehokkuuteen on kiinnitetty huomiota. Kiinteistössä on tavarahissiyhteys kaikkiin kerroksiin, ja aulasta löytyy Postin pakettiautomaatti, mikä helpottaa arkea. Parkkipaikkoja on saatavilla Kampin ja Forumin pysäköintihalleissa.
Sijainti on loistava: vain lyhyen kävelymatkan päässä Kampin metroasemalta ja muista julkisen liikenteen yhteyksistä. Kaikki keskustan palvelut, ravintolat ja kahvilat ovat aivan vieressä. Tule kokemaan tämä toimistotila paikan päällä!
Vapautuu
Heti
Rakennusvuosi
1955
Kerros
4
Energiatehokkuusluokka
Ei lain edellyttämää energiatodistusta
Näkyvällä paikalla
Ota yhteyttä
ScanReal Oy LKV
Opus Business Park
Hitsaajankatu 24
00810 Helsinki
info@scanreal.fi
Puh:
Näytä puhelinnumero
020 730 8830
Sopivat toimitilat yhdellä otolla!
Kartoitamme toimitilatarpeesi ja etsimme yrityksellesi parhaiten sopivat vapaat toimitilat. Koska vuokranantajat maksavat palvelumme, on tämä yrityksellesi veloituksetonta.
Palvelumme on tilanhakijalle ilmainen
Pyydä lisätietoa
