Vuokrataan varastotilat - Oulu
Voudintie 1, Limingantulli, 90400 Oulu #10843057
Limingantullissa, Voudintie 1, vuokrattavana eri kokoisia kokonaisuuksia aina yksittäisistä autotalleista isompiin varastoihin ja toimistoihin (30m2 - 1175m2). Varastoja on mahdollista yhdistää.
Kohteessa vuorkattavana:
Toimisto (369m2), jossa edustustilat ja sauna.
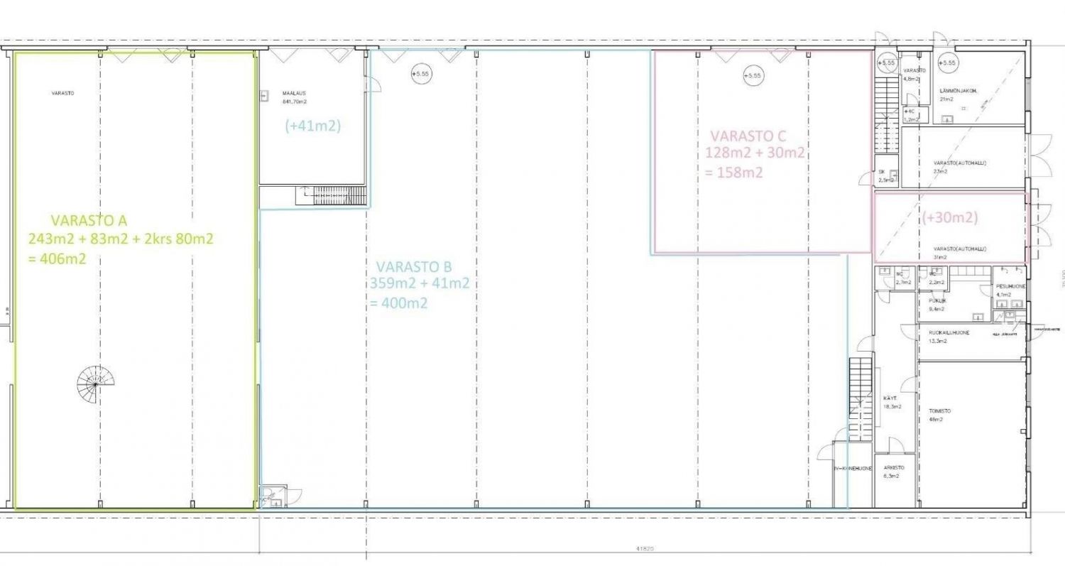
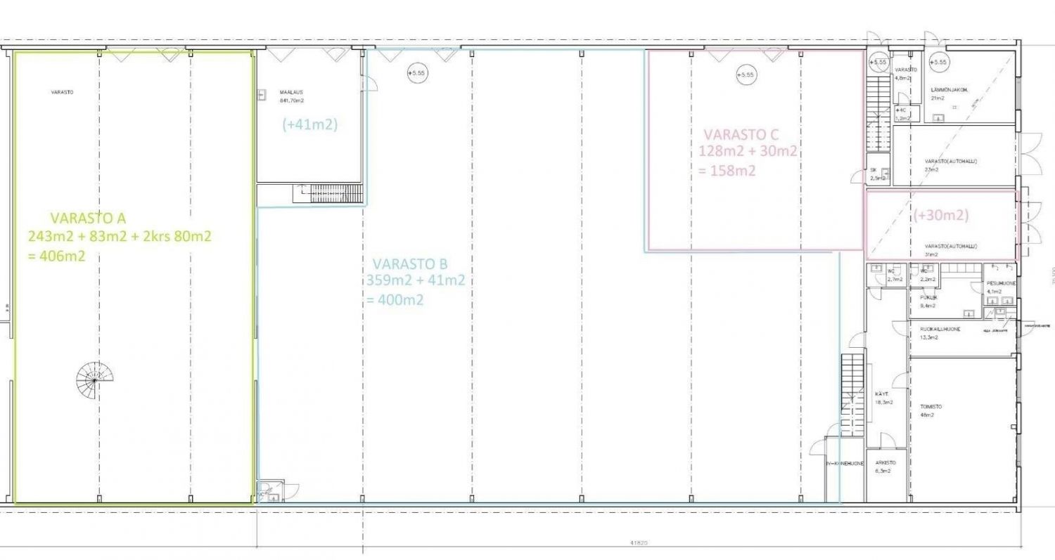
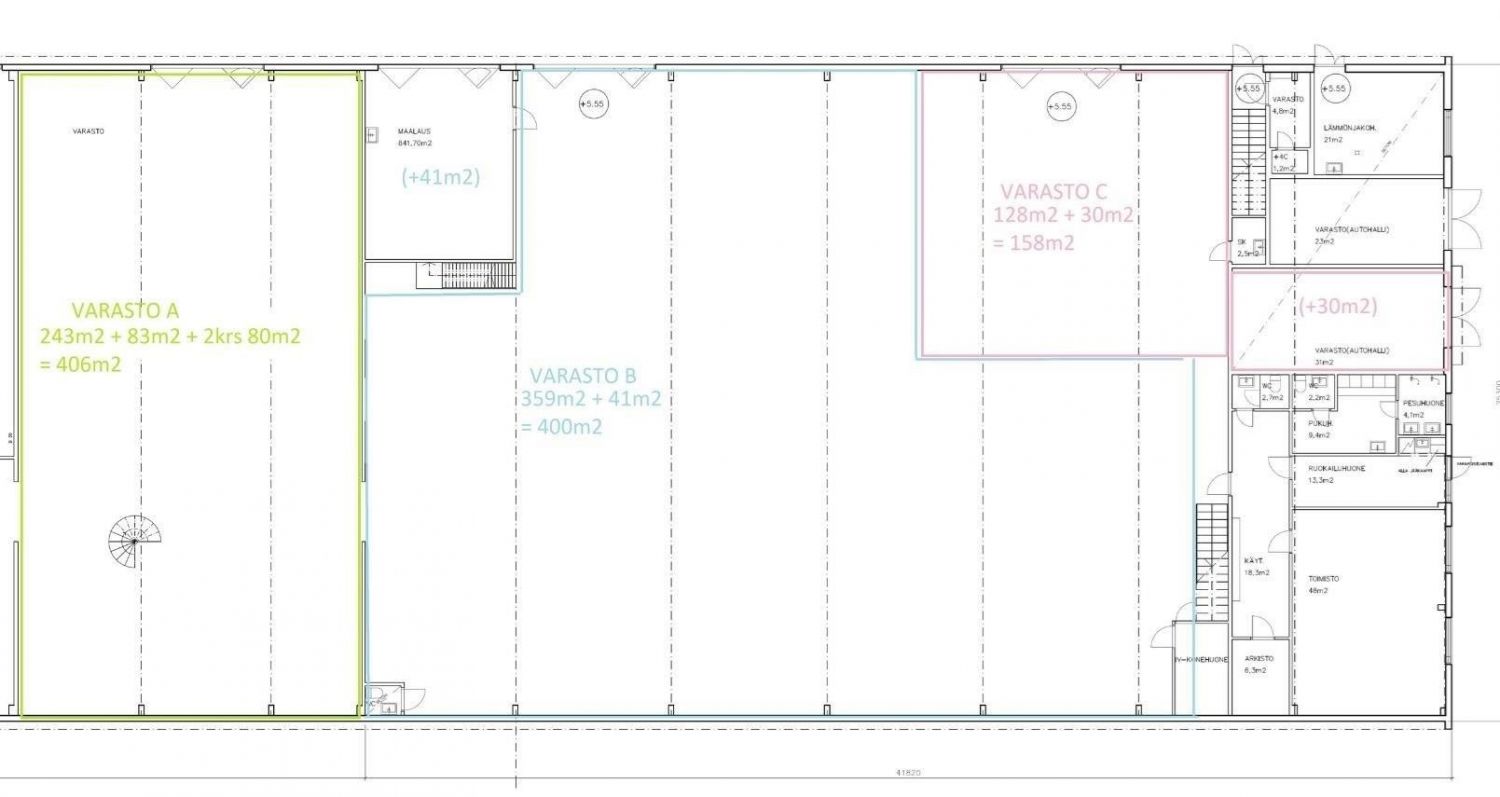
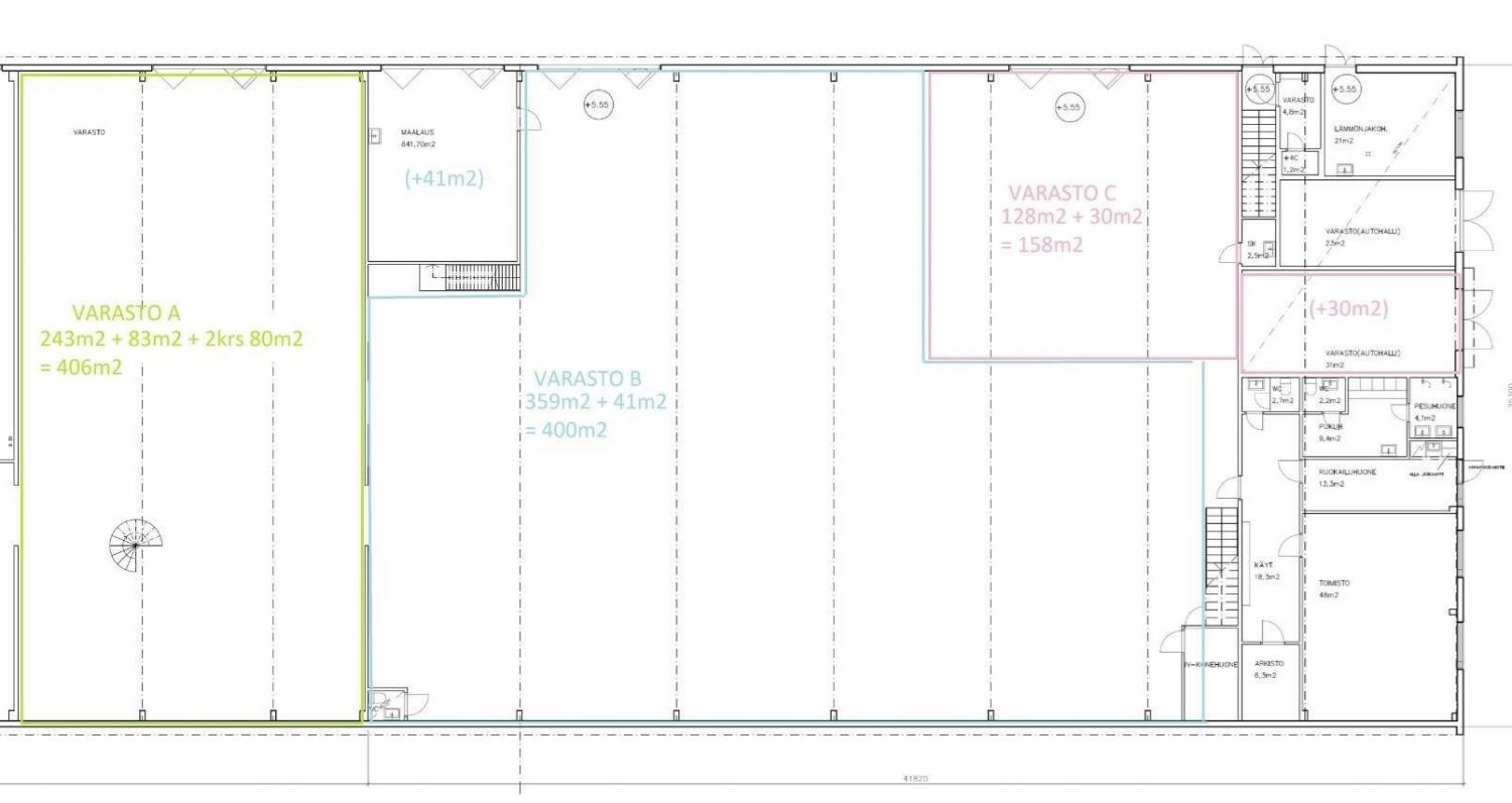
Varasto A (406m2). Tässä tilassa on toisessa kerroksessa taukotilat ja toimistohuoneet 2kpl.
Varasto B (359m2 + 41m2 autotalli). Tässä tilassa on 1kpl wc ja siltanosturi.
Varasto C (128m2 + 30m2). Tilassa 1kpl wc ja 30m2 autotalli/varastotila.
Vuokrataso 9€/m2 sisältää lämmityksen, kiinteistöhuollon sekä veden. Käyttösähkö 0.30€/m2/kk.
Hintoihin lisätään alv. Pinta-alat on suuntaa-antavat.
Ota yhteyttä niin katsotaan teille sopiva kokonaisuus! Julia Hoikkala 050 411 8747 tai julia.hoikkala@op.fi.
Limingantullissa, Voudintie 1, vuokrattavana toimitiloja. Vuokrattavana eri kokoisia kokonaisuuksia aina yksittäisistä autotalleista isompiin varastoihin ja toimistoihin (30m2 - 1175m2). Kysy toimintaasi sopivia tiloja.
Siltanosturi
OP Koti Pohjoinen Oy LKV
Toimitila- ja vuokravälitys
Lekatie 6
90140 OULU
Julia Hoikkala
Myyntineuvottelija, Toimitilat, LVV, Trad.
Näytä puhelinnumero
050 411 8747
