Vuokrataan toimistotilat - Helsinki
Runeberginkatu 14-16, Töölö, 00100 Helsinki #10843043
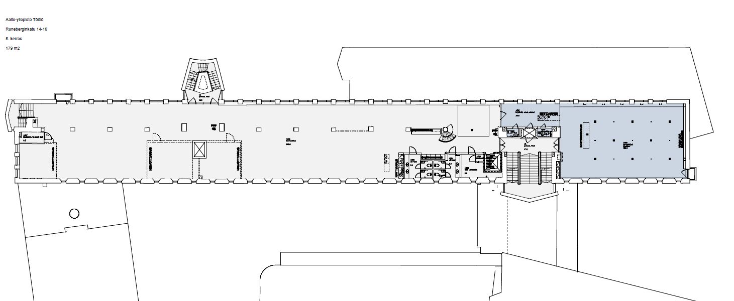
Vuokrataan toimistotilaa 179 m2 5.kerroksesta, ikonisesta Aalto-yliopisto Töölön kiinteistöstä. Tilasta löytyy oma taukokeittiö ja wc-tilat. Tila on upean korkea, ja siihen on rakennettu korotettu lattia sekä 2 kpl Octacell kevyt neuvotteluhuoneita, jotka nykyinen vuokralainen voi jättää tilaan. Tila sijaitsee A-siivessä, joka on kunnostettu vastaamaan nykyaikaisia käyttötarpeita. Ohessa havainnollistavia kuvia kiinteistön tiloista. Tila vapautuu 1.5.2026. Tilat vuokrataan kalustamattomina.
Rakennus on historiallista arvoa henkivä, Kauppakorkeakoulun entinen päärakennus joka on peruskorjattu ja uudistettu vuonna 2020. Rakennuksen juhlasali on suojeltu eikä julkisivuun ole tehty muutoksia, mutta rakennuksen talotekniikka on täysin uudistettu. Peruskorjauksen myötä kiinteistön energiatehokkuutta ja esteettömyyttä on parannettu merkittävästi.
Aalto-yliopiston edestä kulkevat raitiovaunut ja bussit, sekä Kampin metroasemalle kävelee vain muutamassa minuutissa.
Lisätietoja numerosta 020 7290 710. Lisää kohteita osoitteessa www.premises.fi
Kohteella ei ole lain edellyttämää energiatodistusta tai energialuokka ei tiedossa.Kerros: 5
CRE PREMISES
Puh. Näytä puhelinnumero 020 7290 710
Vantaankoskentie 14
01670 VANTAA
