Vuokrataan toimistotilat - Helsinki
Energiakuja 3, Salmisaari, 00180 Helsinki #10842976
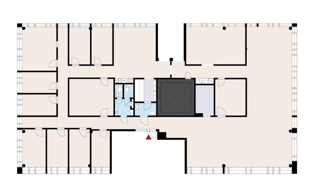
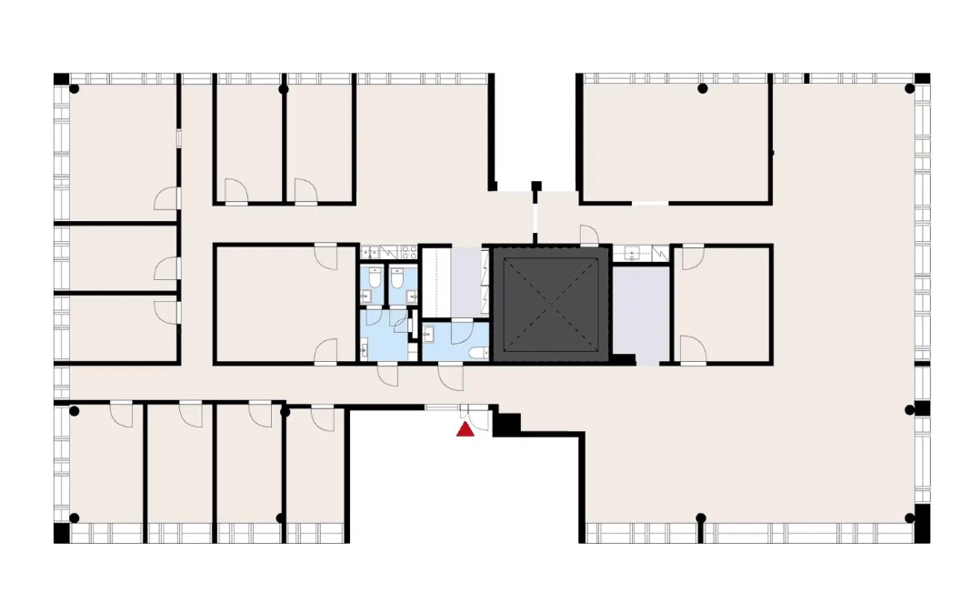
Vuokrataan Technopolis-Ruoholahti 2 -kiinteistön 8. kerroksessa sijaitseva tasokas kombi-/huonetoimisto. Tila modifioidaan vastaamaan tulevan käyttäjän tarpeita. Kiinteistössä vastaanottopalvelu, neuvottelukeskus, lounge-alue ja ravintolamaailma. Kerroksessa jäähdytetty konehuone. Talossa on myös kuntosali ja autohalli. SOITA ja SOVI ESITTELY!
Osoite
Energiakuja 3, 00180 Helsinki
Tilatyyppi
Toimistotilaa
550 m2
Pohjapiirros
Kiinteistö
Moderni toimistotalo varustettuna korkealuokkaisella teknologialla ja palveluilla.
Sijainti
Salmisaari
Ympäristö
Kansainvälinen
Pysäköinti
Kiinteistön alla suuri parkkihalli johon suora hissiyhteys.
Palvelut
Kaikki Business Park palvelut.
Kulkuyhteydet
Ruoholahden metroasemalle bussiyhteys 8-min. välein.
Vapautuu
Heti
Rakennusvuosi
2012
Kerros
8
Energiatehokkuusluokka
Ei lain edellyttämää energiatodistusta
Näkyvällä paikalla
Ota yhteyttä
Senaatin Notariaatti Oy LKV
Lämmittäjänkatu 4 A
FIN-00880 Helsinki
Tel:
Näytä puhelinnumero
+358 9 7745 100
Pyydä lisätietoa
