Vuokrataan toimistotilat - Helsinki
Kasarmikatu 25, Kaartinkaupunki, 00130 Helsinki #10842964
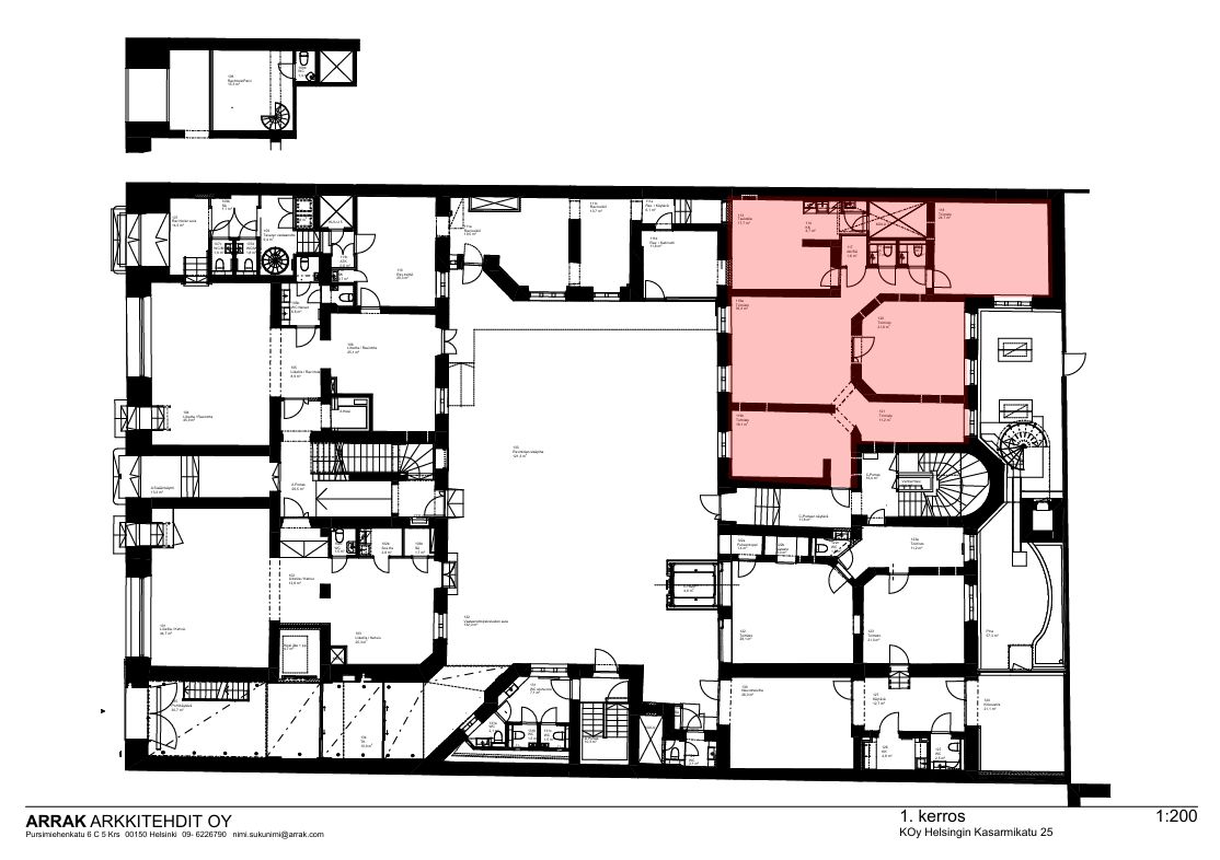
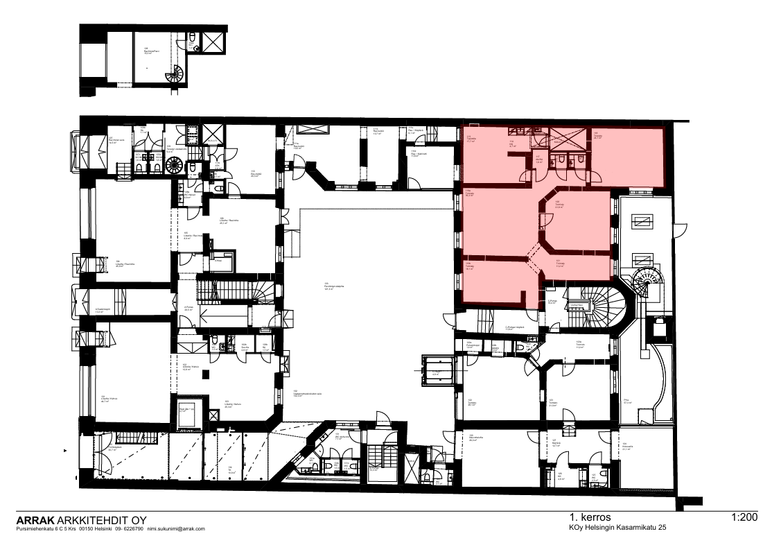
Aivan Esplanadipuiston tuntumassa Helsingin ydinkeskustassa mahdollisuus vuokrata täysin modernisoitua arvokiinteistön toimistotilaa, joka saneerauksen jälkeen täyttää tekniseltä tasoltaan kaikki nykyajan vaatimukset. Tämä tila sijaitsee viihtyisän katetun sisäpihan puolella. Ota yhteyttä ja sovi esittely, vuokrauspalvelumme on tilanhakijoille maksuton.
Kiinteistön kuusi kerrosta jakautuvat seuraavasti;
• Kellarikerroksessa neuvottelutilat n. 400 m², jotka tarjoavat inspiroivat puitteet niin pienille kokouksille kuin suurille asiakastilaisuuksille.
• Katutason liiketilat ja upea katettu ja lämmitetty atriumpiha n. 700 m².
• 2.-5.krs toimistotilat á n. 700 m²/kerros.
• 6.krs ullakkotoimisto n. 640 m².
Senaatin Notariaatti Oy LKV
Lämmittäjänkatu 4 A
FIN-00880 Helsinki
Tel:
Näytä puhelinnumero
+358 9 7745 100
