Vuokrataan toimistotilat - Espoo
Metsänneidonkuja 6, Pohjois-Tapiola, 02130 Espoo #10842947
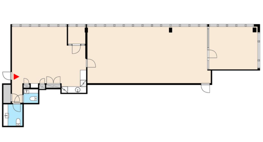
Vuokrattavana 3. kerroksen viihtyisää, laadukasta, valoisaa ja jäähdytettyä toimistotilaa.
Osoite
Metsänneidonkuja 6, 02130 Espoo
Tilatyyppi
Toimistotilaa
141 m2
Kiinteistö
Vuokrattavana 3. kerroksen viihtyisää, laadukasta, valoisaa ja jäähdytettyä toimistotilaa. Toimitilassa on työhuoneita, oma keittiö ja wc-tilat.
Sijainti
Spektri Business Park /Duo, Pohjois-Tapiola, Espoo
Pysäköinti
Kiinteistössä hyvät pysäköintitilat ja runsaasti asiakaspaikkoja.
Palvelut
- Aulapalvelu
- Henkilöstöravintola
- Vuokrattavia neuvottelutiloja
- Auditorio
- Saunaosasto
- Kuntosali
- Henkilöstöravintola
- Vuokrattavia neuvottelutiloja
- Auditorio
- Saunaosasto
- Kuntosali
Kulkuyhteydet
- Metroasema 1,4 km
- Bussipysäkki 200 m
- Juna-asema 3 km
- Bussipysäkki 200 m
- Juna-asema 3 km
Vapautuu
Heti
Kerros
3
Energiatehokkuusluokka
Ei lain edellyttämää energiatodistusta
Näkyvällä paikalla
Hissi
Ota yhteyttä
REALIUM OY LKV
Tammasaarenkatu 1, 00180 Helsinki
Vaihde:
Näytä puhelinnumero
010 326 346
Tuomo Mäkelä
tuomo.makela@realium.fi
p.
Näytä puhelinnumero
044 050 1158
Joel Keto
joel.keto@realium.fi
p.
Näytä puhelinnumero
045 317 0330
KAIKKI TILAVAIHTOEHDOT KERRALLA!
SOITA - MEILAA JA TILAA NÄYTTÖ!
Ilmainen palvelu tilanhakijoille.
Kartoitamme parhaat tilavaihtoehdot.
Kaikki kohteet eivät ole netissä.
Pyydä lisätietoa
