Vuokrataan varastotilat - Vantaa
KOY Keimolan Talliosake 3 tila 15 , Keimolanmäentie 11, Keimola, 01700 Vantaa #10842932
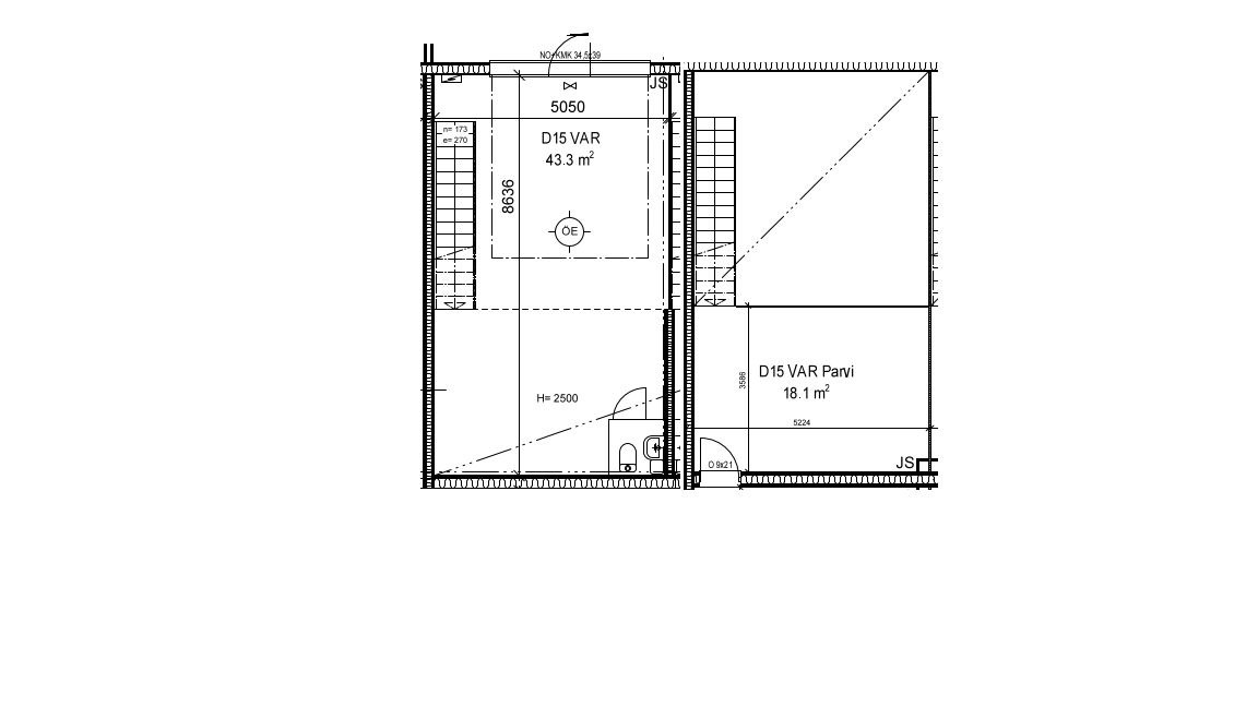
Keimolan Talliosakkeelta monikäyttöinen varasto, autotalli, harraste-, toimitila 15. Tilassa jo valmiina parvi sekä wc.
Osoite
Keimolanmäentie 11, 01700 Vantaa
Tilatyyppi
Varastotilaa
61 m2
Vuokra
858 € / kk
Kiinteistö
KOY Keimolan Talliosake 3
Sijainti
Keimolan Talliosake 3 sijaitsee loistavien liikenneyhteyksien varrella, aivan Hämeenlinnanväylän kupeessa. Talliosakkeen läheisyydessä on bussipysäkki ja juna-asemalle on matkaa vain muutama sata metriä, joten tänne pääset kätevästi myös julkisilla.
Muuta
Moottoroitu nosto-ovi erillisellä käyntiovella. Autolla sisään ajettava tila. Tilamitat: 8,63 (Pituus) 5,05 (Leveys) 5,00 (Korkeus). Ovimitat: 3,45 (Leveys) 3,90 (Korkeus).
Käyttötarkoitusesimerkkejä: - toimitila - varastotila - yrityksen työtarvikevarasto / kalustovarasto - kimppatalli - harrastetila - bändikämppä - autotalli - moottoripyörätalli - mönkijätalli. Tila ei sovellu autokorjaamoksi eikä autopesulaksi.
Tila on sähkölämmitteinen. Vuokralainen tekee tilaan oman sähkösopimuksen. Vesi- ja sähkömaksu kulutuksen mukaan. Vakuus kahden kuukauden vuokraa vastaava määrä. Haetaan pitkäaikaista vuokralaista. Yritysasiakkaille vuokraan lisätään alv 25,5%. Luottotiedot tarkistetaan.
Talliosake tuottaa joustavasti muunneltavia hallitiloja ympäri Suomen, joita yritykset ja yksityishenkilöt käyttävät tukikohtinaan erilaisille toiminnoille: yritys- ja liiketoimintaan, varastointiin sekä harrastuksiin.
Käyttötarkoitusesimerkkejä: - toimitila - varastotila - yrityksen työtarvikevarasto / kalustovarasto - kimppatalli - harrastetila - bändikämppä - autotalli - moottoripyörätalli - mönkijätalli. Tila ei sovellu autokorjaamoksi eikä autopesulaksi.
Tila on sähkölämmitteinen. Vuokralainen tekee tilaan oman sähkösopimuksen. Vesi- ja sähkömaksu kulutuksen mukaan. Vakuus kahden kuukauden vuokraa vastaava määrä. Haetaan pitkäaikaista vuokralaista. Yritysasiakkaille vuokraan lisätään alv 25,5%. Luottotiedot tarkistetaan.
Talliosake tuottaa joustavasti muunneltavia hallitiloja ympäri Suomen, joita yritykset ja yksityishenkilöt käyttävät tukikohtinaan erilaisille toiminnoille: yritys- ja liiketoimintaan, varastointiin sekä harrastuksiin.
Vapautuu
01.06.2026
Katutasossa
Näkyvällä paikalla
Ota yhteyttä
Talliosake Oy
Jani Sanevuori
Aluemyyntipäällikkö,
Etelä-Suomi, Vuokrauspalvelu, LVV
Näytä puhelinnumero
050 361 4814
Pyydä lisätietoa
