Vuokrataan toimistotilat - Helsinki
Pitkänsillanranta 3, Hakaniemi, 00530 Helsinki #10842873
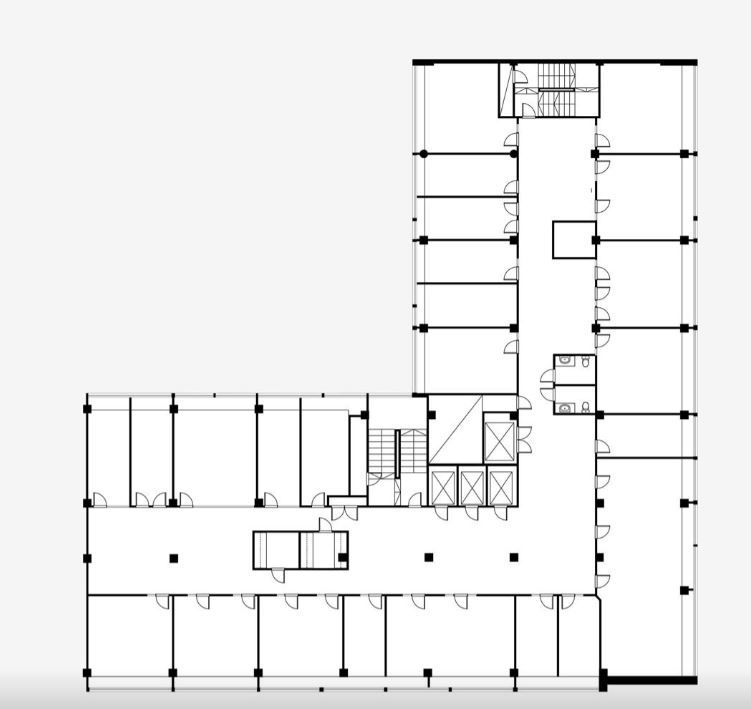
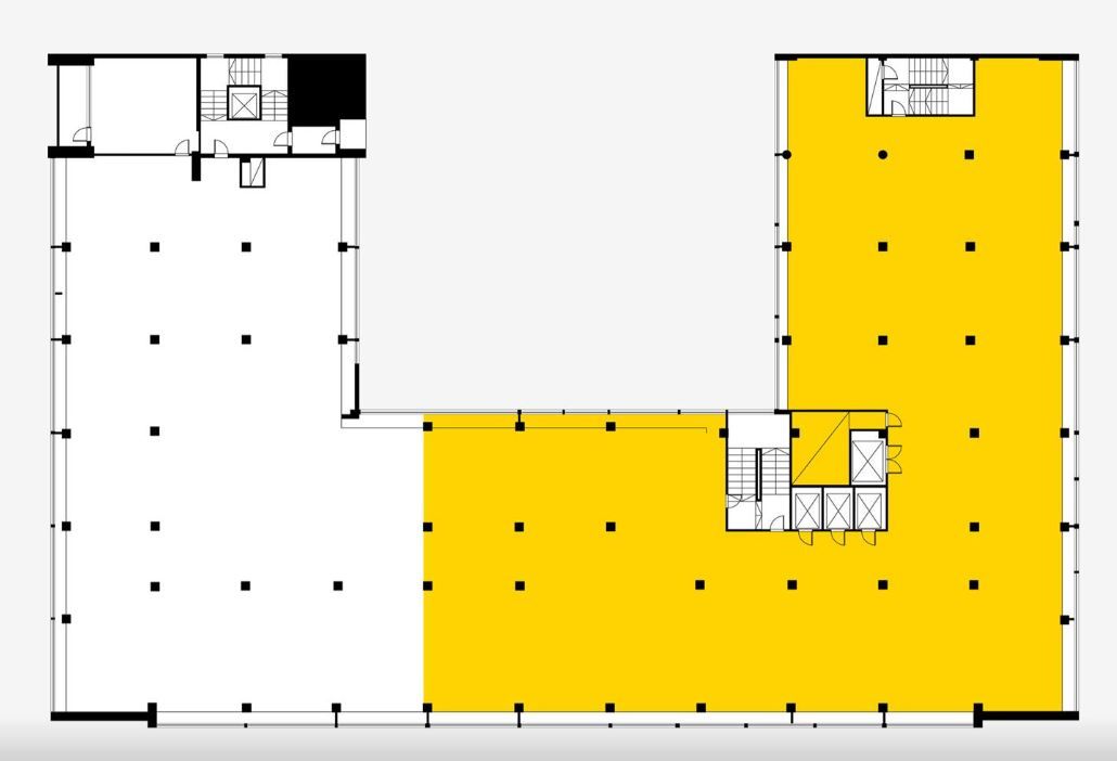
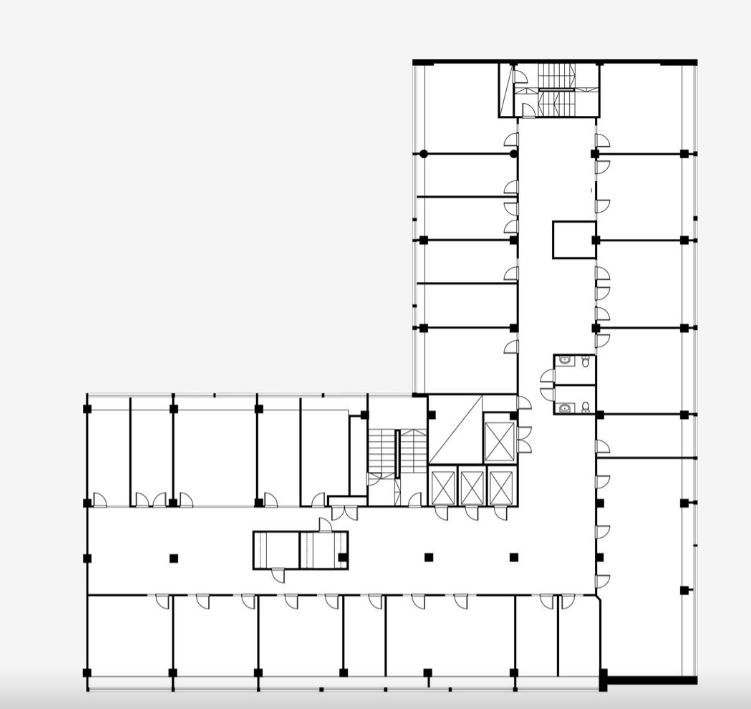
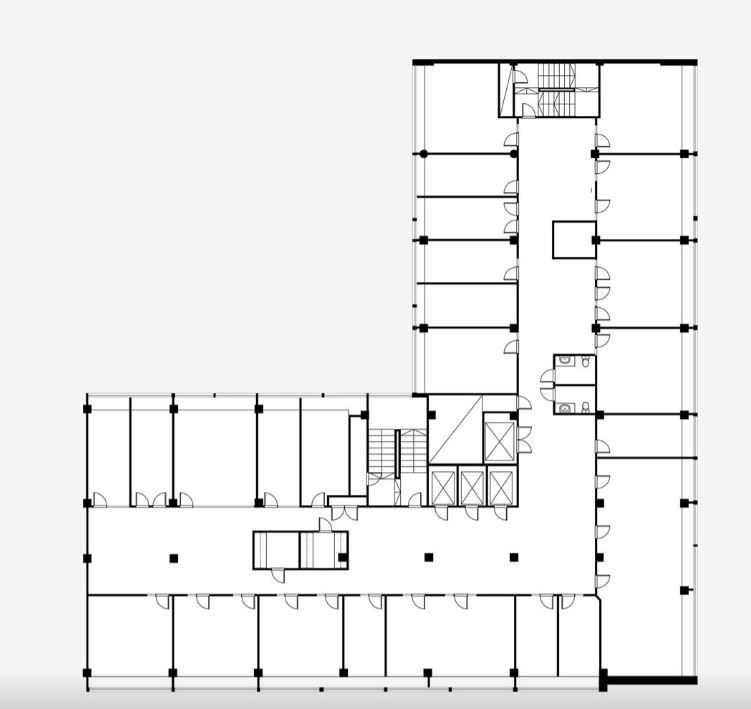
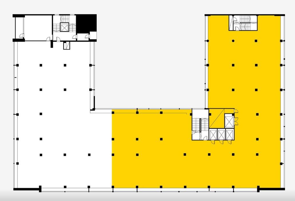
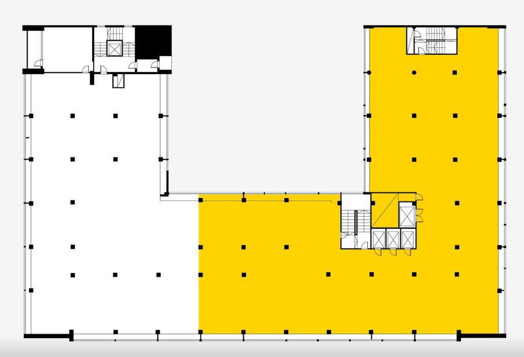
Vuokrataan 6. kerroksen toimisto, josta merinäkymät Kaisaniemen suuntaan. Tila remontoidaan käyttäjän tarpeiden mukaisesti. Ohessa kuvia kiinteistön tiloista.
Pitkänsillanranta on valinta sinulle, joka etsit ainutlaatuista sijaintia keskustan läheisyydestä. Monipuolisista toimistotiloja on uudistettu asiakkaiden tarpeita vastaaviksi. Toimitiloissa on muun muassa koneellinen ilmanvaihto ja jäähdytetty tuloilma.
Rakennuksesta löytyy kuntosali ja näköetäisyydeltä runsaasti ravintoloita ja muita monipuolisia palveluita päivittäistavarakaupasta terveydenhoitopalveluihin. Kohteesta on hyvät kulkuyhteydet julkisilla kulkuvälineillä. Lähellä on runsaasti palveluita ja Helsingin ydinkeskustaan on kävelymatka.
Lisätietoja numerosta 020 7290 710. Lisää kohteita osoitteessa www.premises.fi.
Energialuokka D.Kerros: 6
CRE PREMISES
Puh. Näytä puhelinnumero 020 7290 710
Vantaankoskentie 14
01670 VANTAA
