Vuokrataan toimistotilat - Helsinki
Pitkänsillanranta 3, Hakaniemi, 00530 Helsinki #10842872
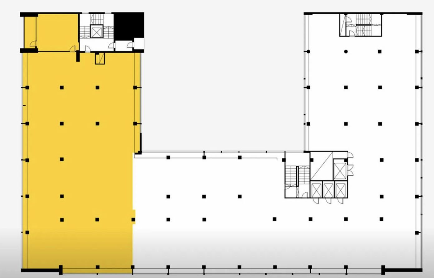
Vuokrataan 5. kerroksen toimistotila merellisillä näkymillä, upealta sijainnilta Hakaniemestä. Toimisto- ja neuvotteluhuoneita.
Pitkänsillanranta on valinta sinulle, joka etsit ainutlaatuista sijaintia keskustan läheisyydestä. Monipuolisista toimistotiloja on uudistettu asiakkaiden tarpeita vastaaviksi. Toimitiloissa on muun muassa koneellinen ilmanvaihto ja jäähdytetty tuloilma.
Rakennuksesta löytyy kuntosali ja näköetäisyydeltä runsaasti ravintoloita ja muita monipuolisia palveluita päivittäistavarakaupasta terveydenhoitopalveluihin. Kohteesta on hyvät kulkuyhteydet julkisilla kulkuvälineillä. Lähellä on runsaasti palveluita ja Helsingin ydinkeskustaan on kävelymatka.
Tervetuloa nauttimaan meren läheisyydestä ja yritysten tarpeiden mukaan suunnitelluista toimitiloista Pitkänsillanrantaan!
Lisätietoja numerosta 020 7290 710. Lisää kohteita osoitteessa www.premises.fi.
Energialuokka D.Kerros: 5
CRE PREMISES
Puh. Näytä puhelinnumero 020 7290 710
Vantaankoskentie 14
01670 VANTAA
