Vuokrataan toimistotilat - Helsinki
Lautatarhankatu 6, Kalasatama, 00580 Helsinki #10842828
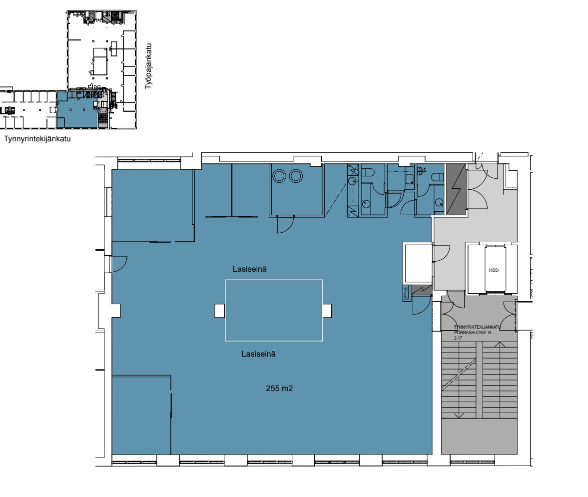
Vuokrataan loft-henkinen korkea toimistotila. Tilassa on avotilaa ja muutamia erikokoisia huoneita, sekä keittiö ja wc-tilat.
Lindström Talo on upeasti saneerattu punatiilinen teollisuuskiinteistö Kalasatamassa, jonka suuret ikkunat sekä avarat ja valoisat tilat luovat ainutlaatuisen tunnelman. Talossa on monipuoliset palvelut vuokralaisille kuten aulapalvelu, lounasravintola ja erikseen vuokrattavia erikokoisia tyylikkäitä neuvottelutiloja, sekä auditorio. Talossa on oma pysäköintihalli ja pyöräparkki.
Hyvä sijainti Kalasataman kehittyvällä alueella, metro ja REDI ovat kävelymatkan päässä.
Lisätietoja soita 020 730 4530 tai info@repoint.fi. Palvelumme on tilanhakijalle ilmainen.
Repoint Toimitilat Oy
Itälahdenkatu 22 B, 00210 Helsinki
Näytä puhelinnumero
020 730 4530
Lisätietoja soita Näytä puhelinnumero 020 730 4530 tai info@repoint.fi
https://repoint.fi/