Vuokrataan toimistotilat - Oulu
Kempeleentie 7 A 20, Limingantulli, 90400 Oulu #10842814
Osoite
Kempeleentie 7 A 20, 90400 Oulu
Tilatyyppi
Toimistotilaa
372 m2
Vuokra
3124,80 €/kk
Vuokraan sisältyy vesi, lämpö
Muuta
Limingantullista vuokrattavana jäähdytettyä toisen kerroksen toimistotilaa!
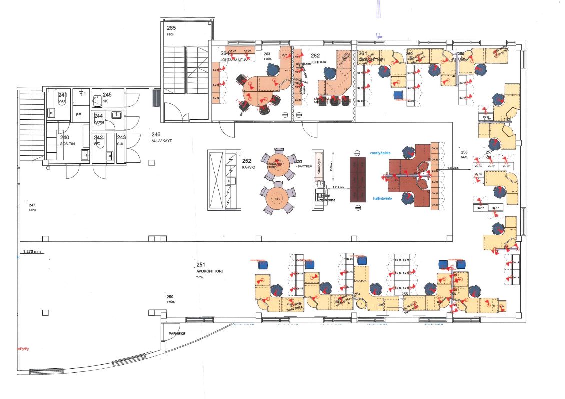
Tila on pääosin avotoimistoa. Tilassa on isompi neukkari, ruokailutila sekä yksi erillinen toimistohuone. Lisäksi on sosiaalitilat, suihku ja 3 wc:tä. Pintoja ja mm. keittiökalusteet on uusittu ajan saatossa. Tilassa on koneellinen ilmanvaihto ja jäähdytys. Autopaikkoja on saatavilla, lisäksi pysäköintipaikkoja mm. kadun varressa.
Vuokra toimistotilalle on 8,40€/m2 +alv sisältäen lämmityksen. Sähköstä ja vedestä maksetaan kulutuksen mukaan. Tila on vapautettavissa pian uuden vuokralaisen käyttöön.
Ole yhteydessä ja järjestetään esittely!
Eikö tämä ole sopiva? Kysy muita vaihtoehtojamme!
Tila on pääosin avotoimistoa. Tilassa on isompi neukkari, ruokailutila sekä yksi erillinen toimistohuone. Lisäksi on sosiaalitilat, suihku ja 3 wc:tä. Pintoja ja mm. keittiökalusteet on uusittu ajan saatossa. Tilassa on koneellinen ilmanvaihto ja jäähdytys. Autopaikkoja on saatavilla, lisäksi pysäköintipaikkoja mm. kadun varressa.
Vuokra toimistotilalle on 8,40€/m2 +alv sisältäen lämmityksen. Sähköstä ja vedestä maksetaan kulutuksen mukaan. Tila on vapautettavissa pian uuden vuokralaisen käyttöön.
Ole yhteydessä ja järjestetään esittely!
Eikö tämä ole sopiva? Kysy muita vaihtoehtojamme!
Vapautuu
01.12.2025
Rakennusvuosi
1992
Kerros
2
Ota yhteyttä
Kiinteistö-Tahkola Oy
Lumijoentie 1, 90400 Oulu
Näytä puhelinnumero
0207 480 250
Joni Romppainen
Näytä puhelinnumero
0405400672
Pyydä lisätietoa
