Vuokrataan toimistotilat - Helsinki
Mäkelänkatu 87, Käpylä, 00610 Helsinki #10842792
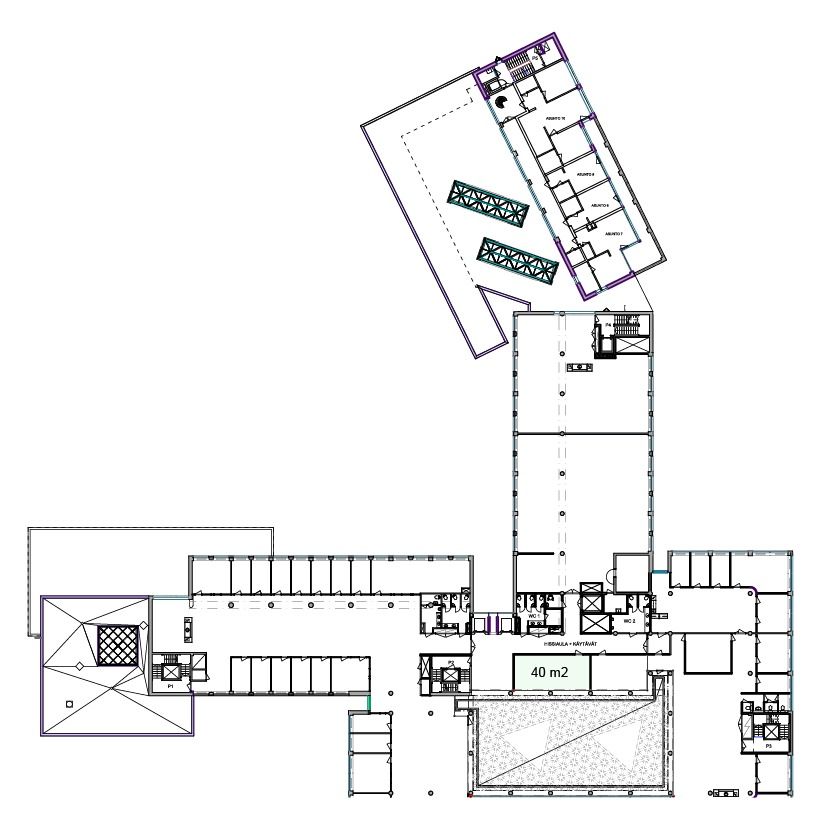
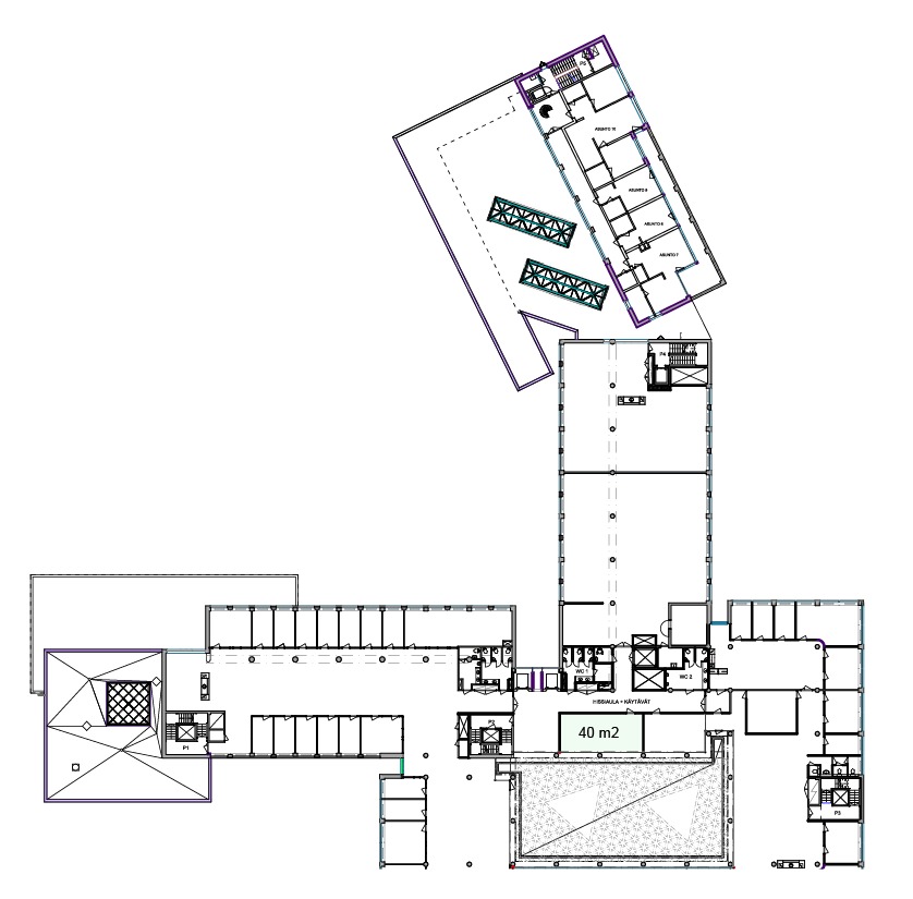
Kolmannen kerroksen 40 m² toimisto entisessä Amerin pääkonttorissa, Helsingin Käpylässä.
Osoite
Mäkelänkatu 87, 00610 Helsinki
Tilatyyppi
Toimistotilaa
40 m2
Pohjapiirros
Kiinteistö
Valoisa toimistotila omia huoneita arvostavalle. Näkymät Koskelantien suuntaan.
Käpylä 87 on kaikkien ohikulkevien tuntema rakennus ja alueen maamerkki. Amer Sportsin rakennuttama klassikkokiinteistö asuttaa nykyisin monenlaisia yrityksiä ja tarjoaa hyvät päivittäispalvelut ruokakaupan, lounasravintolan ja kuntosalin muodossa. Soveltuu erinomaisesti yrityksille, jotka eivät koe business park -ympäristöä lukuisine lisämaksuineen omakseen, vaan järjestävät toivomansa lisäpalvelut itse haluamallaan tavalla.
Parkkitilaa on kahdessa kerroksessa kiinteistön alla sijaitsevassa hallissa. K-market, lounasravintola ja kuntosali Fitness 24/7 sijaitsevat kiinteistössä.
Ilmoituksen sisäkuvat ovat yleiskuvia kiinteistön eri tiloista.
Käpylä 87 on kaikkien ohikulkevien tuntema rakennus ja alueen maamerkki. Amer Sportsin rakennuttama klassikkokiinteistö asuttaa nykyisin monenlaisia yrityksiä ja tarjoaa hyvät päivittäispalvelut ruokakaupan, lounasravintolan ja kuntosalin muodossa. Soveltuu erinomaisesti yrityksille, jotka eivät koe business park -ympäristöä lukuisine lisämaksuineen omakseen, vaan järjestävät toivomansa lisäpalvelut itse haluamallaan tavalla.
Parkkitilaa on kahdessa kerroksessa kiinteistön alla sijaitsevassa hallissa. K-market, lounasravintola ja kuntosali Fitness 24/7 sijaitsevat kiinteistössä.
Ilmoituksen sisäkuvat ovat yleiskuvia kiinteistön eri tiloista.
Vapautuu
Heti
Kerros
3
Energiatehokkuusluokka
Ei lain edellyttämää energiatodistusta
Näkyvällä paikalla
Hissi
Ota yhteyttä
ScanReal Oy LKV
Opus Business Park
Hitsaajankatu 24
00810 Helsinki
info@scanreal.fi
Puh:
Näytä puhelinnumero
020 730 8830
Sopivat toimitilat yhdellä otolla!
Kartoitamme toimitilatarpeesi ja etsimme yrityksellesi parhaiten sopivat vapaat toimitilat. Koska vuokranantajat maksavat palvelumme, on tämä yrityksellesi veloituksetonta.
OTA YHTEYTTÄ - SOVI NÄYTTÖ!
Kaikki kohteemme eivät ole netissä, kerro tilatarpeesi niin kartoitamme vaihtoehdot.
Palvelumme on tilanhakijalle ilmainen
Pyydä lisätietoa
