Vuokrataan toimistotilat, liiketilat, näyttelytilat, tuotantotilat, varastotilat, työtilat, autotalli/-hallitilat, muut tilat - Oulu
Höyläämötie 6, Oulu, 90820 Oulu #10842710
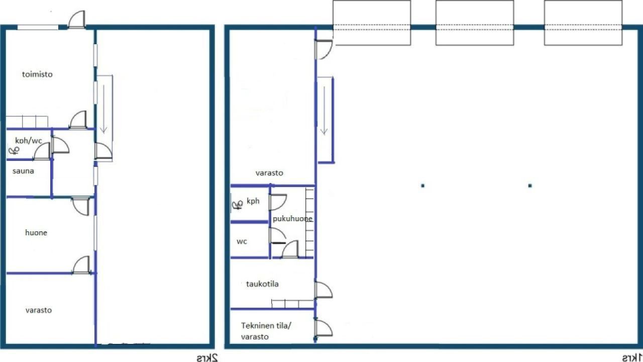
Halli 100-300 m² + toimisto 9x5m,sosiaalitilat.
Kerroksia rakennuksessa on 2.
Lämmitysmuodot ovat sähkölämmitys, patteri, lattialämmitys.
Yleisettilat: tekninen tila.
jaettavissa leveisiin loosseihin. Öljynerotuskaivoja 6 kpl, 3 kpl 4x5m nosto-ovea. Hallitila lämpenee
sähköisellä lattialämmityksellä. Alhaalta löytyy lisäksi kahvihuone, pukuhuone, suihku, wc, varasto sekä tekninen tila. Yläkerrastatoimisto+keittiö, eteisaula, kylpyhuone/wc, sauna, huone ja varasto. Toimistosta on käynti parvekkeelle. Yläkerran tilat ja osa alakerran tiloista lämpeävät pattereilla. Asfaltoitu piha kiertää hallia. Hintoihin lisätään alv 25,5%.
Vuokrasopimus alkaa määräaikaisena 12 kk ja jatkuu sen jälkeen toistaiseksi voimassa olevana, jonka jälkeen 3 kk irtisanomisaika.
Tila on heti vapaa uudelle vuokralaiselle.
Habita Finland Oy
Kempeleentie 7 c 9 , 90400 Oulu
Näytä puhelinnumero
010 585 5910
Aino Petäjäsoja
Näytä puhelinnumero
+358 50 4200325
## Kiinteistönvälitys Oulu
Habita tarjoaa luotettavaa ja asiantuntevaa kiinteistönvälityspalvelua Oulussa ja sen ympäristössä. Yhdistämme vahvan paikallistuntemuksen koko Suomen kattavaan ammattitaitoon ja verkostomme ulottuu myös kansainvälisille markkinoille.
## Asunnon myynti ja osto
Kun annat asuntosi myyntiin Habitalle, saat rinnallesi henkilökohtaisen välittäjän, joka huolehtii prosessista alusta loppuun ja pitää sinut ajan tasalla jokaisessa vaiheessa.
Myytävä kohteesi julkaistaan Habitan kansainvälisessä myyntiportaalissa, jossa tuhannet potentiaaliset ostajat etsivät uutta kotia.
Asunnon ostajille tarjoamme vahtipalvelun, ilmoitamme heti, kun kriteereihisi sopiva kohde tulee myyntiin. Järjestämme sekä yleisiä että yksityisiä asuntonäyttöjä toiveidesi mukaan.
## Asuntoarvio Oulu
Tarjoamme veloituksetta suullisen asuntoarvion sekä räätälöidyn myyntisuunnitelman, jonka avulla varmistamme onnistuneen kaupan. Välitämme ja vuokraamme asuntoja, kiinteistöjä sekä toimitiloja, aina asiakaslähtöisesti ja luotettavasti.
## Suomen suurin yksityinen kiinteistönvälitystoimisto
Olemme toimineet alalla vuodesta 1989 ja kasvaneet Suomen suurimmaksi yksityiseksi kiinteistönvälitysliikkeeksi. Meiltä löydät monipuolisesti kohteita – vakituisista asunnoista loma-asuntoihin sekä kotimaassa että ulkomailla.
Toimistomme sijaitsee Oulun Limingantullissa. Tervetuloa asioimaan kanssamme ja hoitamaan asuntoasiasi kuntoon – yksi yhteyshenkilö, koko Habitan myyntivoima.
