Vuokrataan varastotilat - Oulu
Konetie 33A, Ruskonselkä, 90620 Oulu #10842707
Monipuoliset toimitilat Oulusta
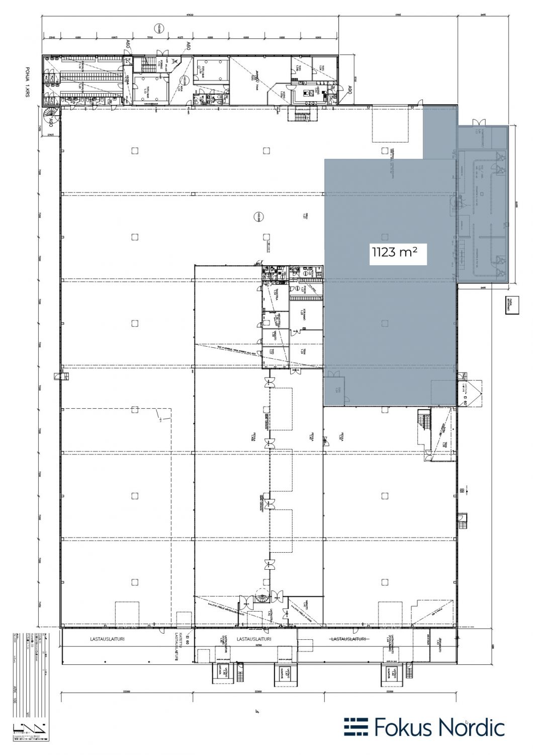
Tarjoamme vuokralle toimitilat Oulun Ruskosta osoitteesta Konetie 33A. Kiinteistöstä on vapautumassa 1.4.2026, 1123 m²:n varastotilakokonaisuus lastauslaiturilla (l...
Osoite
Konetie 33A, 90620 Oulu
Tilatyyppi
Varastotilaa
1123 m2
Kiinteistö
Konetie 33a sijaitsee Ruskon teollisuusalueella noin yhdeksän kilometriä Oulun keskustasta koilliseen. Liikenteellisesti kohteen sijainti on erinomainen läheisen moottoritien ansiosta.
Hallitilan korkeus on 9 m, toimisto-osan noin 3,0 m. Hallitilan lattiankantavuus on n. 5 000 kg (pistekuorma).
Hallitilan korkeus on 9 m, toimisto-osan noin 3,0 m. Hallitilan lattiankantavuus on n. 5 000 kg (pistekuorma).
Sijainti
Ruskon pääväylältä on suora yhteys nelikaistaiselle Valtatie 20:lle, Kuusamon ja koko Koillismaan sekä Oulun väliselle moottoritielle. Oulun keskustaan on matkaa 8,5 kilometriä.
Pysäköinti
Pihalla on runsaasti autopaikkoja.
Muuta
Monipuoliset toimitilat Oulusta
Tarjoamme vuokralle toimitilat Oulun Ruskosta osoitteesta Konetie 33A. Kiinteistöstä on vapautumassa 1.4.2026, 1123 m²:n varastotilakokonaisuus lastauslaiturilla (leveys 4 m x korkeus 4,2 m) ja sisäänajoyhteydellisellä nosto-ovella (leveys 5,9 m x korkeus 6,2 m). Tila on jaettavissa. Lisäksi vuokrataan ilmastoitua ja jäähdytettyä toimistotilaa kokoluokassa 37,5 m² ja 224 m² sekä 59 m²:n sosiaalitilat.
Hallitilan korkeus on 9 m, toimisto-osan noin 3 m. Hallitilan lattiankantavuus on n. 5 000 kg (pistekuorma).
Ole yhteydessä Kirsi Väisänen p. 050 549 5101, niin sovitaan tapaaminen tilojen esittelyä varten!
Katso lisätiedot
Tarjoamme vuokralle toimitilat Oulun Ruskosta osoitteesta Konetie 33A. Kiinteistöstä on vapautumassa 1.4.2026, 1123 m²:n varastotilakokonaisuus lastauslaiturilla (leveys 4 m x korkeus 4,2 m) ja sisäänajoyhteydellisellä nosto-ovella (leveys 5,9 m x korkeus 6,2 m). Tila on jaettavissa. Lisäksi vuokrataan ilmastoitua ja jäähdytettyä toimistotilaa kokoluokassa 37,5 m² ja 224 m² sekä 59 m²:n sosiaalitilat.
Hallitilan korkeus on 9 m, toimisto-osan noin 3 m. Hallitilan lattiankantavuus on n. 5 000 kg (pistekuorma).
Ole yhteydessä Kirsi Väisänen p. 050 549 5101, niin sovitaan tapaaminen tilojen esittelyä varten!
Katso lisätiedot
Vapautuu
Kysy
Rakennusvuosi
1999
Energiatehokkuusluokka
C
Ota yhteyttä
Fokus Nordic Finland Oy
Näytä puhelinnumero
+358 50 549 5101
Kirsi Väisänen
Näytä puhelinnumero
+358 50 549 5101
Näytä puhelinnumero
+358 50 549 5101
Pyydä lisätietoa
