Vuokrataan liiketilat - Jyväskylä
Matarankatu 6, Tourula, 40100 Jyväskylä #10842697
Valmis ravintolatila kaikilla kalusteilla
Osoite
Matarankatu 6, 40100 Jyväskylä
Tilatyyppi
Liiketilaa
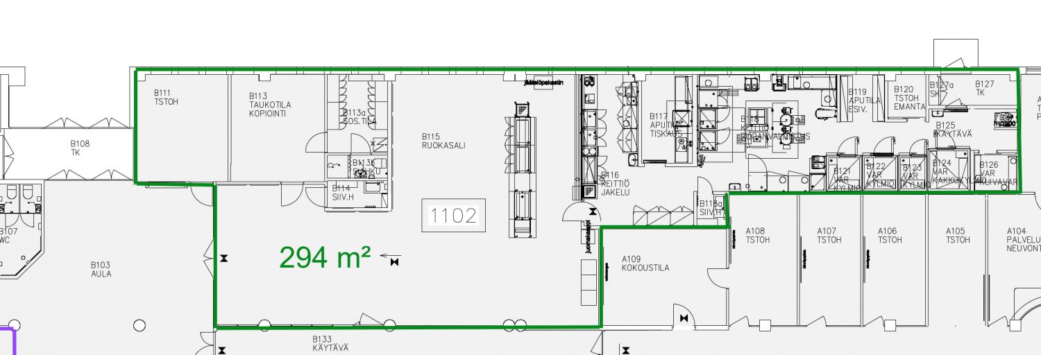
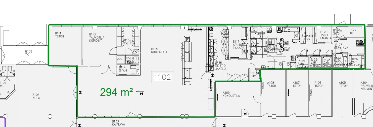
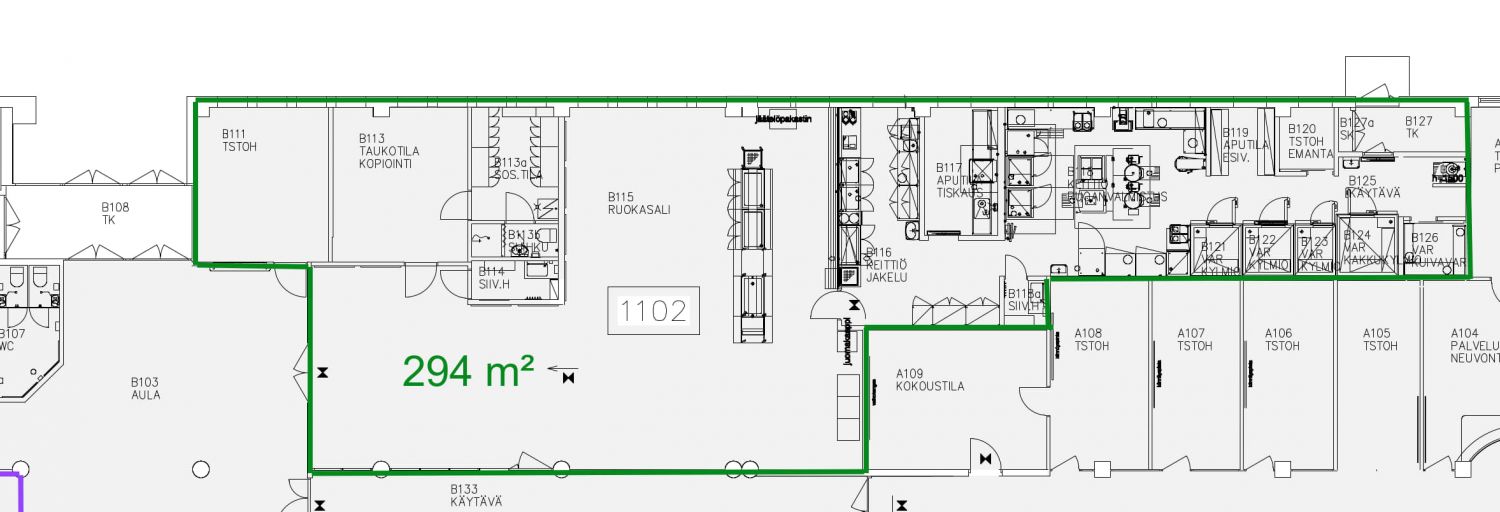
294 m2
Muuta
Heti vapaa ravintolatila vilkkaalta Tourulan alueelta. Kiinteistössä valmiiksi vuokralaisia ja lähialueella toimistokäyttäjiä useammassa rakennuksessa. Kehittyvä Kankaan alue myös kävelymatkan päässä.
Tila käsittää valmistuskeittiön laitteineen sekä ravintolasalin.
Ota yhteyttä näyttöä varten!
Tila käsittää valmistuskeittiön laitteineen sekä ravintolasalin.
Ota yhteyttä näyttöä varten!
Vapautuu
01.08.2025
Kerros
1
Ota yhteyttä
Infonia Oy
Kauppakatu 18 A, 40100 Jyväskylä
Näytä puhelinnumero
+358 407579731
Mikko Hirvi
Näytä puhelinnumero
+358 407579731
Pyydä lisätietoa
