Vuokrataan toimistotilat - Helsinki
Pohjoisesplanadi 35, Keskusta, 00100 Helsinki #10842690
Ylimmän kerroksen moderni toimistotila, Esplanadin arvokiinteistössä.
Osoite
Pohjoisesplanadi 35, 00100 Helsinki
Tilatyyppi
Toimistotilaa
224 m2
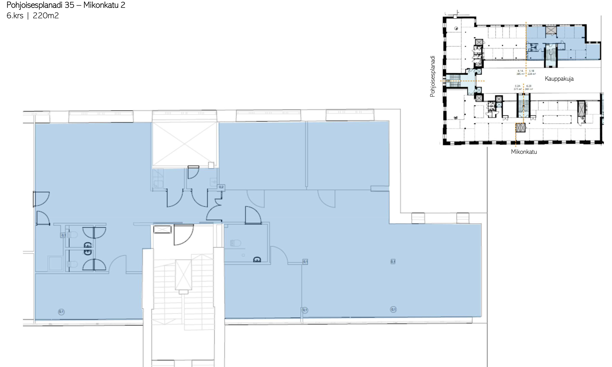
Pohjapiirros
Kiinteistö
Vuokrattavana 224 m² toimistotila Helsingin paraatipaikalta, arvokiinteistön ylimmästä kerroksesta. Tila on juuri valmistunut täydellisestä peruskorjauksesta ja tarjoaa modernit, edustavat ja valoisat työtilat, joissa yhdistyvät tyylikkyys ja toiminnallisuus.
Huoneisto on suunniteltu ajattoman skandinaaviseen tyyliin ja tarjoaa laadukkaat puitteet vaativallekin käyttäjälle:
• Avaraa avotilaa tehokkaaseen työskentelyyn
• Lasiseinillä rajattuja neuvottelu- ja tiimitiloja
• Tyylikäs avokeittiö uusilla kodinkoneilla
• Parkettilattiat ja palamattoa työalueilla
• Korkea, vaalea tila ja moderni valaistus
Huoneisto on suunniteltu ajattoman skandinaaviseen tyyliin ja tarjoaa laadukkaat puitteet vaativallekin käyttäjälle:
• Avaraa avotilaa tehokkaaseen työskentelyyn
• Lasiseinillä rajattuja neuvottelu- ja tiimitiloja
• Tyylikäs avokeittiö uusilla kodinkoneilla
• Parkettilattiat ja palamattoa työalueilla
• Korkea, vaalea tila ja moderni valaistus
Sijainti
Pohjoisesplanadi 35 on arvostettu ja historiallisesti merkittävä kiinteistö Helsingin keskustassa, osa Wreden pasaasin ainutlaatuista kokonaisuutta. Rakennus yhdistää klassisen arkkitehtuurin ja modernin toimistotekniikan saumattomasti.
Samassa rakennuksessa sijaitsee Louis Vuittonin lippulaivaliike, Stockmann on kulman takana ja sisäpihalla tunnettu Mummotunneli, joka tuo ympäristöön elämää ja palveluita ympäri vuoden.
Samassa rakennuksessa sijaitsee Louis Vuittonin lippulaivaliike, Stockmann on kulman takana ja sisäpihalla tunnettu Mummotunneli, joka tuo ympäristöön elämää ja palveluita ympäri vuoden.
Pysäköinti
Lähin autoilijoita palveleva pysäköintihalli sijaitsee Kluuvissa, sisäänajo Kaisaniemestä tai Fabianinkadulta.
Palvelut
Kaikki keskusta-alueen monipuoliset palvelut ovat lähettyvillä.
Kulkuyhteydet
Kaikki julkisen liikenteen yhteydet ovat vain lyhyen kävelymatkan päässä.
Vapautuu
Heti
Energiatehokkuusluokka
Ei lain edellyttämää energiatodistusta
Katutasossa
Näkyvällä paikalla
Ota yhteyttä
Comreal Oy LKV
Joonas Nilsson
Näytä puhelinnumero
044 328 3425
Läkkisepänkuja 6, 00620 Helsinki
Comreal on valtakunnallinen, asiantunteva ja aktiivinen kiinteistöalan kumppani, joka palvelee sekä kiinteistönomistajia että toimitilojen käyttäjiä. Toimintamme ydin on yksinkertainen: tarjota erinomaista palvelua kaikille.
Pyydä lisätietoa
