Vuokrataan toimistotilat - Helsinki
Pohjoisesplanadi 35, Keskusta, 00100 Helsinki #10842688
Arvokas toimistotila Esplanadin sydämessä.
Osoite
Pohjoisesplanadi 35, 00100 Helsinki
Tilatyyppi
Toimistotilaa
67,5 m2
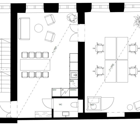
Pohjapiirros
Kiinteistö
Kolmannen kerroksen 67,5 m² toimistotila sijaitsee arvokiinteistössä Wreden pasaasin puolella, josta avautuvat ikkunat historialliselle kauppakäytävälle. Tila koostuu kahdesta valoisasta huoneesta, keittonurkkauksesta sekä wc:stä.
Pohjaratkaisu tarjoaa luonnollisen ja tehokkaan tilajaon:
• Suurempi huone toimii hyvin työtilana useammalle henkilölle
• Pienempi huone sopii neuvottelutilaksi tai edustavaksi työhuoneeksi
• Keittonurkkaus varustettuna jääkaapilla, mikrolla ja astianpesukoneella
Korkeat ikkunat ja huonekorkeus tuovat tilaan ilmavuutta ja valoa. Huoneisto peruskorjataan täydellisesti vanhaa arkkitehtuuria kunnioittaen, ja valmistuu vuoden vaihteessa.
Pohjaratkaisu tarjoaa luonnollisen ja tehokkaan tilajaon:
• Suurempi huone toimii hyvin työtilana useammalle henkilölle
• Pienempi huone sopii neuvottelutilaksi tai edustavaksi työhuoneeksi
• Keittonurkkaus varustettuna jääkaapilla, mikrolla ja astianpesukoneella
Korkeat ikkunat ja huonekorkeus tuovat tilaan ilmavuutta ja valoa. Huoneisto peruskorjataan täydellisesti vanhaa arkkitehtuuria kunnioittaen, ja valmistuu vuoden vaihteessa.
Sijainti
Kiinteistö sijaitsee näyttävällä paikalla Pohjoisesplanadilla, Helsingin ydinkeskustassa. Rakennus on osa historiallista Wreden pasaasin kokonaisuutta, jossa yhdistyvät perinteikäs arkkitehtuuri ja nykyaikainen toimistotekniikka.
Samassa rakennuksessa toimii Louis Vuittonin liike. Kulman takana sijaitsee Stockmann, ja rakennuksen sisäpihalla on ikoninen Mummotunneli, joka tuo alueelle elämää ja palveluita ympäri vuoden.
Samassa rakennuksessa toimii Louis Vuittonin liike. Kulman takana sijaitsee Stockmann, ja rakennuksen sisäpihalla on ikoninen Mummotunneli, joka tuo alueelle elämää ja palveluita ympäri vuoden.
Pysäköinti
Lähin autoilijoita palveleva pysäköintihalli sijaitsee Kluuvissa, sisäänajo Kaisaniemestä tai Fabianinkadulta.
Palvelut
Kaikki keskusta-alueen monipuoliset palvelut ovat lähettyvillä.
Kulkuyhteydet
Kaikki julkisen liikenteen yhteydet ovat vain lyhyen kävelymatkan päässä.
Vapautuu
01.01.2026
Energiatehokkuusluokka
Ei lain edellyttämää energiatodistusta
Katutasossa
Näkyvällä paikalla
Ota yhteyttä
Comreal Oy LKV
Joonas Nilsson
Näytä puhelinnumero
044 328 3425
Läkkisepänkuja 6, 00620 Helsinki
Comreal on valtakunnallinen, asiantunteva ja aktiivinen kiinteistöalan kumppani, joka palvelee sekä kiinteistönomistajia että toimitilojen käyttäjiä. Toimintamme ydin on yksinkertainen: tarjota erinomaista palvelua kaikille.
Pyydä lisätietoa
