Videoesittely
Vuokrataan toimistotilat - Helsinki
Pohjoisesplanadi 37, Kluuvi, 00100 Helsinki #10842687
Edustava ja valoisa toimistotila Esplanadin arvokiinteistössä.
Osoite
Pohjoisesplanadi 37, 00100 Helsinki
Tilatyyppi
Toimistotilaa
76,5 m2
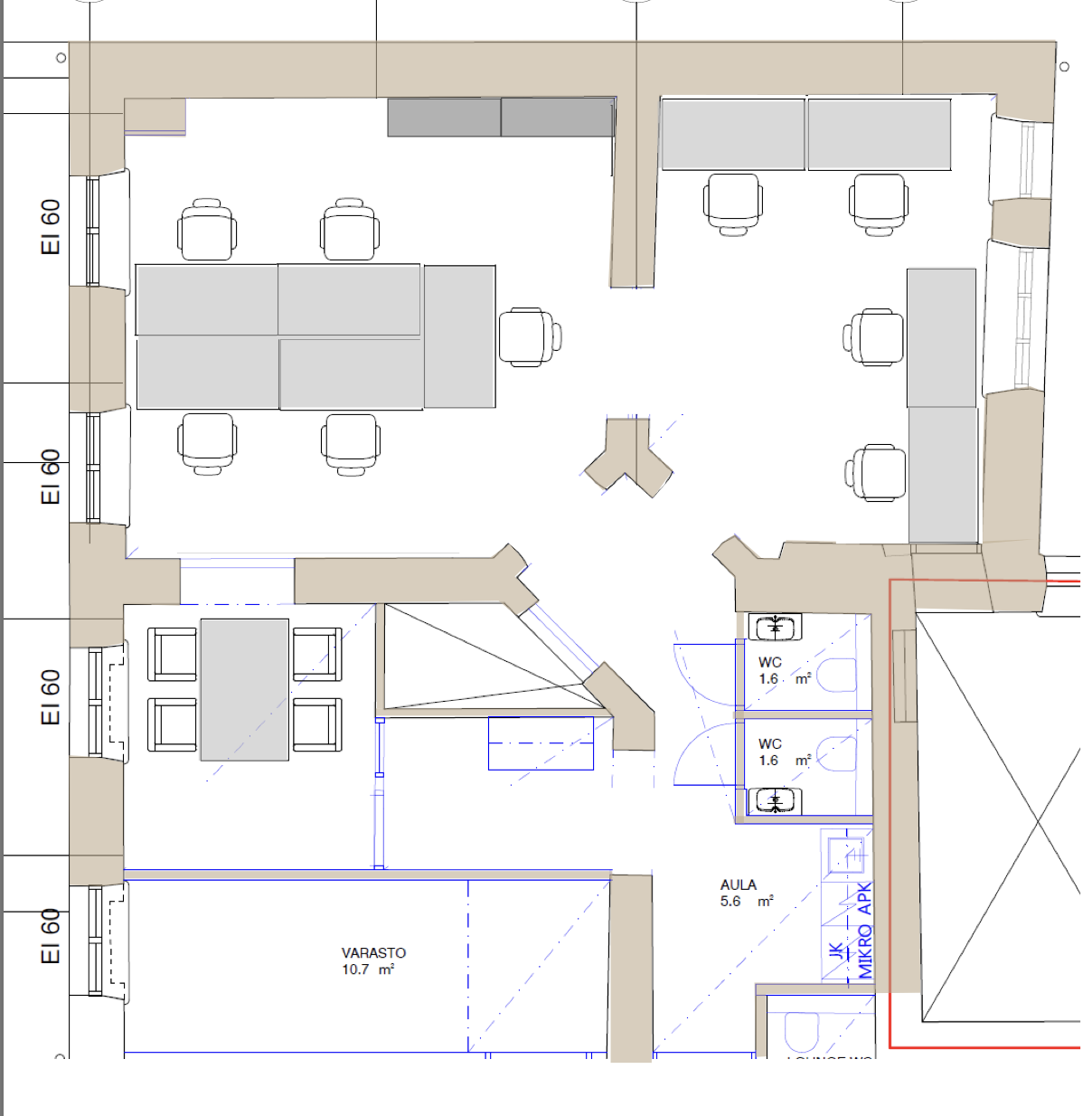
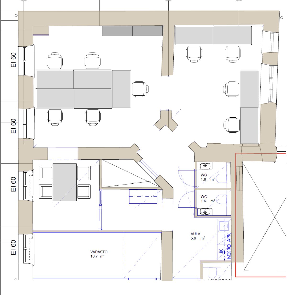
Pohjapiirros
Kiinteistö
Kiinteistön 3. kerroksen 76,5 m² toimistotila sijaitsee arvokiinteistön rauhallisella sisäpihan puolella. Tila koostuu avarasta ja valoisasta avotilasta, kahdesta wc:stä, aulasta ja keittonurkkauksesta. Pohjaratkaisu tarjoaa monipuoliset mahdollisuudet työpisteiden ja neuvottelutilan sijoitteluun.
Tila on erinomainen vaihtoehto yritykselle, joka arvostaa edustavuutta, toimivuutta ja keskeistä sijaintia Helsingin ytimessä.
Tila on erinomainen vaihtoehto yritykselle, joka arvostaa edustavuutta, toimivuutta ja keskeistä sijaintia Helsingin ytimessä.
Sijainti
Helsingin ydinkeskusta.
Ympäristö
Espalla sykkii elämä. Sijainti Helsingin ydinkeskustassa, liike-elämän, hallinnon ja kulttuurin ytimessä, tarjoaa yritykselle arvostetun osoitteen ja ainutlaatuisen miljöön. Vilkas Pohjoisesplanadi on tunnettu korkeatasoisista liike- ja toimistotiloistaan sekä erinomaisista palveluista.
Pysäköinti
Lähin autoilijoita palveleva pysäköintihalli sijaitsee Kluuvissa, sisäänajo Kaisaniemestä tai Fabianinkadulta.
Palvelut
Katutason liiketiloihin tulee kehityshankkeen myötä ravintolatoimijoita ja upea katettu sisäpiha palveluineen myös keskusta-alueen monipuoliset palvelut ovat vain kiven heiton päässä kohteesta.
Kulkuyhteydet
Julkisen liikenteen yhteydet ovat vain lyhyen kävelymatkan päässä.
Muuta
Talo on saneerattu nykyaikaisen talotekniikan vaatimustason täyttäväksi.
Vapautuu
1.1.2026
Energiatehokkuusluokka
Ei lain edellyttämää energiatodistusta
Näkyvällä paikalla
Ota yhteyttä
Comreal Oy LKV
Joonas Nilsson
Näytä puhelinnumero
044 328 3425
P.
Näytä puhelinnumero
020 744 1000
Läkkisepänkuja 6, 00620 Helsinki
Comreal Oy on kasvava ja osaava kiinteistöalan palveluntuottaja kiinteistöjen omistajille ja käyttäjille.
Kiinteistö on sijoittajalle hyvä sijoitus vain, jos siellä on tyytyväiset asiakkaat, eli vuokralaiset. Siksi laadukas asiakaspalvelu on toiminnan lähtökohta.
Pyydä lisätietoa
