Videoesittely
Vuokrataan toimistotilat - Helsinki
Pohjoisesplanadi 37, Kluuvi, 00100 Helsinki #10842671
Kompakti toimistotila keskustan arvokiinteistössä.
Osoite
Pohjoisesplanadi 37, 00100 Helsinki
Tilatyyppi
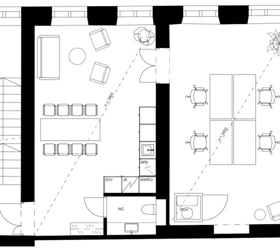
Toimistotilaa
67,5 m2
Pohjapiirros
Kiinteistö
Vuoden vaihteessa valmistuva toimistotila arvokiinteistön 3 kerroksessa. Korkeat ja valoisat huoneet. Huoneisto peruskorjataan täydellisesti ja vanhaa kiinteistöä kunnioittaen.
Kiinteistössä on avattu kesällä ravintolamaailma sisäpihalle.
Kiinteistössä on avattu kesällä ravintolamaailma sisäpihalle.
Sijainti
Helsingin ydinkeskusta.
Pysäköinti
Lähin autoilijoita palveleva pysäköintihalli sijaitsee Kluuvissa, sisäänajo Kaisaniemestä tai Fabianinkadulta.
Palvelut
Katutason liiketiloihin tulee kehityshankkeen myötä ravintolatoimijoita ja upea katettu sisäpiha palveluineen myös keskusta-alueen monipuoliset palvelut ovat vain kiven heiton päässä kohteesta.
Kulkuyhteydet
Julkisen liikenteen yhteydet ovat vain lyhyen kävelymatkan päässä.
Muuta
Talo on saneerattu nykyaikaisen talotekniikan vaatimustason täyttäväksi.
Vapautuu
1.1.2026
Energiatehokkuusluokka
Ei lain edellyttämää energiatodistusta
Näkyvällä paikalla
Ota yhteyttä
Comreal Oy LKV
Joonas Nilsson
Näytä puhelinnumero
044 328 3425
P.
Näytä puhelinnumero
020 744 1000
Läkkisepänkuja 6, 00620 Helsinki
Comreal Oy on kasvava ja osaava kiinteistöalan palveluntuottaja kiinteistöjen omistajille ja käyttäjille.
Kiinteistö on sijoittajalle hyvä sijoitus vain, jos siellä on tyytyväiset asiakkaat, eli vuokralaiset. Siksi laadukas asiakaspalvelu on toiminnan lähtökohta.
Pyydä lisätietoa
