Vuokrataan toimistotilat, liiketilat - Helsinki
Eteläranta 14, Keskusta, 00130 Helsinki #10842662
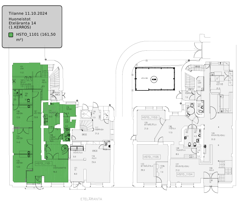
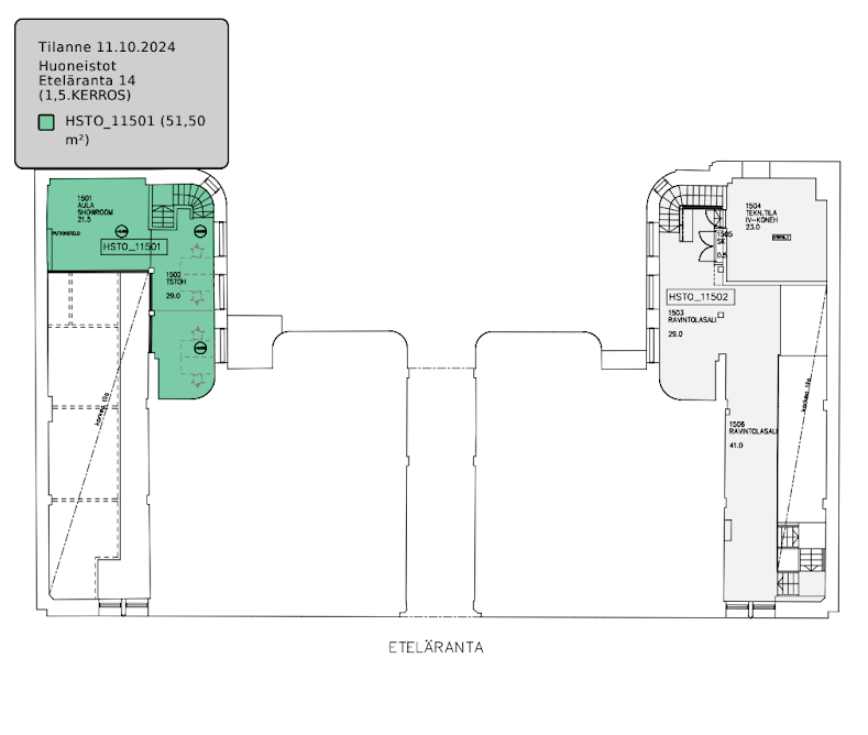
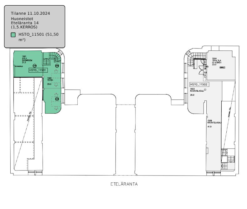
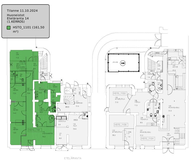
Läpitalon viehättävä ja persoonallinen toimistotila loistosijainnilla Vanhaa Kauppahallia vastapäätä.Aikaisemmin laadukkaana hoitolatilana toiminut toimitila usealla työhuoneella. Tila koostuu 161 m2 liiketilasta sekä 51,5 m2 toimistokäyttöön soveltuvasta parvesta. Ota yhteyttä ja sovi esittely, vuokrauspalvelumme on tilanhakijoille maksuton.
Osoite
Eteläranta 14, 00130 Helsinki
Tilatyyppi
Toimistotilaa
213 m2
Liiketilaa
213 m2
Yhteensä
213 m2
Pohjapiirros
Kiinteistö
Toimistotalo
Sijainti
Kauppatori - Kauppahalli
Ympäristö
Eteläsatama
Pysäköinti
Alueen pysäköintihallit.
Palvelut
Kaikki lähellä
Kulkuyhteydet
Ratikat
Vapautuu
Heti
Kerros
1-2
Energiatehokkuusluokka
C
Ympäristöluokitus
BREEAM In-use-Good
Katutasossa
Näkyvällä paikalla
Hissi
Ota yhteyttä
Senaatin Notariaatti Oy LKV
Lämmittäjänkatu 4 A
FIN-00880 Helsinki
Tel:
Näytä puhelinnumero
+358 9 7745 100
Pyydä lisätietoa
