Vuokrataan liiketilat - Pori
Valtakatu 12, Keskusta, 28100 Pori #10842650
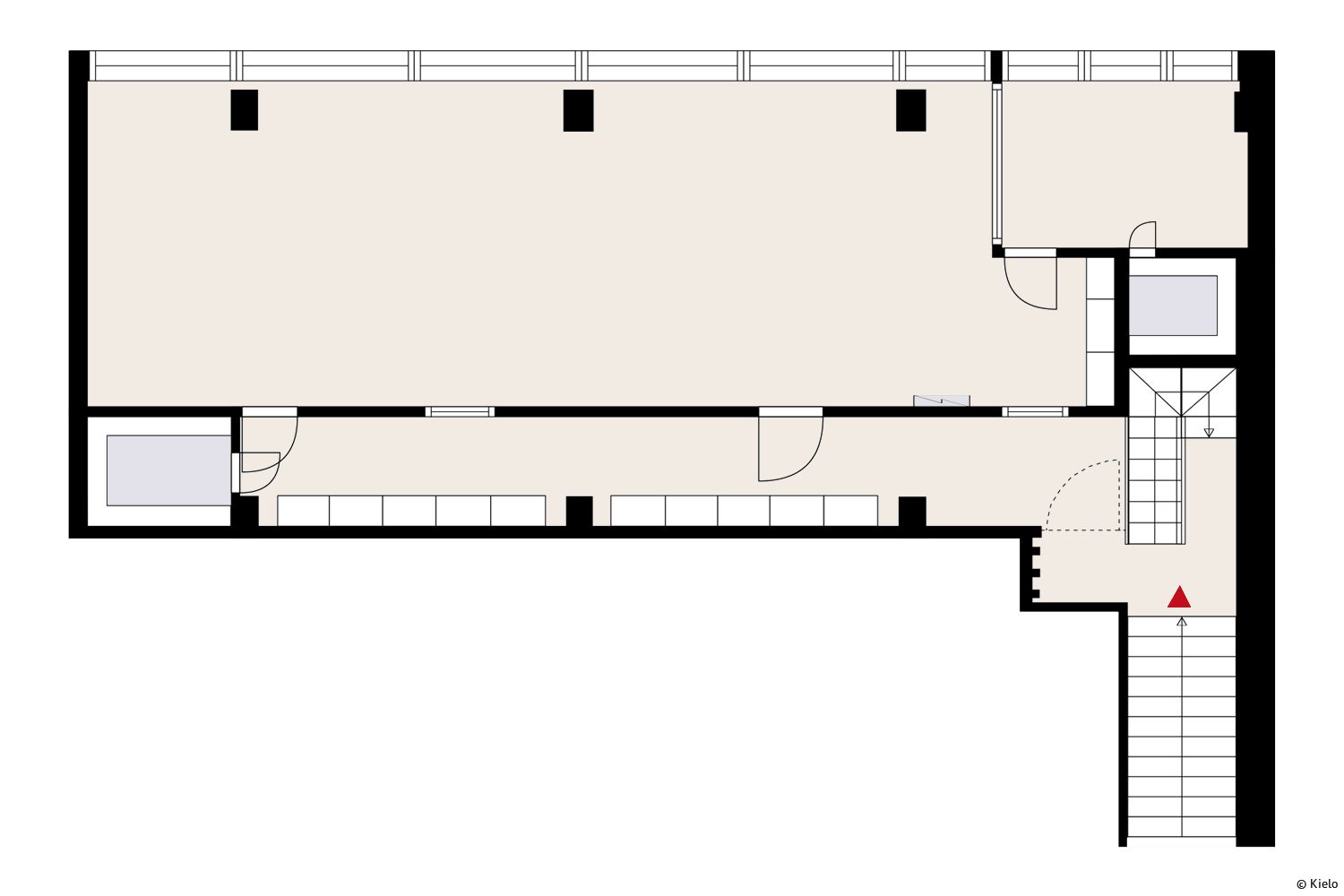
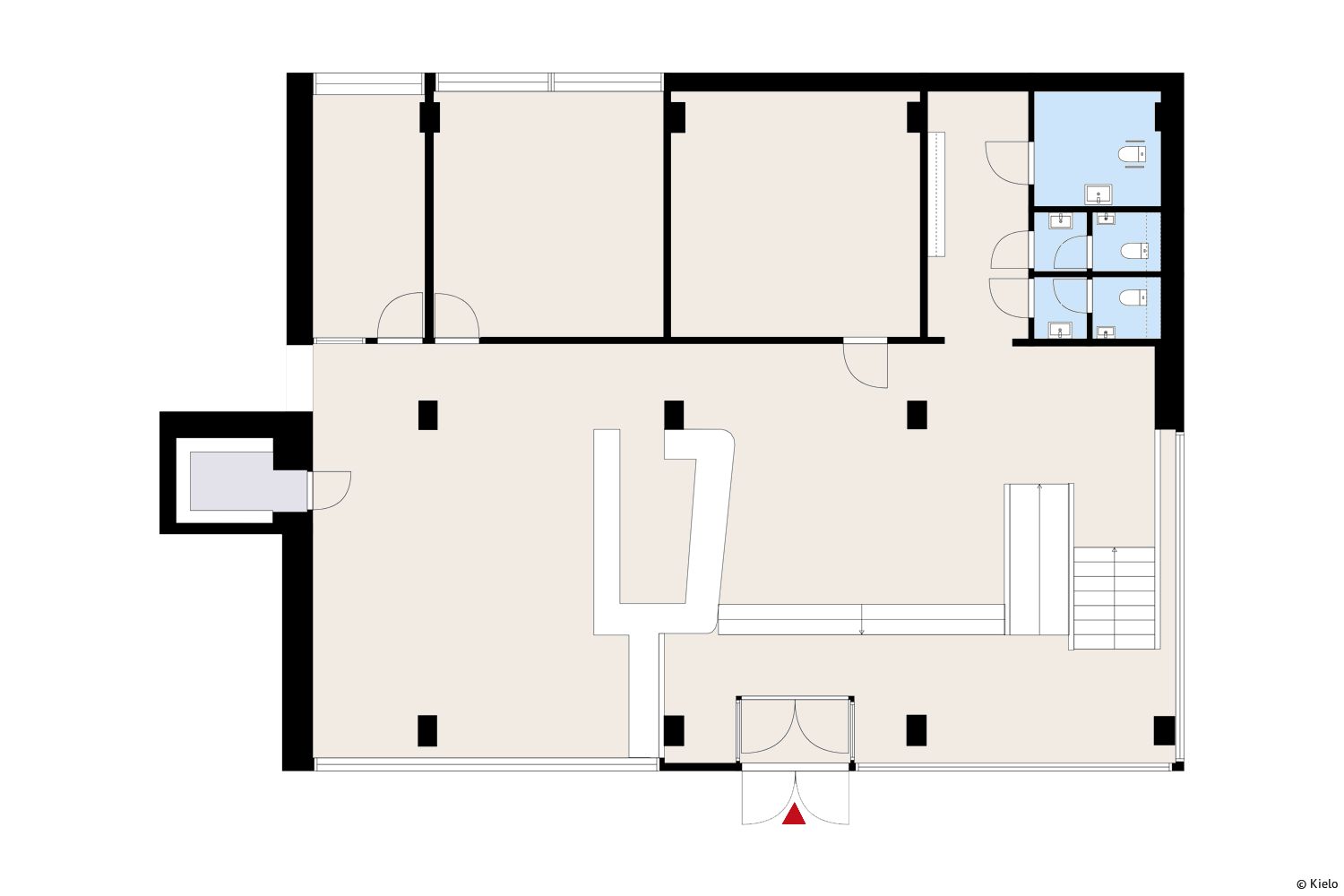
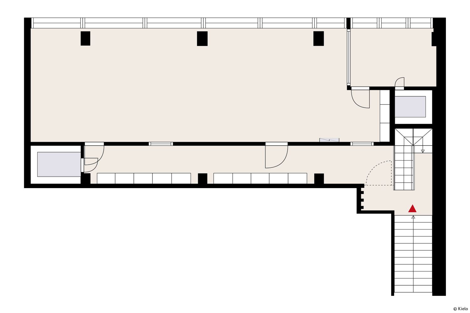
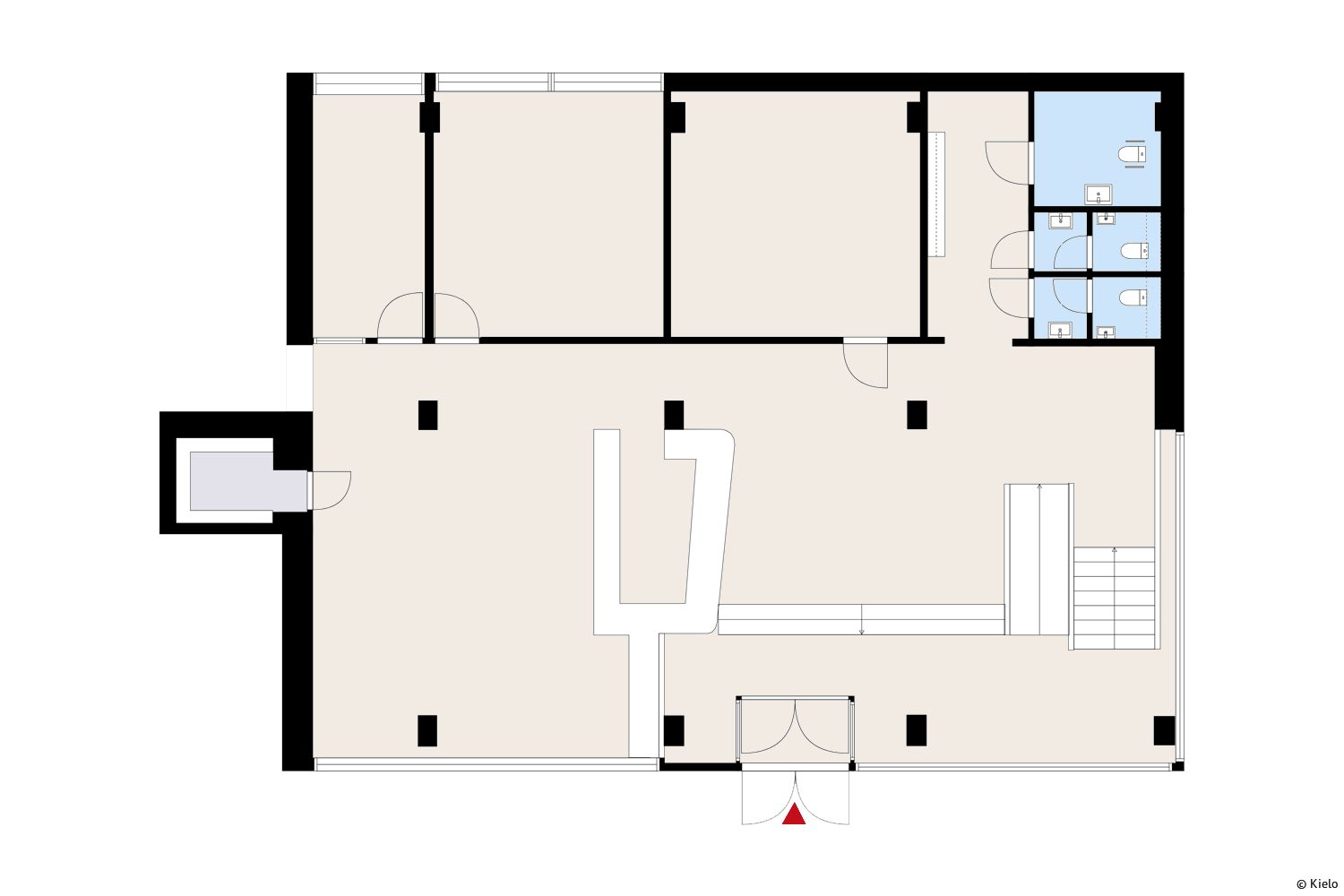
Vuokrataan tyylikäs ja ilmeeltään poikkeava liike-/toimistotila, joka mukautuu monenlaiseen toimintaan. Tila koostuu valoisasta katutason avotilasta, jossa lisäksi toimisto- ja neuvottelutila sekä uusittu keittiö. Toimitilan parvella lisää toimisto-/neuvottelutilaa. Kiinteistöllä hyvät pysäköintimahdollisuudet ja lähiliikenteen palvelut ovat noin 230 m päässä.
Osoite
Valtakatu 12, 28100 Pori
Tilatyyppi
Liiketilaa
366 m2
Kiinteistö
Satakansa
Muuta
Tilan ominaisuudet:
Vapautuu
Heti vapaa
Kerros
Katutaso
Energiatehokkuusluokka
C
Katutasossa
Ota yhteyttä
Kielo
Johanna Hovi
Näytä puhelinnumero
044 090 3841
Tarjoamme toimi-, kokous- ja saunatiloja niin isoille kuin pienillekin yrityksille!
https://kielotoimitilat.fi/Pyydä lisätietoa
