Vuokrataan toimistotilat, työtilat - Rovaniemi
Koskikatu 18-20, tilava toimistotila, Koskikatu 18-20, 96200 Rovaniemi #10842619
Vuokrataan tilava ja hyvässä kunnossa oleva toimistotila Rovaniemen ydinkeskustasta. Toimistossa on kolme eri kokoista toimistokäyttöön soveltuvaa huonetta, keittiö sekä siisti kylpyhuone wc:llä ja suihkulla. Ota yhteyttä ja kysy lisää!
Osoite
Koskikatu 18-20, 96200 Rovaniemi
Tilatyyppi
Toimistotilaa
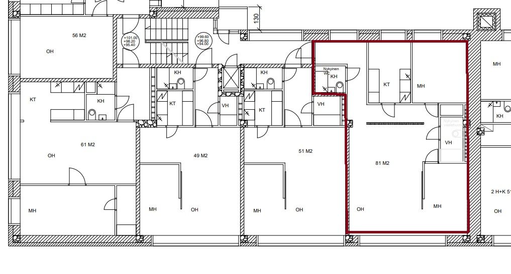
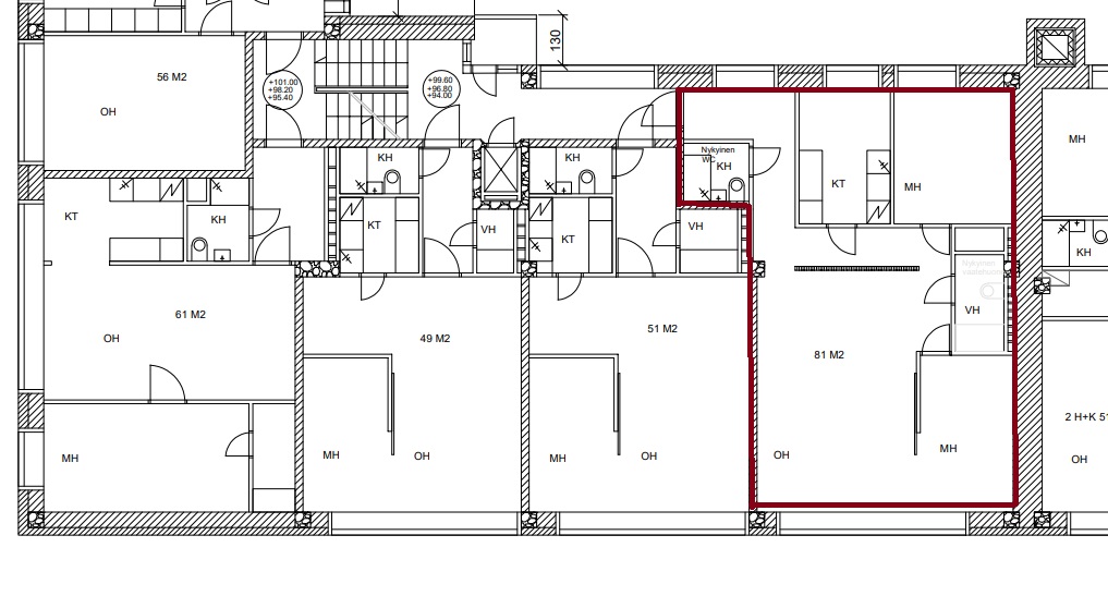
80 m2
Työtilaa
80 m2
Yhteensä
80 m2
Pohjapiirros
Sijainti
Sijaitsee Rovaniemen ydiskeskustassa
Pysäköinti
Autopaikat vuokrattavissa erikseen
Muuta
Tila soveltuu monipuolisesti erilaiseen liiketoimintaan, kuten toimistotyöhön useammalle henkilölle, kauneus-ja hyvinvointipalveluihin tai asiakastapaamisiin.
Vapautuu
Heti vapaa
Huoneiden lukumäärä
4
Ota yhteyttä
Rovaseudun Markkinakiinteistöt Oy
Puhelin: Näytä puhelinnumero 020 152 5090
Rovaseudun Markkinakiinteistöt Oy kehittää Rovaniemen kaupungin elinvoimaa tarjoamalla alueen yrityksille monipuolisen valikoiman toimi- ja tuotantotiloja. Toimitilavuokrauksen lisäksi vuokraamme myös tapahtuma-alueita. Lordin aukio ja kauppatori ovat kaupungin suosituimpia tapahtumapaikkoja.
https://www.rovaseudunmarkkinakiinteistot.fi/Pyydä lisätietoa
