Vuokrataan toimistotilat - Helsinki
Kivensilmänkuja 2, Myllypuro, 00920 Helsinki #10842610
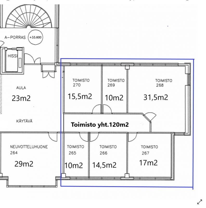
Vuokrataan erikokoisia 120 m2 toimisto-/liiketiloja. Yhteisessä käytössä, keittiö ja wc-tilat sekä neuvottelutila.
Hissiyhteys kerrokseen. Myllypuron metro-asemaa on vastapäätä, bussipysäkki 50-150m, vieresssä olevalla väylällä kulkee myös jokeribussi 560.
Kiinteistö sijaitsee Kehä I ja Itäväylän varrella.
Vieressä on Myllypuron kauppakeskus, josta löytyy lounaspaikkoja, ruokakauppa, apteekki, kampaamo sekä muut palvelut. Kauppakeskus Itis on yhden metropysäkin päässä.
Pihalla löytyy pysäköintitila.
Kysy lisää!
Comreal Oy LKV
Salla Saraniemi
Näytä puhelinnumero
040 138 1081
P.
Näytä puhelinnumero
020 744 1000
Läkkisepänkuja 6, 00620 Helsinki
Comreal Oy on kasvava ja osaava kiinteistöalan palveluntuottaja kiinteistöjen omistajille ja käyttäjille.
Kiinteistö on sijoittajalle hyvä sijoitus vain, jos siellä on tyytyväiset asiakkaat, eli vuokralaiset. Siksi laadukas asiakaspalvelu on toiminnan lähtökohta.
