Vuokrataan varastotilat - Helsinki
Atomitie 1, Pitäjänmäki, 00370 Helsinki #10842602
Varastotila loistosijainnilla Pitäjänmäen teollisuusalueella.
Osoite
Atomitie 1, 00370 Helsinki
Tilatyyppi
Varastotilaa
370 m2
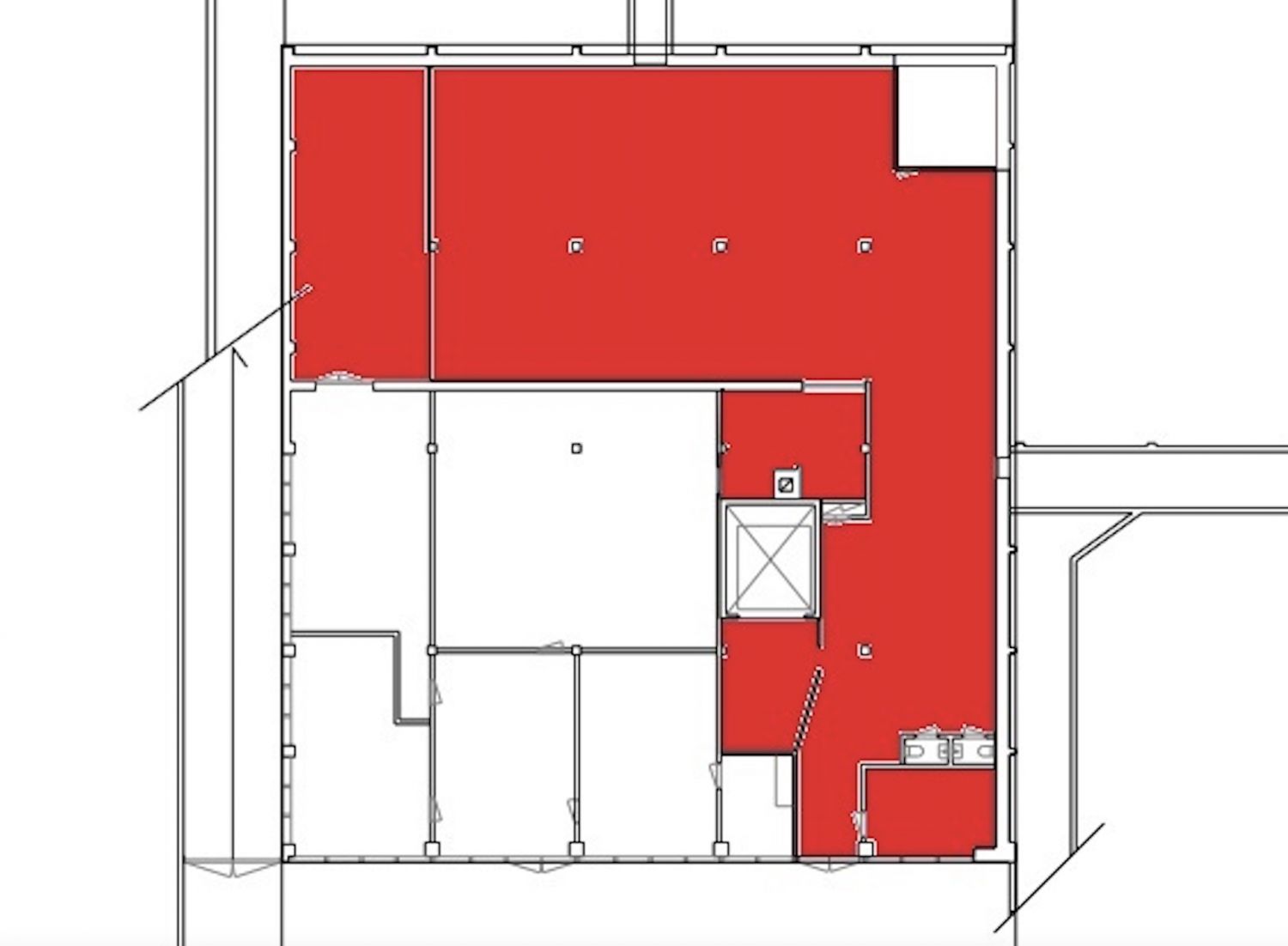
Pohjapiirros
Kiinteistö
370 m² varasto joka sijaitsee kiinteistön 1. kerroksessa. Tilassa on lastauslaituri ja luiska. Tilan korkeus noin 2,5m - 3m.
Atomitie 1 on toimisto- ja varastokiinteistö Helsingin Pitäjänmäellä. Kiinteistö on hyvien liikenneyhteyksien äärellä. Monet bussilinjat kulkevat kiinteistön vierestä. Kauppakeskus Kaari sekä Sello ovat molemmat n. 5 min ajomatkan päässä. Pitäjänmäen juna-asemalle 600 metrin matka. Kiinteistön pihalla pysäköintipaikkoja.
Atomitie 1 on toimisto- ja varastokiinteistö Helsingin Pitäjänmäellä. Kiinteistö on hyvien liikenneyhteyksien äärellä. Monet bussilinjat kulkevat kiinteistön vierestä. Kauppakeskus Kaari sekä Sello ovat molemmat n. 5 min ajomatkan päässä. Pitäjänmäen juna-asemalle 600 metrin matka. Kiinteistön pihalla pysäköintipaikkoja.
Vapautuu
Heti
Rakennusvuosi
1963
Kerros
1 / 4
Energiatehokkuusluokka
D2007
Hissi
Lastauslaituri
Ota yhteyttä
ScanReal Oy LKV
Opus Business Park
Hitsaajankatu 24
00810 Helsinki
info@scanreal.fi
Puh:
Näytä puhelinnumero
020 730 8830
Sopivat toimitilat yhdellä otolla!
Kartoitamme toimitilatarpeesi ja etsimme yrityksellesi parhaiten sopivat vapaat toimitilat. Koska vuokranantajat maksavat palvelumme, on tämä yrityksellesi veloituksetonta.
OTA YHTEYTTÄ - SOVI NÄYTTÖ!
Kaikki kohteemme eivät ole netissä, kerro tilatarpeesi niin kartoitamme vaihtoehdot.
Palvelumme on tilanhakijalle ilmainen
Pyydä lisätietoa
