Vuokrataan toimistotilat - Helsinki
Hankasuontie 9, Konala, 00390 Helsinki #10842593
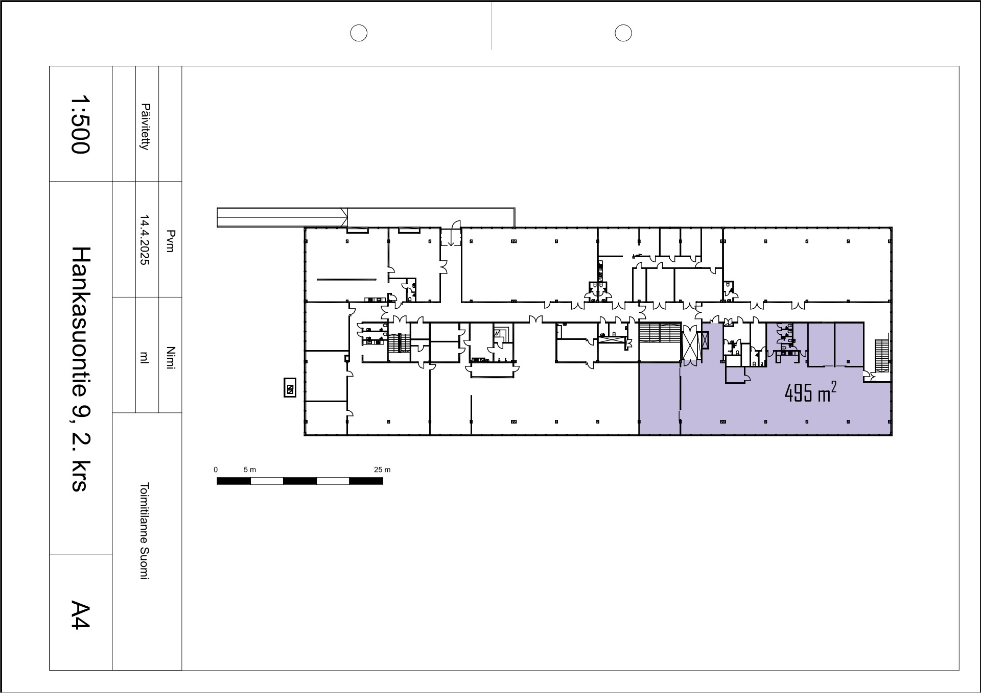
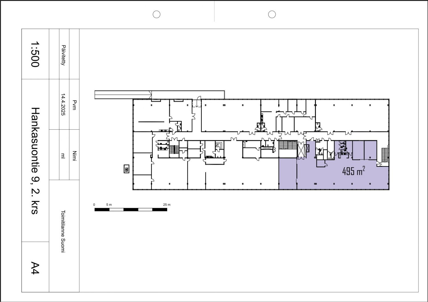
Siisti 495 m² toisen kerroksen toimitila Konalasta teollisuuskiinteistöstä.
Osoite
Hankasuontie 9, 00390 Helsinki
Tilatyyppi
Toimistotilaa
495 m2
Pohjapiirros
Kiinteistö
Toimitila, joka sopii erityisesti avokonttoriksi. Hyvät neuvotteluhuoneet. Toimitilassa on jäähdytys. Oma keittiö, wc:t ja pukuhuoneet. Osaa tilasta voi tarvittaessa käyttää varasto- tai tuotantotilana. Tilan korkeus on noin 3 m ja kattoikkunat tuovat lisää valoa.
Toiseen kerrokseen johtaa ajoramppi, lisäksi käytettävissä on kiinteistön tavarahissi. Tilaan pääsee myös suoraan tällä hissillä.
Kiinteistö sijaitsee Vihdintien tuntumassa vilkkaalla Hankasuontien teollisuus- ja yritysalueella. Rakennuksessa toimii tällä hetkellä yrityksiä mm. maahantuonnin, tukkukaupan, kokoonpanon ja B2B-toiminnan parista.
Toiseen kerrokseen johtaa ajoramppi, lisäksi käytettävissä on kiinteistön tavarahissi. Tilaan pääsee myös suoraan tällä hissillä.
Kiinteistö sijaitsee Vihdintien tuntumassa vilkkaalla Hankasuontien teollisuus- ja yritysalueella. Rakennuksessa toimii tällä hetkellä yrityksiä mm. maahantuonnin, tukkukaupan, kokoonpanon ja B2B-toiminnan parista.
Vapautuu
Heti
Kerros
2
Energiatehokkuusluokka
Ei lain edellyttämää energiatodistusta
Katutasossa
Näkyvällä paikalla
Hissi
Ota yhteyttä
ScanReal Oy LKV
Opus Business Park
Hitsaajankatu 24
00810 Helsinki
info@scanreal.fi
Puh:
Näytä puhelinnumero
020 730 8830
Sopivat toimitilat yhdellä otolla!
Kartoitamme toimitilatarpeesi ja etsimme yrityksellesi parhaiten sopivat vapaat toimitilat. Koska vuokranantajat maksavat palvelumme, on tämä yrityksellesi veloituksetonta.
OTA YHTEYTTÄ - SOVI NÄYTTÖ!
Kaikki kohteemme eivät ole netissä, kerro tilatarpeesi niin kartoitamme vaihtoehdot.
Palvelumme on tilanhakijalle ilmainen
Pyydä lisätietoa
