Vuokrataan toimistotilat - Helsinki
Pursimiehenkatu 29-31, Punavuori, 00150 Helsinki #10842572
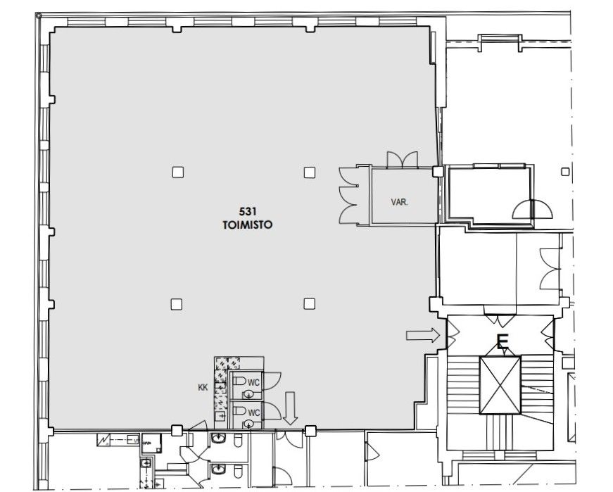
Vuokrataan 5. kerroksen valoisa avotoimisto Merikorttelista. Soveltuu hyvin myös showroom-käyttöön. Avokeittiö ja kaksi wc:tä. Tavarahissiyhteys lastauslaiturilta.
Erinomainen sijainti Punavuoressa, suositussa dynaamisessa ja yhteisöllisessä Merikorttelissa! Alueella paljon laadukkaita ravintoloita ja kahviloita. Pysäköintitilaa tarjolla korttelin omassa parkkihallissa sekä läheisissä pysäköintilaitoksissa. Läheltä kulkee myös raitiovaunu ja linja-autot.
Lisätietoja soita 020 730 4530 tai info@repoint.fi. Palvelumme on tilanhakijalle ilmainen.
Hissi
Repoint Toimitilat Oy
Itälahdenkatu 22 B, 00210 Helsinki
Näytä puhelinnumero
020 730 4530
Lisätietoja soita Näytä puhelinnumero 020 730 4530 tai info@repoint.fi
https://repoint.fi/