Myydään toimistotilat, liiketilat, näyttelytilat - Naantali
Tullikatu 12, 21100 Naantali #10842553
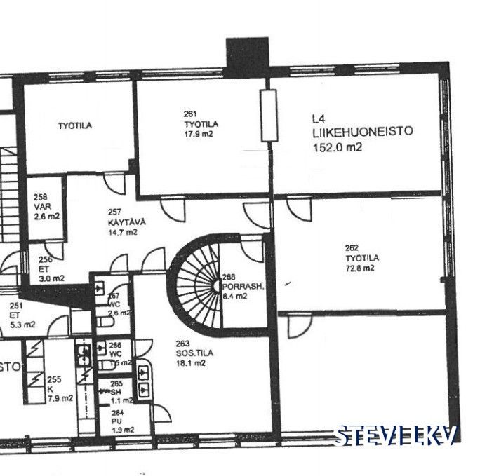
Toimisto / Asunto 152m2 Naantalin keskustassa, torin laidassa, 2krs.
Osoite
Tullikatu 12, 21100 Naantali
Tilatyyppi
Toimistotilaa
152 m2
Liiketilaa
152 m2
Näyttelytilaa
152 m2
Yhteensä
152 m2
Vuokra
1520€/kk
Myyntihinta
99 000€
Kiinteistö
Naantalin keskustassa sijaitseva Asunto / Toimistotila tarjoaa erinomaiset puitteet yrityksellesi. Tämä valoisa ja avara tila on 152 m² kokoinen, ja se sijaitsee rakennuksen ylimmässä kerroksessa. Suuret ikkunat tuovat runsaasti luonnonvaloa ja tarjoavat upeat näkymät ympäristöön. Korkeat huoneet luovat ilmavan ja miellyttävän työympäristön.
Tilan vuokra 1520€/kk. Autopaikkojen vuokra 70€/kk/per paikka.
Velaton myyntihinta 99 000€.
Toimiston varusteluun kuuluu muun muassa jääkaappi, astianpesukone ja mikroaaltouuni, mikä tekee arjesta sujuvaa. Kahden WC:n ansiosta tila sopii hyvin myös suuremmalle tiimille.
Sisäpihalta on mahdollista ostaa erikseen kaksi pihapaikkaa (autopaikkaosakkeet nro 15 & 16) ulko-oven läheisyydestä.
Sijainti on erinomainen – keskusta-alueen palvelut ovat kävelyetäisyydellä, ja hyvät liikenneyhteydet takaavat helpon saavutettavuuden niin julkisilla kuin omalla autolla. Tämä toimistotila on loistava valinta yritykselle, joka arvostaa keskeistä sijaintia ja laadukkaita tiloja. Tartu tilaisuuteen ja tee tästä toimistosta yrityksesi uusi koti!
Ole yhteydessä, niin mennään porukassa katsomaan.
Toimitila terveisin,
Stefan Virtanen
Kiinteistönvälittäjä | LKV | KTM | Yrittäjä
stefan@stevilkv.com | 0400 999 900
www.stevilkv.com
Tilan vuokra 1520€/kk. Autopaikkojen vuokra 70€/kk/per paikka.
Velaton myyntihinta 99 000€.
Toimiston varusteluun kuuluu muun muassa jääkaappi, astianpesukone ja mikroaaltouuni, mikä tekee arjesta sujuvaa. Kahden WC:n ansiosta tila sopii hyvin myös suuremmalle tiimille.
Sisäpihalta on mahdollista ostaa erikseen kaksi pihapaikkaa (autopaikkaosakkeet nro 15 & 16) ulko-oven läheisyydestä.
Sijainti on erinomainen – keskusta-alueen palvelut ovat kävelyetäisyydellä, ja hyvät liikenneyhteydet takaavat helpon saavutettavuuden niin julkisilla kuin omalla autolla. Tämä toimistotila on loistava valinta yritykselle, joka arvostaa keskeistä sijaintia ja laadukkaita tiloja. Tartu tilaisuuteen ja tee tästä toimistosta yrityksesi uusi koti!
Ole yhteydessä, niin mennään porukassa katsomaan.
Toimitila terveisin,
Stefan Virtanen
Kiinteistönvälittäjä | LKV | KTM | Yrittäjä
stefan@stevilkv.com | 0400 999 900
www.stevilkv.com
Sijainti
Naantalin keskusta
Ympäristö
Asutusta ja liiketoimintaa
Pysäköinti
Pihalla 2 paikkaa ja kadunvarressa
Palvelut
Keskustan palvelut
Kulkuyhteydet
Hyvät. www.foli.fi
Muuta
Kysy lisää Stevi puh 0400 999 900 / stefan@stevilkv.com
Tarkemmat infot:
https://toimitilat.oikotie.fi/myytavat-toimitilat/naantali/23372101
Tarkemmat infot:
https://toimitilat.oikotie.fi/myytavat-toimitilat/naantali/23372101
Vapautuu
Heti
Rakennusvuosi
1976
Kerros
2 / 2
Huoneiden lukumäärä
5
Näkyvällä paikalla
Ota yhteyttä
Stevi LKV | Kiinteistönvälitys & Vuokravälitys
Stefan Virtanen
LKV, KTM, Yrittäjä
Näytä puhelinnumero
0400 999 900
stefan@stevilkv.com
Reipasta palvelua ja hyvää konsultointia.
Soita tai laita spostia ja kerro tila tarpeesi; tämä on ilmainen palvelu tilaa etsivälle (vuokranantaja maksaa palkkion).
Toimitilojen myynti & vuokraus.
Pyydä lisätietoa
