Vuokrataan tuotantotilat - Helsinki
Lyhtytie 17, Suutarila, 00750 Helsinki #10842361
Monipuolinen tuotantotila Suutarilan teollisuusalueella.
Osoite
Lyhtytie 17, 00750 Helsinki
Tilatyyppi
Tuotantotilaa
1950 m2
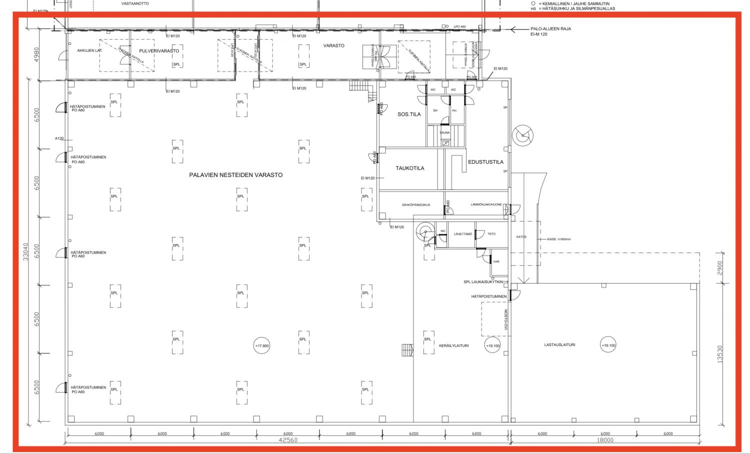
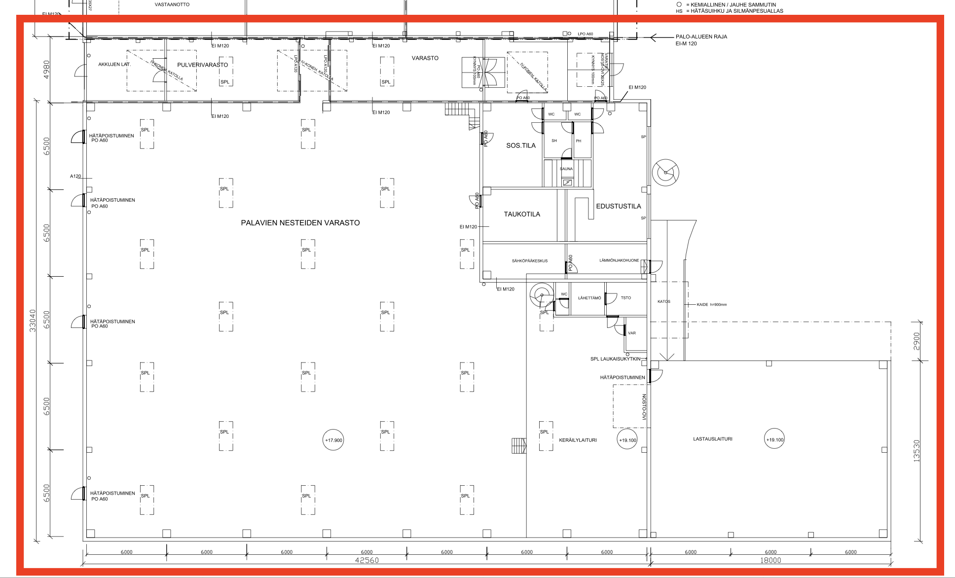
Pohjapiirros
Tila soveltuu
Elintarviketila
Kiinteistö
Tämä monipuolinen tila tarjoaa saman katon alla yrityksen kaikkiin toimintoihin sopivat puitteet: tuotantoon, varastointiin, logistiikkaan ja toimistotyöhön.
Kokonaisuuden ydin on korkea tuotantohalli 1380 m². Tuotantohallin yhteydessä on matala varasto 220 m² josta kulku omalle lastauslaiturille.
Ensimmäisessa kerroksessa on henkilökunnan sosiaali- ja taukotilat, joissa on suihkut ja sauna sekä toimistotilaa kahdessa kerroksessa yhteensä noin 170 m².
Kokonaisuus on yhteensä 1950 m².
Kokonaisuuden ydin on korkea tuotantohalli 1380 m². Tuotantohallin yhteydessä on matala varasto 220 m² josta kulku omalle lastauslaiturille.
Ensimmäisessa kerroksessa on henkilökunnan sosiaali- ja taukotilat, joissa on suihkut ja sauna sekä toimistotilaa kahdessa kerroksessa yhteensä noin 170 m².
Kokonaisuus on yhteensä 1950 m².
Sijainti
Kiinteistö sijaitsee hyvin kulkuyhteyksien äärellä aivan Tuusulanväylän ja kehä 3 läheisyydessä. Tuusulan-, ja lahdenväylälle noin 10 min.
Ympäristö
Kiinteistön läheisyydessä palvelee monet käyttäjät kuten;
Stark, Fix suutarila, Euromaster, Ramirent
Stark, Fix suutarila, Euromaster, Ramirent
Pysäköinti
Kiinteistöllä on oma aidattu piha-alue.
Palvelut
K-market, Subway ja ST1 huoltoasema sekä lähialueen lounaspaikat.
Kulkuyhteydet
Bussipysäkki 350 m
Puistolan Juna-asema 2 km
Lentokenttä 7 km
Puistolan Juna-asema 2 km
Lentokenttä 7 km
Vapautuu
Heti
Energiatehokkuusluokka
Ei lain edellyttämää energiatodistusta
Katutasossa
Näkyvällä paikalla
Ota yhteyttä
Comreal Oy LKV
Joonas Nilsson
Näytä puhelinnumero
044 328 3425
Läkkisepänkuja 6, 00620 Helsinki
Comreal on valtakunnallinen, asiantunteva ja aktiivinen kiinteistöalan kumppani, joka palvelee sekä kiinteistönomistajia että toimitilojen käyttäjiä. Toimintamme ydin on yksinkertainen: tarjota erinomaista palvelua kaikille.
Pyydä lisätietoa
