Vuokrataan toimistotilat - Helsinki
Sorvaajankatu 15, Herttoniemi, 00880 Helsinki #10842348
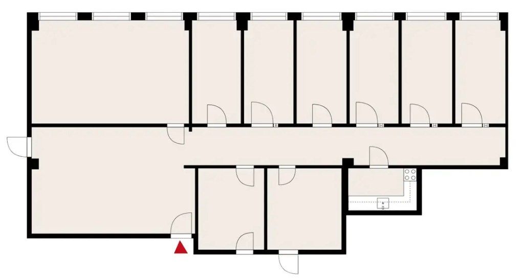
Toimistotilaa Herttoniemestä
Osoite
Sorvaajankatu 15, 00880 Helsinki
Tilatyyppi
Toimistotilaa
199 m2
Muuta
Vuokrattavana 199 m² valoisa toimistotila kolmannessa kerroksessa.
Tila on heti vapaa ja sijaitsee hyvällä paikalla, alueen palveluiden ja liikenneyhteyksien äärellä.
Toimisto koostuu tällä hetkellä erikokoisista huoneista ja neuvottelutilasta.
Kiinteistössä on lounasravintola ja alueelta löytyy runsaasti muita palveluita, jotka tukevat työpäivän sujuvuutta.
Tervetuloa tutustumaan, varaathan välittäjältä oman esittelyaikasi. Voit kysyä meiltä myös muita sopivia vaihtoehtoja, kauttamme löydät juuri Teidän tarpeisiinne sopivat tilat. Palvelumme on tilanhakijalle veloitukseton!
Tila on heti vapaa ja sijaitsee hyvällä paikalla, alueen palveluiden ja liikenneyhteyksien äärellä.
Toimisto koostuu tällä hetkellä erikokoisista huoneista ja neuvottelutilasta.
Kiinteistössä on lounasravintola ja alueelta löytyy runsaasti muita palveluita, jotka tukevat työpäivän sujuvuutta.
Tervetuloa tutustumaan, varaathan välittäjältä oman esittelyaikasi. Voit kysyä meiltä myös muita sopivia vaihtoehtoja, kauttamme löydät juuri Teidän tarpeisiinne sopivat tilat. Palvelumme on tilanhakijalle veloitukseton!
Vapautuu
Kysy
Kerros
3
Ota yhteyttä
Tuloskiinteistöt Oy
Rikhardinkatu 2 B 5, 00130 Helsinki
Näytä puhelinnumero
(09) 6841 620
Nina Meyke
Commercial Real Estate Advisor
Näytä puhelinnumero
+358 50 466 1519
Jorma Ryynänen
Commercial Real Estate Advisor LKV, LVV
Näytä puhelinnumero
+358 40 708 4064
Pyydä lisätietoa
